Eladó Ház, Decs

Ingatlan azonosító: HI-2493241

Tolna megye - Decs, Családi ház


24 990 000 Ft (64 242 €)

  • Hirdetés feladója: Ingatlaniroda
  • Pontos cím: Decs Decsi hegy
  • Típus: Eladó
  • Belső irodai azonosító: M314679-5068837
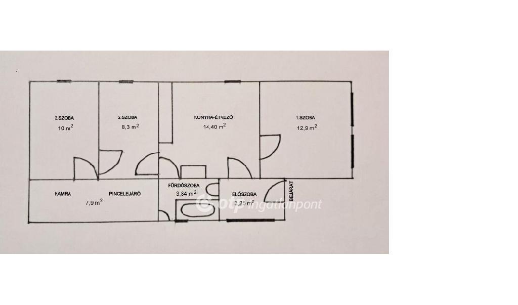
  • Alapterület: 62 m²
  • Telekterület: 444 m² ( 123 négyszögöl )
  • Építés éve: 1950
  • Egész szobák száma (12 m² felett): 1 db
  • Félszobák száma (6-12 m² között): 2 db
  • Ingatlan állapota: közepes állapotú
  • Komfort: komfortos
  • Fűtés: elektromos
  • Pince: nincs
  • Akadálymentesített: nincs
  • Napelem van?: nincs
  • Légkondicionáló: nincs

Leírás

Tolna vármegyében,Szekszárd központjától 5 kilométere a decsi hegyen eladó az ötevenes években épült házikó.Vegyes falazatu 62 négyzetméteres lakás, amely alatt egy pince is található,de nem nyílik lakótérbe.Jelenleg elektromos fűtése van,de rendelkezik kéménnyel,amelyel lehet nővelni a komfort élményt. Kis udvar is tartozik a házhoz.A rendelkezésre álló dokumentumok szerint még 30 négyzetméterrel növelhető az alapterület.

E-mail küldése a hirdetőnek

Hibás hirdetés bejelentése

Sikeres elküldtük a hiba bejelentést.

Hirdető adatai

Uzner György
E-mail cím: gyorgy.uzner@otpip.hu
Telefonszám: +36305286059
OTPip
Hirdetés feladója: Ingatlaniroda
Ingatlaniroda: OTPip
E-mail cím: szekszard@otpip.hu
Telefonszám: +36-70-619-6284

Képek



Térkép


Ajánlott ingatlanok

Családi ház

Eladó Ház, Kaposszekcső

Keresés azonosító alapján: HI-2478401
  • Kaposszekcső Jókai utca
  • Alapterület: 131 m²
  • Telekterület: 1 843 m²
  • Ár: 25 000 000 Ft (64 267 €)
  • Feltöltés dátuma: 2025.09.23.
  •  
Családi ház

Eladó Ház, Iregszemcse

Keresés azonosító alapján: HI-2478392
  • Iregszemcse Dózsa György utca
  • Alapterület: 110 m²
  • Telekterület: 2 978 m²
  • Ár: 38 900 000 Ft (100 000 €)
  • Feltöltés dátuma: 2025.09.23.
  •  
Családi ház

Eladó Ház, Tengelic

Keresés azonosító alapján: HI-2478400
  • Tengelic Szőlőhegy
  • Alapterület: 66 m²
  • Telekterület: 3 638 m²
  • Ár: 21 000 000 Ft (53 985 €)
  • Feltöltés dátuma: 2025.09.23.
  •  
Családi ház

Eladó Ház, Tengelic

Keresés azonosító alapján: HI-2494147
  • Tengelic Rákóczi Ferenc utca
  • Alapterület: 116 m²
  • Telekterület: 2 256 m²
  • Ár: 18 000 000 Ft (46 272 €)
  • Feltöltés dátuma: 2025.10.28.
  •  
Facebook
Blogger
Twitter
Tweets by hasznaltingatla
Flickr