Eladó Ház, Dencsháza

Ingatlan azonosító: HI-2535426

Baranya megye - Dencsháza, Hétvégi házas


6 800 000 Ft (18 942 €)

  • Hirdetés feladója: Ingatlaniroda
  • Pontos cím: Dencsháza
  • Típus: Eladó
  • Belső irodai azonosító: M320963-5146283
  • Alapterület: 61 m²
  • Telekterület: 740 m² ( 206 négyszögöl )
  • Építés éve: 1970
  • Egész szobák száma (12 m² felett): 2 db
  • Félszobák száma (6-12 m² között): 0 db
  • Fürdőszobák száma: 1 db
  • Fűtés: egyéb
  • Akadálymentesített: van
  • Napelem van?: nincs
  • Légkondicionáló: nincs

Leírás

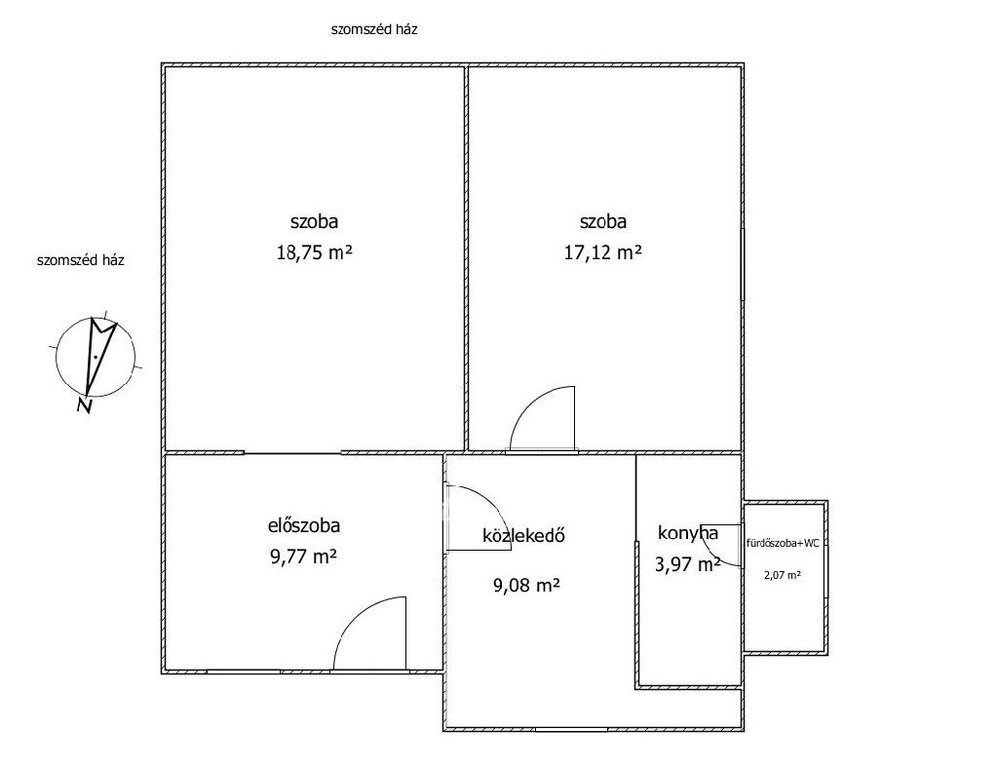
2 szobás ház eladó Dencsháza mellett Péterfa pusztán! Sorházas elrendezésű épültet része ként van. A házsor végén van ezért nagyobb a kert mint a szomszédoknál. Eredetileg a ma két szobaként használt rész épült meg. Az összes többi rész szintén téglából épült hozzá. Ami az alaprajzon közlekedőként van megjelölve, könnyen átalakítható konyha + étkezővé. A falat ki lehet venni. Víz, villany van. A szennyvizet ülepítő gyűjti. Gáz nincs. Osztatlan közös tulajdonban van. 740 négyzetméter vízszintes telek használata esik erre a házra .A jelenlegi tulajdonos beszélt az összes szomszéddal. Nem élnek az elővásárlási jogukkal. A Mostani tulajdonos körbe fogja járni a szomszédokat, és aláíratja a lemondást. Az összes ablakot műanyagra cserélték, redőnnyel, és szúnyoghálóval. Két garázs tartozik hozzá számtalan melléképülettel, és akácossal. Állatok tartására kiválóan alkalmas, az akácos pedig kiegészítő lehet a vízteres kandalló fűtéséhez. A ház körüli kiskert be van kerítve, tároló és fedett kiülő is tartozik hozzá. Dencsházáról végig aszfaltozott út vezet a házig. Referenciaszám: M320963 6800000 Ft Referencia szám: M320963

E-mail küldése a hirdetőnek

Hibás hirdetés bejelentése

Sikeres elküldtük a hiba bejelentést.

Hirdető adatai

Vincze László György
E-mail cím: vincze.laszlo.gyorgy@otpip.hu
Telefonszám: +36209384141
OTPip
Hirdetés feladója: Ingatlaniroda
Ingatlaniroda: OTPip
E-mail cím: pecs@otpip.hu
Telefonszám: +36-70-708-2428

Képek



Térkép


Ajánlott ingatlanok

Hétvégi házas

Eladó Ház, Siófok

Keresés azonosító alapján: HI-2481284
  • Siófok
  • Alapterület: 220 m²
  • Telekterület: 603 m²
  • Ár: 255 000 000 Ft (710 306 €)
  • Feltöltés dátuma: 2025.09.27.
  •  
Hétvégi házas

Eladó Ház, Balatonmáriafürdő

Keresés azonosító alapján: HI-2457411
  • Balatonmáriafürdő
  • Alapterület: 75 m²
  • Telekterület: 464 m²
  • Ár: 98 000 000 Ft (272 981 €)
  • Feltöltés dátuma: 2025.08.03.
  •  
Hétvégi házas

Eladó Ház, Balatonboglár

Keresés azonosító alapján: HI-2481280
  • Balatonboglár
  • Alapterület: 54 m²
  • Telekterület: 800 000 m²
  • Ár: 199 000 000 Ft (554 318 €)
  • Feltöltés dátuma: 2025.09.27.
  • klímás
Hétvégi házas

Eladó Ház, Szabadi

Keresés azonosító alapján: HI-2123167
  • Szabadi
  • Alapterület: 505 m²
  • Telekterület: 104 865 m²
  • Ár: 114 000 000 Ft (317 549 €)
  • Feltöltés dátuma: 2023.08.19.
  •  
Facebook
Blogger
Twitter
Tweets by hasznaltingatla
Flickr