Eladó Ház, Diósd

Ingatlan azonosító: HI-2509696

Pest megye - Diósd, Ikerház


135 600 000 Ft (352 208 €)

  • Hirdetés feladója: Ingatlaniroda
  • Pontos cím: Diósd
  • Típus: Eladó
  • Belső irodai azonosító: M317197-5100739
  • Alapterület: 120 m²
  • Telekterület: 669 m² ( 186 négyszögöl )
  • Építés éve: 2026
  • Egész szobák száma (12 m² felett): 4 db
  • Félszobák száma (6-12 m² között): 0 db
  • Ingatlan állapota: újszerű
  • Komfort: duplakomfortos
  • Fűtés: egyéb
  • Pince: nincs
  • Akadálymentesített: nincs
  • Energiatanúsítvány: A+
  • Napelem van?: nincs
  • Légkondicionáló: nincs

Leírás

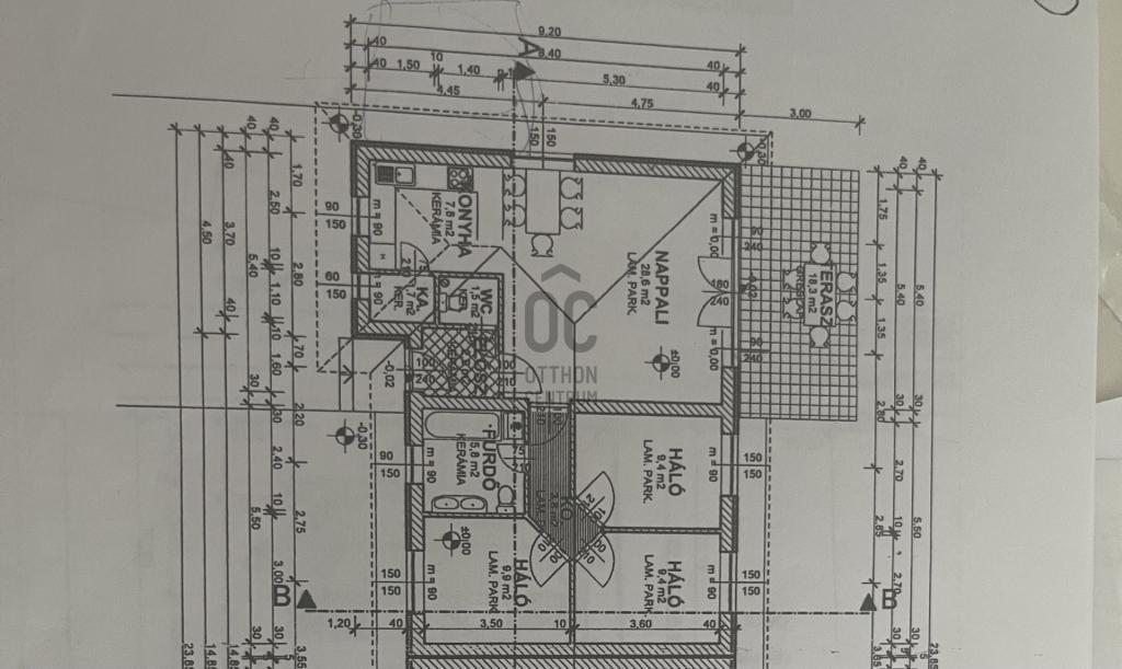
Új építésű prémium ikerház Diósdon, modern műszaki tartalommal, 800 m2-es saját kerttel! Diósd közkedvelt, csendes és jól megközelíthető részén kínálom megvételre ezt a 120 m2 alapterületű (hasznos alapterület: 103 m2) új építésű prémium ikerházi lakást, amely 800 m2-es saját kerttel és térkövezett felszíni beállóval rendelkezik 2 autó részére. A projektben összesen négy ikerházi lakás készül, modern technológiával és magas minőségű kivitelezéssel. Az ingatlanhoz egy 16 m2-es terasz is tartozik, amely közvetlen kapcsolatot biztosít a tágas kerttel, mely tökéletes helyszín pihenésre, családi programokra. Helyiséglista: Földszint: Előszoba: 5 m2 Tároló: 3 m2 Nappali: 20 m2 Konyha: 6 m2 Közlekedő: 3 m2 WC: 2 m2 Fürdőszoba: 7 m2 Szoba: 15 m2 Terasz: 16 m2 Emelet: Közlekedő: 8 m2 Gépészet: 3 m2 Fürdő + WC: 7 m2 Szoba: 11 m2 Szoba: 14 m2 Műszaki tartalom: A házak kiváló minőségű anyagokkal és energiahatékony megoldásokkal épülnek, A+ energetikai besorolással fognak rendelkezni: 30 cm Leiertherm 30 N+F tégla főfalak, 10 cm Leiertherm válaszfalak, 25 cm Silka hangszigetelő falazat a lakások között, 15 cm Austrotherm AT-H 80 homlokzati hőszigetelés, 30 cm Rockwool Airock LD hőszigetelés a tetőn, 10 cm zártcellás lábazati szigetelés, Terran Zenit cserépfedés, 3 rétegű üvegezésű műanyag nyílászárók, Elektromos redőnyök, a tetőtéri ablakokon belső roló, Levegő-víz hőszivattyú, padlófűtéssel és fan-coil hűtési rendszerrel, Telefon, TV és internet csatlakozó dugaszolóaljzatok a nappaliban és a hálószobákban Extrák: Audio kaputelefon hálózat, Riasztórendszer mozgásérzékelőkkel, telefoncsatlakozással a biztonsági szolgálathoz. H-tarifa igényelhető a még alacsonyabb üzemeltetési költség eléréséhez. A belső burkolatok, szaniterek és beltéri ajtók színei egyéni ízlés szerint választhatóak, így mindenki saját stílusához alakíthatja új otthonát. Kulcsrakész átadás várható ideje: 2026 nyár. Ez az ingatlan ideális választás mindazoknak, akik modern, energiahatékony, nagy kerttel rendelkező új otthont keresnek Diósd egyik legkedveltebb részén. Az OTP Ingatlanpont teljeskörű ügyintézéssel áll az eladók és a vevők rendelkezésére! A választott ingatlan finanszírozásához kedvezményes hitel, és pénzügyi konstrukciókat kínálunk. Az adásvétel teljes folyamatát végigkísérjük és ügyvédi közreműködést biztosítunk! Amennyiben felkeltett érdeklődését az ingatlan, várom megtisztelő hívását akár hétvégén is!

E-mail küldése a hirdetőnek

Hibás hirdetés bejelentése

Sikeres elküldtük a hiba bejelentést.

Hirdető adatai

Démann Judit
E-mail cím: judit.demann@otpip.hu
Telefonszám: +36-70-406-0378
OTPip
Hirdetés feladója: Ingatlaniroda
Ingatlaniroda: OTPip
E-mail cím: velence@otpip.hu
Telefonszám: +36-70-457-6920

Képek



Térkép


Ajánlott ingatlanok

Ikerház

Eladó Ház, Velence

Keresés azonosító alapján: HI-2511341
  • Velence
  • Alapterület: 100 m²
  • Telekterület: 500 m²
  • Ár: 94 900 000 Ft (246 494 €)
  • Feltöltés dátuma: 2025.12.10.
  •  
Ikerház

Eladó Ház, Gárdony

Keresés azonosító alapján: HI-2501899
  • Gárdony
  • Alapterület: 85 m²
  • Telekterület: 407 m²
  • Ár: 101 200 000 Ft (262 857 €)
  • Feltöltés dátuma: 2025.11.14.
  •  
Ikerház

Eladó Ház, Diósd

Keresés azonosító alapján: HI-2509695
  • Diósd
  • Alapterület: 108 m²
  • Telekterület: 800 m²
  • Ár: 122 600 000 Ft (318 442 €)
  • Feltöltés dátuma: 2025.12.04.
  •  
Ikerház

Eladó Ház, Kápolnásnyék

Keresés azonosító alapján: HI-2473233
  • Kápolnásnyék
  • Alapterület: 122 m²
  • Telekterület: 350 m²
  • Ár: 118 600 000 Ft (308 052 €)
  • Feltöltés dátuma: 2025.09.12.
  •  
Facebook
Blogger
Twitter
Tweets by hasznaltingatla
Flickr