Eladó Ház, Diósd

Ingatlan azonosító: HI-2554159

Pest megye - Diósd, Ikerház


109 900 000 Ft (304 432 €)

  • Hirdetés feladója: Ingatlaniroda
  • Pontos cím: Diósd
  • Típus: Eladó
  • Belső irodai azonosító: M324867-5183366
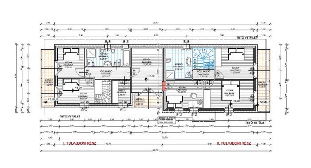
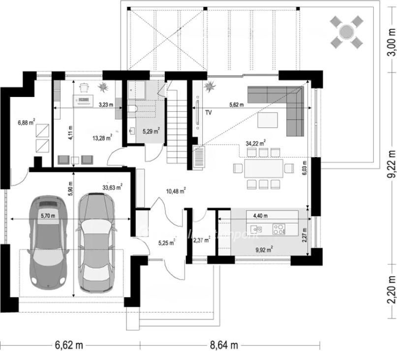
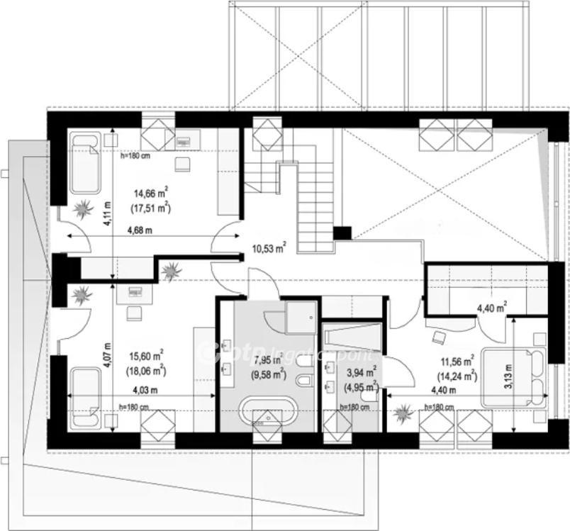
  • Alapterület: 219 m²
  • Telekterület: 1 091 m² ( 303 négyszögöl )
  • Építés éve: 2026
  • Egész szobák száma (12 m² felett): 8 db
  • Félszobák száma (6-12 m² között): 2 db
  • Ingatlan állapota: új építésű
  • Komfort: duplakomfortos
  • Fűtés: egyéb
  • Pince: nincs
  • Akadálymentesített: nincs
  • Napelem van?: nincs
  • Légkondicionáló: nincs

Leírás

Diósd kertvárosias részén, nyugodt, csendes környezetben ikerházfél ELADÓ. Nettó 219,4 m2-es, belső kétszintes ikerház, 1091 m2-es privát kerttel. Kényelmes parkolás, három autónak beállási lehetőség biztosított. magas energetikai szempontokat figyelembe véve, thermoblock falazat, monolit vasbeton födém, mennyezeti hűtés-fűtés, padlófűtés kerül kialakításra. Hőszivattyús rendszer. Modern technológiai szempontok figyelembe vételével helyiségenkénti szabályozással (feláras). H tarifás mérőóra telepítéssel, napelem és autótöltő előkészítéssel. Napkollektor, akkumulátor kérhető. Külön mérőórák és közművek találhatóak mindkét ingatlanban. Tágas, napfényes terek, szeparált kertek, családbarát kialakítás, prémium műszaki megoldások gondoskodnak arról, hogy mindennapjai kényelmesen élhetőek legyenek. Ideális otthon családoknak, akik értékelik a privát életteret, a minőségi megoldásokat és fontos számukra a fenntarthatóság. Választható Veka, Kömmerling, Rehau ablakok 6-7 légkamrával (aktuális egyeztetés szükséges). Felár nélküli szúnyogháló, motoros alu roló minden ablakra. Elektromos kapu, videó telefon teszi kényelmessé a vendégek fogadását. 10.000 Ft ig választható burkolatok. 60.000 Ft ig választható beltéri ajtók. 1 Millió Forintig választható konyha. Igény szerint napkollektor, napelem, akkumulátor 10-20 KWH. Igény szerinti hőfok szabályozás minden külön helyiségekben.(Feláras) Az AAA+ energia érdekében Termoblock 35 falazatot alkalmaztunk, 21 cm szigeteléssel. 24cm vastag C30 vízzáró monolit vasbeton födémek mindkettő szinten. NGBS mennyezetfűtés- hűtés csövezés a födémekben. Referencia: M324867 Az OTP Ingatlanpont, mint egyetlen közvetlen banki hátterű ingatlanközvetítő társaság teljes körű ügyintézéssel áll az eladók és a vevők rendelkezésére! A kínálatunkból választott ingatlan finanszírozásához minősített fogyasztóbarát, piaci és kedvezményes hitel- és lízingkonstrukciókat kínálunk (lakásvásárlási hitel, CSOK plusz, szabad felhasználású hitel, babaváró hitel, céges hitelek, pályázatok, amennyiben az ügyfél és az ingatlan megfelel a feltételeknek). Az adásvételi szerződés megkötéséhez igény szerint megbízható ügyvédi közreműködést biztosítunk, és segítséget nyújtunk az adásvételhez kapcsolódó egyéb ügyek intézéséhez. Ha az új ingatlana megvásárlásához a jelenlegi ingatlanát el kell adnia, abban is szívesen segítünk. Referencia szám: M324867-HI

E-mail küldése a hirdetőnek

Hibás hirdetés bejelentése

Sikeres elküldtük a hiba bejelentést.

Hirdető adatai

Takács Zsuzsanna
E-mail cím: takacs.zsuzsanna@otpip.hu
Telefonszám: +36304953819
OTPip
Hirdetés feladója: Ingatlaniroda
Ingatlaniroda: OTPip
E-mail cím: budapest13.lehelutca@otpip.hu
Telefonszám: +36706136133

Képek



Térkép


Ajánlott ingatlanok

Ikerház

Eladó Ház, Szentendre

Keresés azonosító alapján: HI-2280252
  • Szentendre
  • Alapterület: 267 m²
  • Telekterület: 750 m²
  • Ár: 359 000 000 Ft (994 460 €)
  • Feltöltés dátuma: 2024.08.12.
  •  
Ikerház

Eladó Ház, Dabas

Keresés azonosító alapján: HI-2488262
  • Dabas
  • Alapterület: 84 m²
  • Telekterület: 738 m²
  • Ár: 80 000 000 Ft (221 607 €)
  • Feltöltés dátuma: 2025.10.10.
  •  
Ikerház

Eladó Ház, Budapest 3. ker.

Keresés azonosító alapján: HI-2394240
  • Budapest III.
  • Alapterület: 220 m²
  • Telekterület: 260 m²
  • Ár: 239 000 000 Ft (662 050 €)
  • Feltöltés dátuma: 2025.03.26.
  •  
Ikerház

Eladó Ház, Dunaharaszti

Keresés azonosító alapján: HI-2567123
  • Dunaharaszti
  • Alapterület: 116 m²
  • Telekterület: 442 m²
  • Ár: 139 000 000 Ft (385 042 €)
  • Feltöltés dátuma: 2026.05.03.
  • klímás
Facebook
Blogger
Twitter
Tweets by hasznaltingatla
Flickr