Eladó Ház, Diósd

Ingatlan azonosító: HI-2488617

Pest megye - Diósd, Családi ház


295 000 000 Ft (821 727 €)

  • Hirdetés feladója: Ingatlaniroda
  • Pontos cím: Diósd
  • Típus: Eladó
  • Belső irodai azonosító: M304302-5060097
  • Alapterület: 277 m²
  • Telekterület: 1 080 m² ( 300 négyszögöl )
  • Építés éve: 2006
  • Egész szobák száma (12 m² felett): 4 db
  • Félszobák száma (6-12 m² között): 0 db
  • Fürdőszobák száma: 2 db
  • Ingatlan állapota: felújított
  • Komfort: luxus
  • Fűtés: egyéb kazán
  • Pince: nincs
  • Akadálymentesített: nincs
  • Napelem van?: nincs
  • Légkondicionáló: van

Leírás

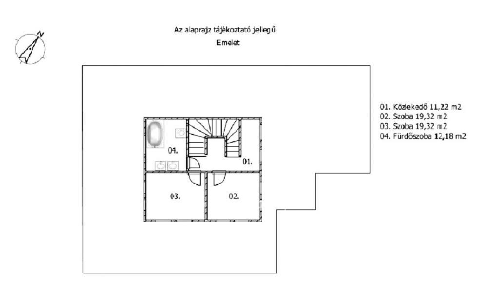
*** DIÓSDLIGETEN PÁRATLAN ÖRÖKPANORÁMÁVAL RENDELKEZŐ, ÖNÁLLÓ, LUXUS CSALÁDI HÁZ ELADÓ *** A 277 m2-es luxus ingatlan meseszép környezetben helyezkedik el. A kiváló tervezésű két szintes családi ház Nappali - konyha - étkező + 3 szobából áll, valamint 720 m2-es gyönyörűen parkosított kerttel rendelkezik. A családi ház 2006-ban saját részre épült, kiváló elrendezéssel, magas minőségű anyagok felhasználásával, fedett és nyitott terasz kapcsolatokkal, hatalmas garázzsal rendelkezik. Az átgondolt tervezésnél nagy hangsúlyt fektettek a tágas terek kialakítására és az egyedi miliőre, ennek köszönhetően itt biztosan élvezi majd a mindennapok kényelmét. A kiváló tájolásának (K - DK) és a nagy ablakfelületeknek köszönhetően a ház egész nap világos, benapozott. Szigetelt, az ablakokon mindenhol zsalúzia található, padlása pedig további tárolásra is alkalmas. Fűtése gáz-cirkó kazánról történik padlófűtéses hőleadással, valamint az egész ház klimatizált, míg a téli hónapok hangulatát a fatüzeléses kandalló biztosítja. A hatalmas teraszok és a páratlan örökpanoráma igazi ékessége a háznak, a hátsó terasz elhelyezkedése pedig intim takarást biztosít az itt élőknek. HELYISÉGEI: A földszinten található 73,93 m2-es Nappali - konyha - étkező. Innen nyílik a szülői lakosztály: hálószoba 20,20 m2 + épített zuhanyzós fürdőszoba WC-vel és bidével 6,09 m2 + gardrób 6,09 m2. Ez összesen 32,38 m2. A földszinti részen található még a háztartási helyiség 7,54 m2, kamra 3,42 m2, a tároló 4,16 m2, különálló WC bidével és kézmosóval 2,52 m2, az előszoba 8,41 m2, valamint a két állásos garázs, ami 46,97 m2. Az emeleten található két darab 19,32 m2-es szoba, a közlekedő 11,22 m2, valamint a kádas fürdőszoba WC-vel és bidével, ami 12,18 m2-es. ELHELYEZKEDÉSE: A főút és a városközpont elérhető távolságban, a buszmegálló pár perces sétára található. Diósd infrastrukturális ellátottsága kitűnő, ovódák, bölcsöde, iskolák, Amerikai iskola, Interspar, gyógyszertárak, boltok, piac és frekventált zöldséges szaküzlet a teljesség igénye nélkül mind mind rendelkezésre áll. Diósdliget népszerű választás azok számára, akik Budapest közelségében, mégis nyugodt, természetközeli környezetben szeretnének élni. A település gazdag természeti környezettel rendelkezik, ősfákkal, fenyvessel, mely ideális helyszínt biztosít mindenkinek. Szeretettel ajánlom ezt a páratlan otthont, mert Diósdligeten barátságos és segítőkész emberek élnek, így Ön is biztonságban és nyugalomban töltheti a mindennapjait. Az energetikai tanúsítvány készítése folyamatban van, amint rendelkezésre áll, úgy azzal a hirdetés frissítésre kerül.

E-mail küldése a hirdetőnek

Hibás hirdetés bejelentése

Sikeres elküldtük a hiba bejelentést.

Hirdető adatai

Gyepes Attila
E-mail cím: attila.gyepes@otpip.hu
Telefonszám: +36-20-320-8165
OTPip
Hirdetés feladója: Ingatlaniroda
Ingatlaniroda: OTPip
E-mail cím: zuglo@otpip.hu
Telefonszám: +36309617263

Képek



Térkép


Ajánlott ingatlanok

Családi ház

Eladó Ház, Pomáz

Keresés azonosító alapján: HI-2492979
  • Pomáz
  • Alapterület: 135 m²
  • Telekterület: 569 m²
  • Ár: 62 000 000 Ft (172 702 €)
  • Feltöltés dátuma: 2025.10.22.
  •  
Családi ház

Eladó Ház, Diósd

Keresés azonosító alapján: HI-2488619
  • Diósd
  • Alapterület: 388 m²
  • Telekterület: 939 m²
  • Ár: 290 000 000 Ft (807 799 €)
  • Feltöltés dátuma: 2025.10.11.
  • klímás
Családi ház

Eladó Ház, Diósd

Keresés azonosító alapján: HI-2553833
  • Diósd
  • Alapterület: 254 m²
  • Telekterület: 700 m²
  • Ár: 399 000 000 Ft (1 111 421 €)
  • Feltöltés dátuma: 2026.03.24.
  • klímás
Családi ház

Eladó Ház, Budapest 2. ker.

Keresés azonosító alapján: HI-2401490
  • Budapest II.
  • Alapterület: 106 m²
  • Telekterület: 437 m²
  • Ár: 124 900 000 Ft (347 911 €)
  • Feltöltés dátuma: 2025.04.10.
  •  
Facebook
Blogger
Twitter
Tweets by hasznaltingatla
Flickr