Eladó ház, Diósd

Ingatlan azonosító: HI-2560418

Pest megye - Diósd, Ikerház


169 900 000 Ft (464 208 €)

  • Hirdetés feladója: Ingatlaniroda
  • Pontos cím: Diósd
  • Típus: Eladó
  • Belső irodai azonosító: HZ079753-5198679
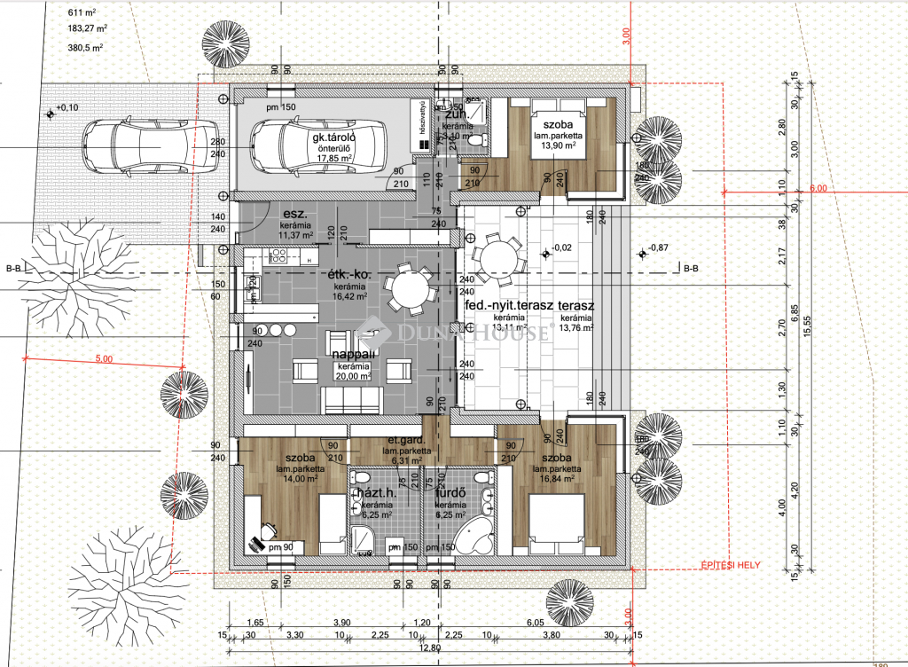
  • Alapterület: 162 m²
  • Telekterület: 642 m² ( 178 négyszögöl )
  • Építés éve: 2025
  • Egész szobák száma (12 m² felett): 5 db
  • Félszobák száma (6-12 m² között): 0 db
  • Fürdőszobák száma: 3 db
  • Ingatlan állapota: új építésű
  • Fűtés: egyéb
  • Pince: nincs
  • Akadálymentesített: nincs
  • Napelem van?: nincs
  • Légkondicionáló: nincs

Leírás

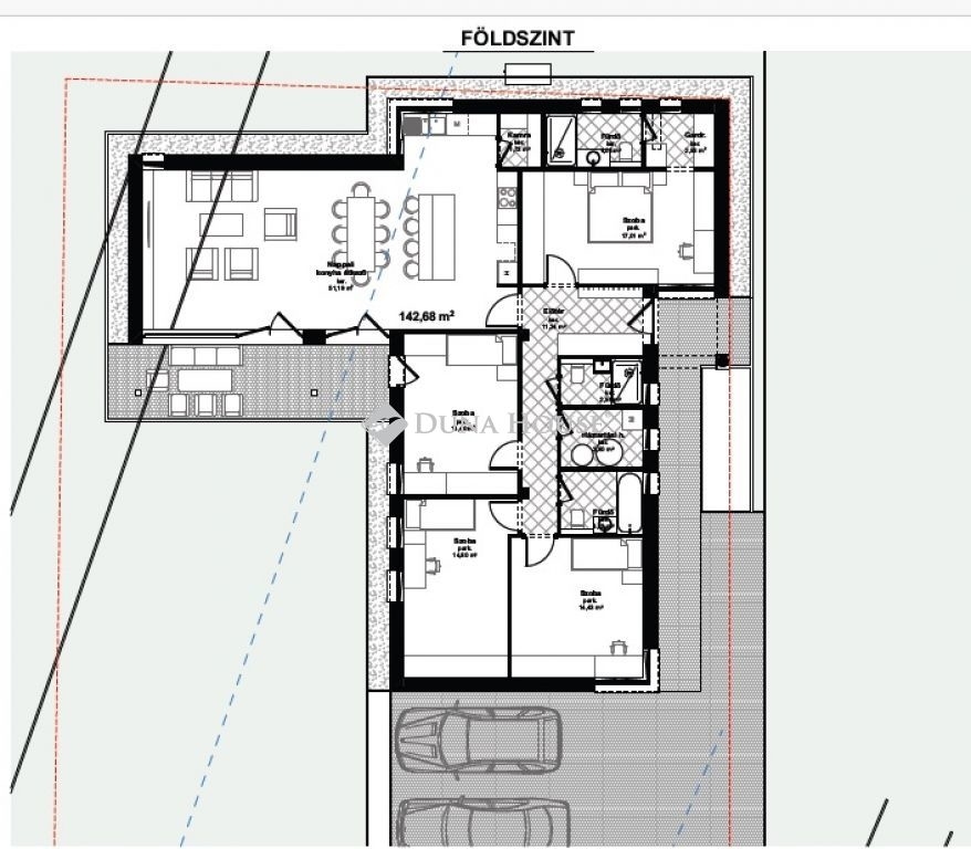
MAGAS MŰSZAKI TARTALOMMAL ÉPÜLŐ IKERHÁZ ELADÓ! Csak garázzsal érintkeznek, lakótérrel nincs közös falazat, emeleten pedig egyáltalán nem érintkeznek! Most Öné lehet kedvező m2 áron egy nettó összesen 194 m2-es 2 szintes ikerház. Diósd Égettvölgy részén épül. CSAK GARÁZZSAL ÉRINTKEZNEK. Tágas, világos terek köszönhetően az egyedi jó méretű nyílászáróknak, család barát elosztással. Nettó hasznos lakótér 131 m2 + 18,30 m2 garázs + 2 db terasz / 20,10 m2 + 16,35 m2 / Hozzá tartozó telek mérete 642 m2. Foglalja le már most leendő otthonát 10%-al. Az építkezés szerkezetkész állapotnál tart így saját ízlése és igénye szerint választhatja ki a ház belső kinézetét illetve végig követheti az építkezést. Amennyiben egyedi igényei lennének az elosztással kapcsolatban a kivitelező rugalmas a változtatásokra. Elosztását tekintve: Földszint: - 1 állásos garázs - előszoba - fürdőszoba - kamra - 1 hálószoba saját fürdőszobával - tágas és világos amerikai konyhás nappali terasz és kertkapcsolattal Emelet: - 3 egész méretű hálószoba - fürdőszoba - gardrób - hangulatos, félig fedett 16,35 m2-es terasz Műszaki adatok: - 30-as Porotherm tégla falazat, 10 cm tégla válaszfalak - 15 cm homlokzati szigetelés - Födém szigetelés: 2x15cm vastag szálas kőzetgyapot szigetelés - Hőszivattyú fűtés 230 literes indirect tárolóval - Minden helyiségben padlófűtés - Mennyezet hűtés - Hővisszanyerős szellőztető rendszer - Tetőn korcolt lemezfedés - 3 rétegű 5 légkamrás nyílászárók egyedi antracit színben - Riasztó, kamera, napelem előkészítés - Szaniterek - Hideg/meleg burkolatok ( 10 000 Ft/m2 meleg: 10 000 Ft/ m2 ) - Beltéri ajtók ( 100 000 Ft/db ) - 5 ponton záródó bejárati ajtó Ezek mind kiemelkedő minőségben és az átlagnál magasabb áron választhatóak. Az építkezés megtekintése után minden a házzal kapcsolatos dokumentáció rendelkezésre áll. EXTRÁK: - Ház homlokzatán díszkő burkolat - Térkövezés - Vízlágyító berendezés - Elektromos alumínium redőnyök a terasz ajtókon Környék rendezett, csendes, minden perceken belül elérhető autóval. További információért várom megtisztelő hívását. Referencia szám: HZ079753

E-mail küldése a hirdetőnek

Hibás hirdetés bejelentése

Sikeres elküldtük a hiba bejelentést.

Hirdető adatai

Kosik Henrietta
E-mail cím: kosik.heni@dh.hu
Telefonszám: +36308420009
Duna House
Hirdetés feladója: Ingatlaniroda
Ingatlaniroda: Duna House
E-mail cím: dunaharaszti@dh.hu
Telefonszám: +3624958661

Képek



Térkép


Ajánlott ingatlanok

Ikerház

Eladó ház, Szigetszentmiklós

Keresés azonosító alapján: HI-2550477
  • Szigetszentmiklós
  • Alapterület: 62 m²
  • Telekterület: 280 m²
  • Ár: 84 900 000 Ft (231 967 €)
  • Feltöltés dátuma: 2026.03.14.
  •  
Ikerház

Eladó ház, Halásztelek

Keresés azonosító alapján: HI-2557626
  • Halásztelek
  • Alapterület: 125 m²
  • Telekterület: 500 m²
  • Ár: 125 500 000 Ft (342 896 €)
  • Feltöltés dátuma: 2026.04.02.
  •  
Ikerház

Eladó ház, Halásztelek

Keresés azonosító alapján: HI-2551342
  • Halásztelek
  • Alapterület: 125 m²
  • Telekterület: 500 m²
  • Ár: 125 500 000 Ft (342 896 €)
  • Feltöltés dátuma: 2026.03.17.
  •  
Ikerház

Eladó ház, Szigethalom

Keresés azonosító alapján: HI-2549798
  • Szigethalom
  • Alapterület: 86 m²
  • Telekterület: 400 m²
  • Ár: 88 900 000 Ft (242 896 €)
  • Feltöltés dátuma: 2026.03.13.
  •  
Facebook
Blogger
Twitter
Tweets by hasznaltingatla
Flickr