Eladó ház Diósd, Diósdliget

Ingatlan azonosító: HI-2539545

Pest megye - Diósd, Családi ház


185 900 000 Ft (474 235 €)

  • Hirdetés feladója: Ingatlaniroda
  • Pontos cím: Diósd
  • Típus: Eladó
  • Belső irodai azonosító: H512868-5144128
  • Alapterület: 125 m²
  • Telekterület: 1 032 m² ( 287 négyszögöl )
  • Építés éve: 2025
  • Egész szobák száma (12 m² felett): 3 db
  • Félszobák száma (6-12 m² között): 0 db
  • Fürdőszobák száma: 1 db
  • Ingatlan állapota: újszerű
  • Komfort: összkomfortos
  • Fűtés: gáz (cirko)
  • Pince: nincs
  • Akadálymentesített: nincs
  • Napelem van?: nincs
  • Légkondicionáló: van

Leírás

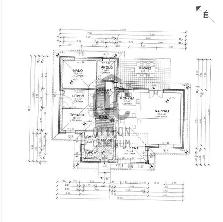
Egy kivételes lehetőséget kínálunk Önnek Diósdligeten , fiatalok, családosok számára ideális otthonra lelhetnek. Ez a modern, használt ház brutto 145 négyzetméteres alapterületével és 1032 négyzetméteres telkével tökéletes választás mindazok számára, akik a város zajától távol, de mégis központi elhelyezkedésben szeretnének élni. Az ingatlanban 2 szoba található plusz nappali+étkező+konyha, a nappali különösen világos és barátságos, köszönhetően a nagy ablakoknak és a minimalista kialakításnak. A nappali élettere így több mint 60 nm, ez 1 esetleg 2 kisebb szoba leválasztását is lehetővé teszi még. A központi tér nagyon jó lehetőséget kínál a minden napi élethez és a családi összejövetelek és baráti találkozók felejthetetlen élményeket nyújtanak. A házhoz tartozó 24,5 négyzetméteres terasz ideális helyszín a pihenésre és a szabadban eltöltött időre. Az ingatlan állapota kiváló, 2025-ben készült el, a fűtés gáz cirkóval megoldott, míg a hűtésről klíma gondoskodik, így a nyári melegben is kellemes hőmérséklet várja a lakókat. Az ingatlanban gardrób szoba és mosókonyha is található, amelyek praktikus tárolási megoldásokat kínálnak. A modern LED hangulatvilágítás és a redőnyök pedig a kényelmet és az exkluzív megjelenést szolgálják. A környék ellátottsága kiváló, a közlekedési csomópont közelsége miatt a közlekedés kitűnő, így a főváros könnyedén elérhető. Diósd csendes, kertvárosi lakásai között található ez a gyöngyszem, a, ideális kertet biztosítva a gyermekek számára a szabadban való játékhoz. Az ingatlanban található egy 2 állásos garázs 36 nm és egy 15 nm nyári konyha is. A környék nyugodt, de a ház nem az utcafronton helyezkedik el, magánút vezet hozzá, ez is garantálja, hogy Ön nyugodtan élvezheti otthona kényelmét. Ez a felkapott környék nemcsak a családok, hanem a befektetők számára is vonzó lehetőségeket kínál. Az ingatlan elhelyezkedése miatt a jövőbeli értéknövekedés garantált, így érdemes mihamarabb lépni. Kérjük, ne habozzon, keressen bizalommal bármilyen kérdésével vagy időpont egyeztetéssel kapcsolatban. Az Ön álmai otthona már csak egy telefonhívásnyira van! 185900000 Ft Referencia szám: H512868

E-mail küldése a hirdetőnek

Hibás hirdetés bejelentése

Sikeres elküldtük a hiba bejelentést.

Hirdető adatai

Lelkes Ágnes
E-mail cím: lelkes.agnes@oc.hu
Telefonszám: +36 70 412 3716
Otthon Centrum
Hirdetés feladója: Ingatlaniroda
Ingatlaniroda: Otthon Centrum
E-mail cím: sebestyen.zsofia@oc.hu
Telefonszám: +36 70 454 3490

Képek



Térkép


Ajánlott ingatlanok

Családi ház

Eladó ház Ráckeresztúr

Keresés azonosító alapján: HI-2524424
  • Ráckeresztúr
  • Alapterület: 290 m²
  • Telekterület: 2 062 m²
  • Ár: 45 000 000 Ft (114 796 €)
  • Feltöltés dátuma: 2026.01.21.
  •  
Családi ház

Eladó ház Pusztaszabolcs

Keresés azonosító alapján: HI-2534553
  • Pusztaszabolcs
  • Alapterület: 117 m²
  • Telekterület: 1 117 m²
  • Ár: 83 900 000 Ft (214 031 €)
  • Feltöltés dátuma: 2026.02.10.
  •  
Családi ház

Eladó ház Érd, Sasváros

Keresés azonosító alapján: HI-2524437
  • Érd
  • Alapterület: 75 m²
  • Telekterület: 686 m²
  • Ár: 84 900 000 Ft (216 582 €)
  • Feltöltés dátuma: 2026.01.21.
  • klímás
Családi ház

Eladó ház Martonvásár

Keresés azonosító alapján: HI-2524430
  • Martonvásár
  • Alapterület: 87 m²
  • Telekterület: 1 801 m²
  • Ár: 109 900 000 Ft (280 357 €)
  • Feltöltés dátuma: 2026.01.21.
  •  
Facebook
Blogger
Twitter
Tweets by hasznaltingatla
Flickr