Eladó Ház, Eger

Ingatlan azonosító: HI-2508607

Heves megye - Eger, Családi ház


169 000 000 Ft (432 225 €)

  • Hirdetés feladója: Ingatlaniroda
  • Pontos cím: Eger
  • Típus: Eladó
  • Belső irodai azonosító: M307004-4994045
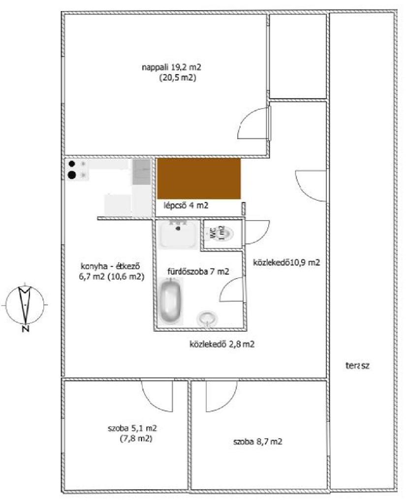
  • Alapterület: 220 m²
  • Telekterület: 1 149 m² ( 319 négyszögöl )
  • Építés éve: 2011
  • Egész szobák száma (12 m² felett): 6 db
  • Félszobák száma (6-12 m² között): 0 db
  • Ingatlan állapota: új építésű
  • Komfort: komfort nélküli
  • Fűtés: egyéb
  • Pince: nincs
  • Akadálymentesített: nincs
  • Napelem van?: nincs
  • Légkondicionáló: nincs

Leírás

Kizárólag az OTP Ingatlanpont kínálatában! Belváros közeli, sokrétű hasznosítási lehetőséget kínáló ingatlanegyüttest kínálunk eladásra Egerben! Eger kedvelt, belvároshoz közeli részén kínálunk eladásra egy különleges adottságokkal rendelkező, három épületből álló ingatlanegyüttest, amely kiváló lehetőséget biztosít családi otthon kialakítására, befektetésre, vendéglátásra vagy turisztikai célú hasznosításra egyaránt. A telek középpontjában helyezkedik el a 2010-ben téglából épült, kétszintes, 220 m2-es szerkezetkész családi ház, melynek alsó szintjén gépészeti helyiség, műhely és több tároló került kialakításra, míg az emeleten egy panorámás amerikai konyhás nappali, három tágas hálószoba, gardrób, fürdőszoba és erkély szerepel a tervekben. A fűtés korszerű, környezetbarát megoldással, geotermikus rendszerrel került előkészítésre, melynek gépészeti kiállása már az alsó szinten kiépítésre is került. Az udvaron található továbbá egy az 1950-es években épült, klasszikus hangulatot árasztó, hosszirányú parasztház, mely felújítást igényel, ugyanakkor karakteres megjelenése és jó elrendezése (két szoba, konyha, fürdőszoba) miatt remek lehetőségeket rejt magában, akár vendégházként, akár üzleti célú helyiségként. A harmadik épület egy kiváló állapotú, padlással rendelkező présház, amelyhez egy 13 ágból álló, villamos hálózattal ellátott, rendkívül impozáns pincerendszer kapcsolódik. Ez az épületrész nemcsak különleges atmoszférájával emelkedik ki, hanem funkcionalitásával is, így borkóstolók, baráti összejövetelek, illetve gasztronómiai rendezvények lebonyolítására is tökéletes választás lehet. Az 1.149 m2-es telek adottságai, a három épület elhelyezkedése és állapota együttesen biztosítják a sokoldalú hasznosítás lehetőségét, legyen szó turisztikai célú szálláshely kialakításáról, családok többgenerációs együttéléséről vagy akár vállalkozás üzemeltetéséről. Az ingatlan elhelyezkedése rendkívül előnyös: a történelmi belváros, a Dobó tér és az Egri Vár néhány perc sétával elérhető, így a lokáció kiválóan támogatja az idegenforgalmi célú elképzeléseket is. Amennyiben a fotók és az ingatlan paraméterei felkeltették érdeklődését, kérem forduljon hozzánk bizalommal. Irodánk teljes körű szolgáltatással segíti ügyfeleit a vásárlás során: legyen szó CSOK+, Falusi CSOK, Babaváró támogatás igénybevételéről, piaci vagy államilag támogatott hitel ügyintézéséről, energetikai tanúsítvány elkészítéséről, vagy a biztonságos adásvételt garantáló ügyvédi közreműködésről, nálunk mindent egy helyen elintézhet!

E-mail küldése a hirdetőnek

Hibás hirdetés bejelentése

Sikeres elküldtük a hiba bejelentést.

Hirdető adatai

Juhász Tamás
E-mail cím: tamas.juhasz@otpip.hu
Telefonszám: +36-30-354-3850
OTPip
Hirdetés feladója: Ingatlaniroda
Ingatlaniroda: OTPip
E-mail cím: eger.torvenyhaz@otpip.hu
Telefonszám: +36304492522

Képek



Térkép


Ajánlott ingatlanok

Családi ház

Eladó Ház, Eger

Keresés azonosító alapján: HI-2508603
  • Eger
  • Alapterület: 90 m²
  • Telekterület: 730 m²
  • Ár: 44 900 000 Ft (114 834 €)
  • Feltöltés dátuma: 2025.12.02.
  •  
Családi ház

Eladó Ház, Szilvásvárad

Keresés azonosító alapján: HI-2508627
  • Szilvásvárad
  • Alapterület: 85 m²
  • Telekterület: 125 m²
  • Ár: 34 500 000 Ft (88 235 €)
  • Feltöltés dátuma: 2025.12.02.
  •  
Családi ház

Eladó Ház, Egerszalók

Keresés azonosító alapján: HI-2508600
  • Egerszalók
  • Alapterület: 440 m²
  • Telekterület: 1 404 m²
  • Ár: 210 000 000 Ft (537 084 €)
  • Feltöltés dátuma: 2025.12.02.
  •  
Családi ház

Eladó Ház, Ostoros

Keresés azonosító alapján: HI-2508616
  • Ostoros
  • Alapterület: 96 m²
  • Telekterület: 900 m²
  • Ár: 94 500 000 Ft (241 688 €)
  • Feltöltés dátuma: 2025.12.02.
  •  
Facebook
Blogger
Twitter
Tweets by hasznaltingatla
Flickr