Eladó ház, Egyházasfalu

Ingatlan azonosító: HI-2540820

Győr-Moson-Sopron megye - Egyházasfalu, Családi ház


62 900 000 Ft (175 209 €)

  • Hirdetés feladója: Ingatlaniroda
  • Pontos cím: Egyházasfalu Kossuth Lajos utca
  • Típus: Eladó
  • Belső irodai azonosító: HZ016931-5157369
  • Alapterület: 232 m²
  • Telekterület: 3 296 m² ( 916 négyszögöl )
  • Építés éve: 1986
  • Egész szobák száma (12 m² felett): 6 db
  • Félszobák száma (6-12 m² között): 0 db
  • Fürdőszobák száma: 2 db
  • Ingatlan állapota: jó állapotú
  • Fűtés: gázkazán
  • Pince: nincs
  • Akadálymentesített: nincs
  • Napelem van?: nincs
  • Légkondicionáló: nincs

Leírás

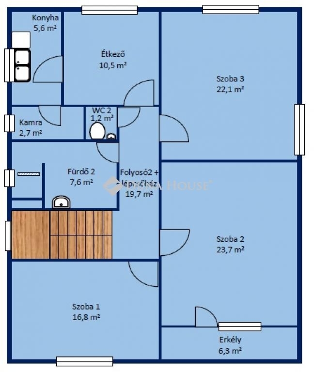
+++ 5 SZOBÁS, KÉTGENERÁCIÓS CSALÁDI HÁZ - EGYHÁZASFALU +++ Egyházasfalun eladó egy 232 m²-es, kétszintes családi ház, 3296 m²-es telken. Az ingatlan lakható állapotú, statikailag kiváló, szerkezetileg stabil épület, mely akár kétgenerációs otthonnak is tökéletes választás a három külön bejáratnak köszönhetően. AZ INGATLAN FŐBB JELLEMZŐI: - 232 m² lakóterület - 3296 m² telek - lebetonozott padlástér - tető és tetőszerkezet nagyon jó állapotú - statikailag kiváló állapot - gázkazán - vegyes tüzelésű kazán - garázs (a házból is megközelíthető) - több melléképület - 3 külön bejárat - kétgenerációs kialakításra alkalmas - a telek hátsó része gondozás alatt áll FÖLDSZINT: - nappali - 2 szoba - fürdőszoba WC-vel - kazánház - folyosó - garázs EMELET: - 3 szoba - konyha - étkező - fürdőszoba - külön WC - háztartási helyiség - közlekedő - erkély Az ingatlan ideális választás nagycsaládosoknak vagy két generáció együttélésére, valamint azok számára, akik nagy telekkel rendelkező, stabil szerkezetű házat keresnek. Az alaprajz tájékoztató jellegű.

E-mail küldése a hirdetőnek

Hibás hirdetés bejelentése

Sikeres elküldtük a hiba bejelentést.

Hirdető adatai

Vaszari Richárd
E-mail cím: vaszari.richard@dh.hu
Telefonszám: +36706078641
Duna House
Hirdetés feladója: Ingatlaniroda
Ingatlaniroda: Duna House
E-mail cím: mosonmagyarovar@dh.hu
Telefonszám: +36708828207

Képek



Térkép


Ajánlott ingatlanok

Családi ház

Eladó ház, Kóny

Keresés azonosító alapján: HI-2501152
  • Kóny Deák Ferenc utca
  • Alapterület: 110 m²
  • Telekterület: 1 646 m²
  • Ár: 67 480 000 Ft (187 967 €)
  • Feltöltés dátuma: 2025.11.12.
  •  
Családi ház

Eladó ház, Fenyőfő

Keresés azonosító alapján: HI-2545362
  • Fenyőfő Petőfi utca
  • Alapterület: 154 m²
  • Telekterület: 2 823 m²
  • Ár: 34 400 000 Ft (95 822 €)
  • Feltöltés dátuma: 2026.03.03.
  •  
Családi ház

Eladó ház, Szerecseny

Keresés azonosító alapján: HI-2545363
  • Szerecseny Jókai utca
  • Alapterület: 110 m²
  • Telekterület: 2 834 m²
  • Ár: 53 500 000 Ft (149 025 €)
  • Feltöltés dátuma: 2026.03.03.
  •  
Családi ház

Eladó ház, Mosonmagyaróvár

Keresés azonosító alapján: HI-2535957
  • Mosonmagyaróvár Tétényi utca
  • Alapterület: 110 m²
  • Telekterület: 2 200 m²
  • Ár: 64 900 000 Ft (180 780 €)
  • Feltöltés dátuma: 2026.02.12.
  •  
Facebook
Blogger
Twitter
Tweets by hasznaltingatla
Flickr