Eladó Ház, Érd

Ingatlan azonosító: HI-2558732

Pest megye - Érd, Családi ház


159 999 000 Ft (445 680 €)

  • Hirdetés feladója: Ingatlaniroda
  • Pontos cím: Érd
  • Típus: Eladó
  • Belső irodai azonosító: M323372-5193841
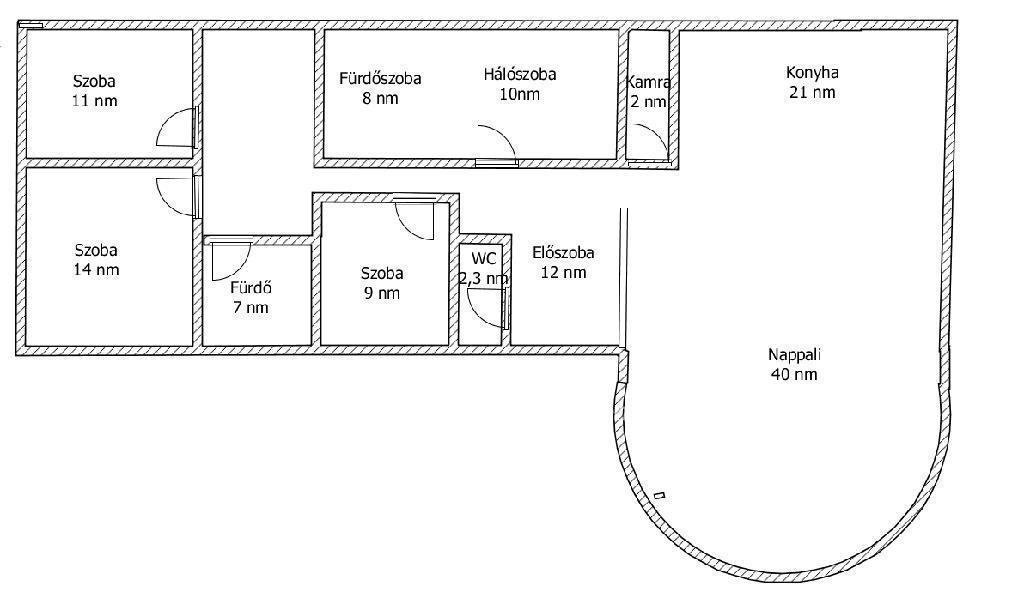
  • Alapterület: 170 m²
  • Telekterület: 897 m² ( 249 négyszögöl )
  • Építés éve: 1972
  • Egész szobák száma (12 m² felett): 4 db
  • Félszobák száma (6-12 m² között): 0 db
  • Ingatlan állapota: felújított
  • Komfort: duplakomfortos
  • Fűtés: gáz (cirko)
  • Pince: nincs
  • Akadálymentesített: nincs
  • Napelem van?: nincs
  • Légkondicionáló: van

Leírás

Tágas 170 nm-es, teraszos, erkélyes, pincés, gépkocsi beállós kétszintes családi ház eladó Érd Parkvárosban! Budapesti elsősorban XIII. kerületi, de akár VII. VI. VIII. IX. kerületi kisebb lakás beszámítása megoldható! Ha nyugodt, zöldövezeti környezetben keres új otthont, de fontos a jó közlekedés Budapest felé, akkor ez az ingatlan tökéletes választás! Főbb jellemzők: Telek területe: 897 nm, Hasznos alapterület: 170 nm, Teraszok összesen: 46 nm (27 nm a földszinten, 19 nm az emeleten), + 2 nm erkély az emeleten. Elrendezés és műszaki tartalom: A ház eredetileg a 70-es években épült B30-as téglából. A födémtől felfelé (gerendázat, héjazat és cserép) a tetőszerkezet 10 éve teljesen megújult, stabil és kiváló állapotú. Ugyanekkor került fel a 10 cm vastag külső hőszigetelés is, amely szintén jó állapotban van. Fa nyílászárók, dupla üvegezéssel. Alumínium szigetelt redőnyök (fa hatású kivitelben). Minden ablakon szúnyogháló. Riasztórendszer, ipari áram is rendelkezésre áll. Fűtési rendszer: Gázcirkó kazán (5 éves) Vegyes tüzelésű kazán, Padlófűtés a hidegburkolatos helyiségekben, Radiátoros fűtés a meleg burkolatos szobákban, Az emeleten a fürdőszobában elektromos padlófűtés, Légkondicionáló az emeleten, A ház alsó szintje 2000-ben teljes körű felújításon esett át (villany- és vízvezetékek), az emelet pedig 2020-ban lett modernizálva. A lakótér kb. 60%-a alatt pince található, ami tárolásra vagy műhely kialakítására is kiváló. Energetikai jellemzők: Az ingatlan ?B? energetikai besorolást kapott, amely a jelenlegi épületenergetikai követelményekhez közeli, gazdaságosan fenntartható állapotot jelent. A jó minőségű hőszigetelésnek és korszerű fűtési rendszernek köszönhetően alacsony rezsiköltséggel fenntartható. Kert és külső épületek: Gondozott, parkosított kert, teljesen intim hátsó udvar, nem belátható. Öntözőrendszerrel felszerelve. A telken található egy 2003-ban, eredeti pajta tervei alapján épült nagyméretű, jelenleg garázsként funkcionáló épület, kialakítása gépkocsi tárolására készült, akár 2 nagyobb vagy 3 kisebb autó is kényelmesen elfér benne. Az egyik pajtakapu elektromosan nyitható, távirányítóval. A bejárás szintén elektromos kapun keresztül történik. Közlekedés, Budapest elérhetősége: Autóval: az M7-es autópálya 2 perc alatt elérhető, így Budapest gyorsan megközelíthető. Tömegközlekedés: A közelben található autóbuszmegálló, ahonnan közvetlen járatok indulnak Budapest Kelenföld vagy Etele tér felé. Vonattal: Az Érd alsó vagy Érd felső vasútállomás könnyen elérhető, gyors bejutás a fővárosba. A környékről: Érd Parkváros közkedvelt, csendes, kertvárosias övezet, ahol kiváló az infrastruktúra és jó a közbiztonság. A közelben található több óvoda, iskola, élelmiszerbolt, gyógyszertár, valamint orvosi rendelő is. A környék ideális családosoknak és mindazoknak, akik zöldövezeti, nyugodt környezetet keresnek, de nem akarnak lemondani a városi kényelemről és Budapest gyors elérhetőségéről. Ez a ház ideális választás lehet: Tágas, otthont keresőknek, akik élveznék a kertvárosi nyugalmat, de fontos számukra Budapest közelsége. Ne hagyja ki ezt a lehetőséget! Ha szívesen megtekintené személyesen is ezt a gyönyörű, jól karbantartott otthont, keressen bizalommal! Referencia szám: M323372 Az energetikai tanúsítvány készítése folyamatban van, amint rendelkezésre áll, úgy azzal a hirdetés frissítésre kerül.

E-mail küldése a hirdetőnek

Hibás hirdetés bejelentése

Sikeres elküldtük a hiba bejelentést.

Hirdető adatai

Szilveszter Noémi
E-mail cím: noemi.szilveszter@otpip.hu
Telefonszám: +36-30-439-4614
OTPip
Hirdetés feladója: Ingatlaniroda
Ingatlaniroda: OTPip
E-mail cím: szigetszentmiklos@otpip.hu
Telefonszám: +36-30-204-3660

Képek



Térkép


Ajánlott ingatlanok

Családi ház

Eladó Ház, Kiskunlacháza

Keresés azonosító alapján: HI-2544225
  • Kiskunlacháza
  • Alapterület: 135 m²
  • Telekterület: 720 m²
  • Ár: 120 000 000 Ft (334 262 €)
  • Feltöltés dátuma: 2026.03.02.
  •  
Családi ház

Eladó Ház, Szigetszentmiklós

Keresés azonosító alapján: HI-2561900
  • Szigetszentmiklós
  • Alapterület: 167 m²
  • Telekterület: 400 m²
  • Ár: 99 500 000 Ft (277 159 €)
  • Feltöltés dátuma: 2026.04.16.
  •  
Családi ház

Eladó Ház, Szigethalom

Keresés azonosító alapján: HI-2544273
  • Szigethalom
  • Alapterület: 164 m²
  • Telekterület: 355 m²
  • Ár: 119 900 000 Ft (333 983 €)
  • Feltöltés dátuma: 2026.03.02.
  •  
Családi ház

Eladó Ház, Szigetszentmiklós

Keresés azonosító alapján: HI-2566438
  • Szigetszentmiklós
  • Alapterület: 25 m²
  • Telekterület: 540 m²
  • Ár: 25 900 000 Ft (72 145 €)
  • Feltöltés dátuma: 2026.04.30.
  •  
Facebook
Blogger
Twitter
Tweets by hasznaltingatla
Flickr