Eladó Ház, Fehérgyarmat

Ingatlan azonosító: HI-2522835

Szabolcs-Szatmár-Bereg megye - Fehérgyarmat, Családi ház


26 500 000 Ft (67 259 €)

  • Hirdetés feladója: Ingatlaniroda
  • Pontos cím: Fehérgyarmat
  • Típus: Eladó
  • Belső irodai azonosító: M319404-5124053
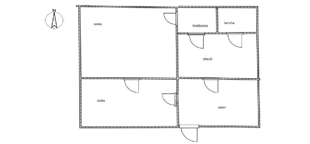
  • Alapterület: 56 m²
  • Telekterület: 1 083 m² ( 301 négyszögöl )
  • Építés éve: 1970
  • Egész szobák száma (12 m² felett): 2 db
  • Félszobák száma (6-12 m² között): 0 db
  • Ingatlan állapota: felújítandó
  • Komfort: összkomfortos
  • Fűtés: gáz (konvektor)
  • Pince: nincs
  • Akadálymentesített: nincs
  • Napelem van?: nincs
  • Légkondicionáló: nincs

Leírás

Fehérgyarmat főutcáján eladó 2 szobás családi ház ? 1083?nm telek, felújítás alatt álló fürdőszoba, meleg otthon! Fehérgyarmat központjában, főutcai elhelyezkedéssel, kínáljuk eladásra ezt a 2 szobás, családi házat, mely 1083?nm-es telken helyezkedik el. A ház felújítandó, de komfortos, a fürdőszoba éppen átmegy egy modern felújításon, így hamar használható, a ház többi részét pedig saját ízlésed szerint alakíthatod. A fa nyílászárók kellemes hangulatot adnak, miközben hozzájárulnak a hőszigeteléshez, a gázkonvektor és a cserépkályha pedig biztosítja a kellemes meleget a hideg hónapokban. A tágas telek lehetőséget ad kert, konyhakert vagy akár garázs kialakítására. Miért érdemes megvásárolni? Akár azonnal lakható, vagy akár felújításra kész ? alakítsd saját ízlésed szerint 1083?nm-es telek ? kertkapcsolat, privát tér és szabad lehetőségek Felújítás alatt álló fürdőszoba ? a komfort már biztosított Meleg otthon: gázkonvektor + cserépkályha Fa nyílászárók ? hangulatos és praktikus remek belépő lehetőség első saját otthonhoz vagy befektetésre Főutcai elhelyezkedés ? központi, mégis nyugodt környezet Ajánljuk: Családoknak, akik saját otthonukat szeretnék kialakítani Befektetőknek, akik felújítanák és kiadnák Első lakást vásárlóknak, akik központi, de nyugodt helyen keresnek otthont Banki hátterünknek köszönhetően finanszírozási igényekben (pl. Otthon Start Hitelprogram , Babaváró, CSOK Plusz, Lakáshitel, Személyi kölcsön stb.), tekintetében is díjmentesen, soron kívüli ügyintézéssel segítem ügyfeleim! Ez a ház ideális választás mindazok számára, akik szeretnének egy saját ízlésre formálható vagy akár szinte azonnal költözhető költözhető otthont, ahol a külső megjelenést teljesen a saját stílusukra formálhatják.Kosvárosi életre vágyóknak, akik nagy kertet és kényelmes házat szeretnének Referenciaszám: M319404

E-mail küldése a hirdetőnek

Hibás hirdetés bejelentése

Sikeres elküldtük a hiba bejelentést.

Hirdető adatai

Kiszely Valéria Erzsébet
E-mail cím: erzsebet.kiszely.valeria@otpip.hu
Telefonszám: +36202794535
OTPip
Hirdetés feladója: Ingatlaniroda
Ingatlaniroda: OTPip
E-mail cím: nyiregyhaza.bocskai@otpip.hu
Telefonszám: +36706060062

Képek



Térkép


Ajánlott ingatlanok

Családi ház

Eladó Ház, Fehérgyarmat

Keresés azonosító alapján: HI-2509990
  • Fehérgyarmat
  • Alapterület: 314 m²
  • Telekterület: 1 589 m²
  • Ár: 68 000 000 Ft (172 589 €)
  • Feltöltés dátuma: 2025.12.05.
  •  
Családi ház

Eladó Ház, Nyírmada

Keresés azonosító alapján: HI-2542524
  • Nyírmada
  • Alapterület: 120 m²
  • Telekterület: 2 995 m²
  • Ár: 32 000 000 Ft (81 218 €)
  • Feltöltés dátuma: 2026.03.01.
  •  
Családi ház

Eladó Ház, Kisvárda

Keresés azonosító alapján: HI-2468697
  • Kisvárda
  • Alapterület: 136 m²
  • Telekterület: 112 m²
  • Ár: 29 400 000 Ft (74 619 €)
  • Feltöltés dátuma: 2025.09.02.
  •  
Családi ház

Eladó Ház, Vásárosnamény

Keresés azonosító alapján: HI-2470430
  • Vásárosnamény
  • Alapterület: 110 m²
  • Telekterület: 1 000 m²
  • Ár: 55 000 000 Ft (139 594 €)
  • Feltöltés dátuma: 2025.09.04.
  •  
Facebook
Blogger
Twitter
Tweets by hasznaltingatla
Flickr