Eladó Ház, Felsőzsolca

Ingatlan azonosító: HI-2465786

Borsod-Abaúj-Zemplén megye - Felsőzsolca, Családi ház


58 900 000 Ft (151 026 €)

  • Hirdetés feladója: Ingatlaniroda
  • Pontos cím: Felsőzsolca
  • Típus: Eladó
  • Belső irodai azonosító: M308225-5019142
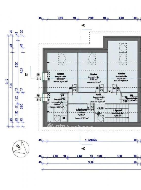
  • Alapterület: 108 m²
  • Telekterület: 560 m² ( 156 négyszögöl )
  • Építés éve: 1992
  • Egész szobák száma (12 m² felett): 3 db
  • Félszobák száma (6-12 m² között): 3 db
  • Ingatlan állapota: felújított
  • Komfort: összkomfortos
  • Fűtés: gáz (cirko)
  • Pince: nincs
  • Akadálymentesített: nincs
  • Napelem van?: nincs
  • Légkondicionáló: nincs

Leírás

Eladó Felsőzsolcán, kertvárosi környezetben egy 108 nm-es hasznos alapterületű kétszintes családi ház, melyhez tartozik egy garázs tárolóval, fúrt kút és pince is. Az ingatlan ideális választás akár nagyobb család részére is. Felsőzsolca újépítésű negyedének közvetlen szomszédságában helyezkedik el, ahol folyamatos a fejlődés és a virágzó közösségi élet átszövi a nyugalom és a béke szövetét. Ebben a kétszintes, 2023-ban teljeskörűen felújított családi házban három otthonos, világos szoba, továbbá három félszoba, egy modern konyha hűvös spájzzal, fürdőszoba, valamint egy emeleti, állandóan világos társalgó is található. A ház alatt egy kényelmes belmagassággal rendelkező szuterén is helyet kapott, ahol a gépészet és további tároló/spájz található. Az elosztás praktikus és kompakt, minden helyiség modern és otthonos, többségében DK, ÉNY-i fekvésű szobákkal jól használható és variálható tereket kínál. A külső falak szilikátblokkból, a belső elválasztó és tartópillérek téglából épültek. 2021-ben számos felújítás vette kezdetét. - Tetőcsere, - 10 cm-es szigetelés és színezés, - Műanyag nyílászárók cseréjével, szúnyoghálóval és redőnnyel felszerelve 2023-ban felújításra került a konyha, minőségi, beépített gépekkel, mely a vételár részét képezi. Az ingatlanhoz 560 nm-es telek tartozik, mely kiváló lehetőséget nyújt kertészkedésre, nagyobb családi összejövetelekre és kényelmes pihenésre is. A ház tartós és biztos alapokon nyugszik, kiváló minőségben, szakszerűen felújított. A fűtésről megbízható gáz-cirkó rendszer gondoskodik, mely hatékony és energiatakarékos, a hőleadás radiátorokon keresztül megoldott, a víz felmelegítését pedig egy 120l-es bojler oldja meg, mely éjszakai áramról is képes üzemelni. A lokáció is kiemelkedően jó: a környék modern, csendes és nyugodt, barátságos szomszédokkal. Miskolc közelsége 15 perc alatt elérhető autóval, mégis zöldövezeti környezetben helyezkedik el és kiesik a város zajától. A közelben bolt, pékség, kormányablak, gyógyszertár, orvosi rendelő és állatorvos is található. Azon szerencsés elhelyezkedésű ingatlanok közé sorolható, ahonnan néhány perc sétára a városi és távolsági busz is közlekedik. Kb. 10 percre számos szupermarket, áruház, üzlet, gyorsétterem és az M30-as autópálya is elérhető. Kiváló infrastrukturális lehetőségekkel bír a település, bármerre is induljunk munkába. Ez az ingatlan remek választás azok számára, akik otthonukat modern, nyugodt, családias környezetben keresik, de fontos számukra a város közelsége. Referencia szám: M308225

E-mail küldése a hirdetőnek

Hibás hirdetés bejelentése

Sikeres elküldtük a hiba bejelentést.

Hirdető adatai

Klubert Gergő
E-mail cím: gergo.klubert@otpip.hu
Telefonszám: +36-70-907-0598
OTPip
Hirdetés feladója: Ingatlaniroda
Ingatlaniroda: OTPip
E-mail cím: miskolc.szemere@otpip.hu
Telefonszám: +36-70-606-0062

Képek



Térkép


Ajánlott ingatlanok

Családi ház

Eladó Ház, Sajószentpéter

Keresés azonosító alapján: HI-2470598
  • Sajószentpéter
  • Alapterület: 275 m²
  • Telekterület: 1 552 m²
  • Ár: 63 500 000 Ft (162 821 €)
  • Feltöltés dátuma: 2025.09.04.
  •  
Családi ház

Eladó Ház, Miskolc

Keresés azonosító alapján: HI-2489366
  • Miskolc
  • Alapterület: 65 m²
  • Telekterület: 566 m²
  • Ár: 53 000 000 Ft (135 897 €)
  • Feltöltés dátuma: 2025.10.14.
  •  
Családi ház

Eladó Ház, Tarcal

Keresés azonosító alapján: HI-2406130
  • Tarcal
  • Alapterület: 94 m²
  • Telekterület: 1 697 m²
  • Ár: 34 900 000 Ft (89 487 €)
  • Feltöltés dátuma: 2025.04.24.
  •  
Családi ház

Eladó Ház, Mezőkövesd

Keresés azonosító alapján: HI-2442301
  • Mezőkövesd
  • Alapterület: 91 m²
  • Telekterület: 262 m²
  • Ár: 34 990 000 Ft (89 718 €)
  • Feltöltés dátuma: 2025.07.08.
  •  
Facebook
Blogger
Twitter
Tweets by hasznaltingatla
Flickr