Eladó ház, Fót

Ingatlan azonosító: HI-2541265

Pest megye - Fót, Sorház


126 990 000 Ft (348 874 €)

  • Hirdetés feladója: Ingatlaniroda
  • Pontos cím: Fót Árvácska utca
  • Típus: Eladó
  • Belső irodai azonosító: HZ084915-5149904
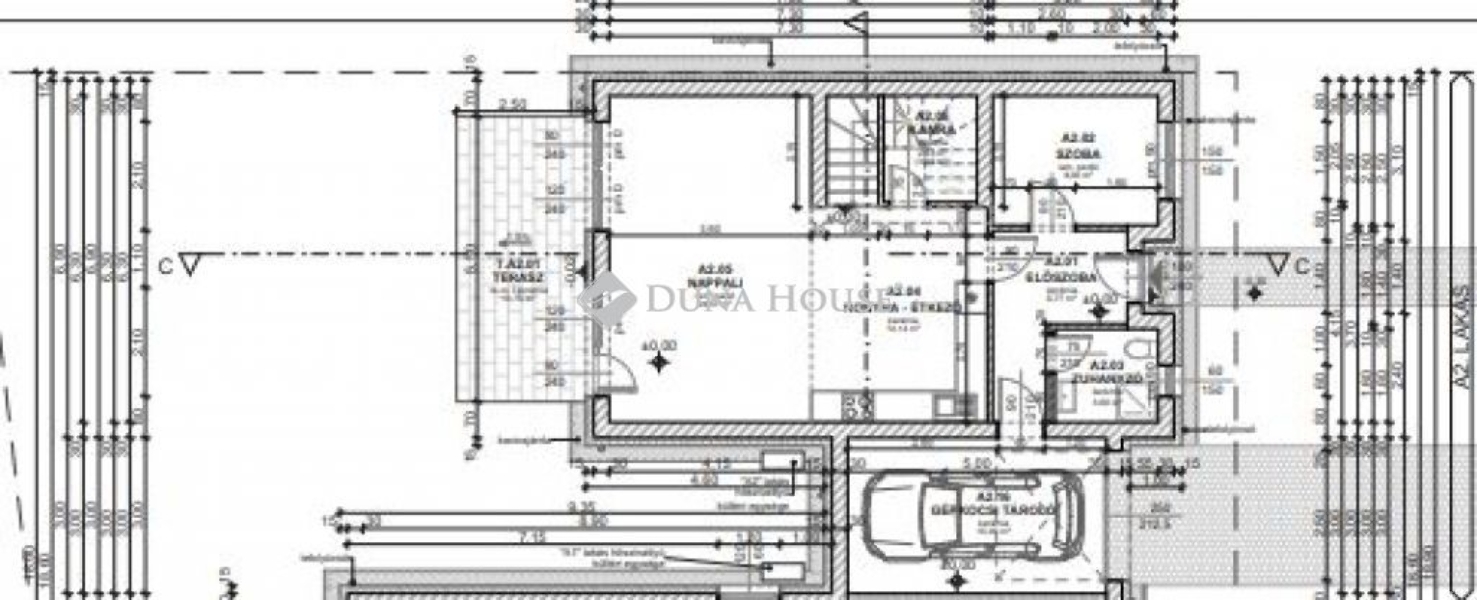
  • Alapterület: 110 m²
  • Telekterület: 150 m² ( 42 négyszögöl )
  • Építés éve: 2010
  • Egész szobák száma (12 m² felett): 4 db
  • Félszobák száma (6-12 m² között): 0 db
  • Fürdőszobák száma: 2 db
  • Ingatlan állapota: felújított
  • Fűtés: gázkazán
  • Pince: nincs
  • Akadálymentesített: nincs
  • Napelem van?: nincs
  • Légkondicionáló: nincs

Leírás

Eladó sorházi lakás Fót KirálydombEladásra kínálok egy makulátlan állapotban lévő tágas, világos sorházi lakást Fót kiemelkedő részén a Királydombon. Jelenlegi Tulajdonosai folyamatosan karbantartották az ingatlant, gyakorlatilag egy tisztasági festéssel azonnal költözhető.Az Élettéről: A földszinten található egy hatalmas amerikai-konyhás nappali, előszoba, fürdő (most tárolóként funkcinál) tároló, háztartási helység, benne mellékhelység. Az emeletre érve 3 szoba és egy fürdőszoba került kialakításra. A szobák tágasak és világosak. Az otthon melegéről gázkazán gondoskodik, míg a meleg nyári napsugarak elől klíma biztosítja a kellemes hőérzetet. Az ingatlanhoz tartozik egy saját gondozott elő és hátsó kertész. A hátsó udvari szakasz tökéletes lehetőséget biztosít grillezésre, baráti vagy családi összejövetelekre és kihasználni ezen városrésznek méltán híres nyugalmát. A kertben további tárolási helység is helyett kapott, illetve elektromos napellenző került felhelyezésre. A padlás tér nincsen beépítve mely további tárolási lehetőséget biztosít az Új Tulajdonos számára. Az ingatlanhoz tartozik egy fedett kocsi beálló is, további autó parkolásra van még lehetőség előtte.A szomszédság és a lakóparkban élők kedvesek és barátságosak. Ez az ingatlan Fót legnépszerűbb helyén helyezkedik el, kiváló lakóközösségének és a környék folyamatos fejlesztésének köszönhetően nagyon ritkák itt az eladó ingatlanok!! A ház értékét tovább növelve: 5 perc sétára található a domb részén nem régen megépült, igen népszerű több hektáros pihenő park, ahol játszótér, futópálya, sétáló rész került kialakításra mindez panorámás környezetben.Természetkedvelők számára is kimondottan jó választás lehet a gyönyörű erdős rész szintén 5 perc séta alatt érhető el. Boltok, iskola, óvoda, bölcsi, orvosi rendelő, védőnő, gyógyszertár, vasútállomás, buszmegálló Fóti tó, mely szintén nagy népszerűségnek örvend -minden pár perc sétával elérhető.A Királydomb rész nem hiába a legkedveltebb az ingatlankeresők körében, központi helyen helyezkedik el, tökéletes infrastruktúrával, ám mégis természetközeli, panorámás környezetbenNézzük meg együtt, ide csak beköltözni kell, minden egyéb ráfordítás nélkül!!Független hiteltanácsadásban is tudok segíteni teljesen díjmentesen!!

E-mail küldése a hirdetőnek

Hibás hirdetés bejelentése

Sikeres elküldtük a hiba bejelentést.

Hirdető adatai

Schmidt Kata Diana
E-mail cím: schmidt.kata@dh.hu
Telefonszám: +36204965989
Duna House
Hirdetés feladója: Ingatlaniroda
Ingatlaniroda: Duna House
E-mail cím: fot@dh.hu
Telefonszám: +36705774328

Képek



Térkép


Ajánlott ingatlanok

Sorház

Eladó ház, Budapest 23. ker.

Keresés azonosító alapján: HI-2541110
  • Budapest XXIII. Táncsics Mihály utca
  • Alapterület: 122 m²
  • Telekterület: 500 m²
  • Ár: 89 900 000 Ft (246 978 €)
  • Feltöltés dátuma: 2026.02.25.
  •  
Sorház

Eladó ház, Dunakeszi

Keresés azonosító alapján: HI-2541250
  • Dunakeszi Bródy Sándor utca
  • Alapterület: 78 m²
  • Telekterület: 280 m²
  • Ár: 74 900 000 Ft (205 769 €)
  • Feltöltés dátuma: 2026.02.25.
  •  
Sorház

Eladó ház, Szentendre

Keresés azonosító alapján: HI-2545995
  • Szentendre Templom tér
  • Alapterület: 86 m²
  • Telekterület: 216 m²
  • Ár: 116 400 000 Ft (319 780 €)
  • Feltöltés dátuma: 2026.03.04.
  •  
Sorház

Eladó ház, Tatabánya

Keresés azonosító alapján: HI-2541074
  • Tatabánya Borbély utca
  • Alapterület: 516 m²
  • Telekterület: 2 499 m²
  • Ár: 35 000 000 Ft (96 154 €)
  • Feltöltés dátuma: 2026.02.25.
  •  
Facebook
Blogger
Twitter
Tweets by hasznaltingatla
Flickr