Eladó Ház, Galgahévíz

Ingatlan azonosító: HI-2496511

Pest megye - Galgahévíz, Családi ház


38 000 000 Ft (98 191 €)

  • Hirdetés feladója: Ingatlaniroda
  • Pontos cím: Galgahévíz
  • Típus: Eladó
  • Belső irodai azonosító: M314376-5073814
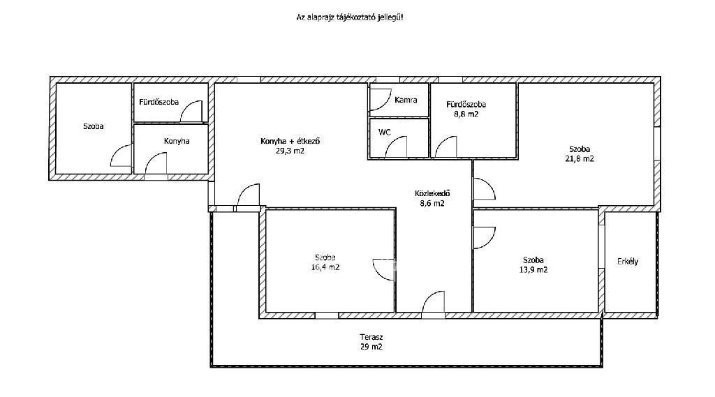
  • Alapterület: 101 m²
  • Telekterület: 474 m² ( 132 négyszögöl )
  • Építés éve: 1987
  • Egész szobák száma (12 m² felett): 4 db
  • Félszobák száma (6-12 m² között): 0 db
  • Ingatlan állapota: közepes állapotú
  • Komfort: összkomfortos
  • Fűtés: gáz (cirko)
  • Pince: nincs
  • Akadálymentesített: nincs
  • Napelem van?: nincs
  • Légkondicionáló: nincs

Leírás

Tágas családi ház eladó Galgahévízen kétgenerációs lehetőséggel! Megvételre kínálok Galgahévízen, egy csendes mellékutcában található, 101 nm-es alapterületű családi házat, 474 nm-es telken. Az ingatlan 1987-ben épült szilikát falazattal, szerkezetileg stabil, belső részek felújítandó állapotúak, így új tulajdonosa saját igényei szerint alakíthatja. A főépületben 3 kényelmes hálószoba található, a belső terek tágasak és jól kihasználhatók. A telken külön melléképület is található, amelyben egy önálló, egyszobás lakás került kialakításra. Ez ideális megoldás lehet két generáció együttélésére, vendéglakásként, vagy akár kiadásra is. Műszaki jellemzők: - Fűtés: gázkazán radiátoros hőleadással - Alternatív fűtés: vegyestüzelésű kazán - Összközműves ingatlan: víz, villany, gáz, csatorna - Falazat: szilikát - Állapot: felújítandó - Tetőtér beépíthető Főbb előnyök: - 101 nm-es lakótér + különálló lakrész - 474 nm-es telek, könnyen gondozható méret - Kétgenerációs elrendezés lehetősége - Csendes, nyugodt környezet - Egyéni igényekre szabható kialakítás Ne hagyja ki ezt a kiváló adottságú ingatlant, amely remek lehetőséget kínál akár nagyobb családok, akár befektetők számára! Az ingatlan CSOK Pluszra és Otthon Start hitelre nem alkalmas! További információért és megtekintésért keressen bizalommal, akár hétvégén is!

E-mail küldése a hirdetőnek

Hibás hirdetés bejelentése

Sikeres elküldtük a hiba bejelentést.

Hirdető adatai

Markesz András
E-mail cím: andras.markesz@otpip.hu
Telefonszám: +36-20-535-8687
OTPip
Hirdetés feladója: Ingatlaniroda
Ingatlaniroda: OTPip
E-mail cím: jaszbereny@otpip.hu
Telefonszám: +36-70-393-4944

Képek



Térkép


Ajánlott ingatlanok

Családi ház

Eladó Ház, Hévízgyörk

Keresés azonosító alapján: HI-2466163
  • Hévízgyörk
  • Alapterület: 82 m²
  • Telekterület: 350 m²
  • Ár: 18 500 000 Ft (47 804 €)
  • Feltöltés dátuma: 2025.08.27.
  •  
Családi ház

Eladó Ház, Galgahévíz

Keresés azonosító alapján: HI-2496513
  • Galgahévíz
  • Alapterület: 108 m²
  • Telekterület: 416 m²
  • Ár: 39 900 000 Ft (103 101 €)
  • Feltöltés dátuma: 2025.10.31.
  •  
Családi ház

Eladó Ház, Hatvan

Keresés azonosító alapján: HI-2496507
  • Hatvan
  • Alapterület: 187 m²
  • Telekterület: 1 777 m²
  • Ár: 67 900 000 Ft (175 452 €)
  • Feltöltés dátuma: 2025.10.31.
  •  
Családi ház

Eladó Ház, Veresegyház

Keresés azonosító alapján: HI-2483625
  • Veresegyház
  • Alapterület: 71 m²
  • Telekterület: 893 m²
  • Ár: 66 900 000 Ft (172 868 €)
  • Feltöltés dátuma: 2025.10.01.
  •  
Facebook
Blogger
Twitter
Tweets by hasznaltingatla
Flickr