Eladó Ház, Galgahévíz

Ingatlan azonosító: HI-2559879

Pest megye - Galgahévíz, Családi ház


38 000 000 Ft (101 064 €)

  • Hirdetés feladója: Ingatlaniroda
  • Pontos cím: Galgahévíz
  • Típus: Eladó
  • Belső irodai azonosító: M323755-5196664
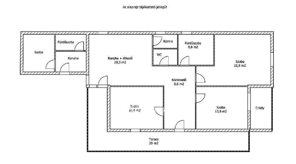
  • Alapterület: 101 m²
  • Telekterület: 474 m² ( 132 négyszögöl )
  • Építés éve: 1987
  • Egész szobák száma (12 m² felett): 3 db
  • Félszobák száma (6-12 m² között): 0 db
  • Ingatlan állapota: közepes állapotú
  • Komfort: összkomfortos
  • Fűtés: gáz (cirko)
  • Pince: nincs
  • Akadálymentesített: nincs
  • Napelem van?: nincs
  • Légkondicionáló: nincs

Leírás

Tágas családi ház eladó Galgahévízen kétgenerációs lehetőséggel! Megvételre kínálok Galgahévízen, egy csendes mellékutcában található, 101 nm-es alapterületű családi házat, 474 nm-es telken. Az ingatlan 1987-ben épült szilikát falazattal, szerkezetileg stabil, belső részek felújítandó állapotúak, így új tulajdonosa saját igényei szerint alakíthatja. A főépületben 3 kényelmes hálószoba található, a belső terek tágasak és jól kihasználhatók. A telken külön melléképület is található, amelyben egy önálló, egyszobás lakás került kialakításra. Ez ideális megoldás lehet két generáció együttélésére, vendéglakásként, vagy akár kiadásra is. Műszaki jellemzők: - Fűtés: gázkazán radiátoros hőleadással - Alternatív fűtés: vegyestüzelésű kazán - Összközműves ingatlan: víz, villany, gáz, csatorna - Falazat: szilikát - Állapot: felújítandó - Tetőtér beépíthető - Födémen 25 cm szigetelés Főbb előnyök: - 101 nm-es lakótér + különálló lakrész - 474 nm-es telek, könnyen gondozható méret - Kétgenerációs elrendezés lehetősége - Csendes, nyugodt környezet - Egyéni igényekre szabható kialakítás Ne hagyja ki ezt a kiváló adottságú ingatlant, amely remek lehetőséget kínál akár nagyobb családok, akár befektetők számára! Az ingatlan jelenleg csak Falusi CSOK-ra és Piaci hitelre alkalmas! További információért és megtekintésért keressen bizalommal, akár hétvégén is! Referencia szám: M323755

E-mail küldése a hirdetőnek

Hibás hirdetés bejelentése

Sikeres elküldtük a hiba bejelentést.

Hirdető adatai

Burik Katalin
E-mail cím: katalin.burik@otpip.hu
Telefonszám: +36203293075
OTPip
Hirdetés feladója: Ingatlaniroda
Ingatlaniroda: OTPip
E-mail cím: eger@otpip.hu
Telefonszám: +36703772977

Képek



Térkép


Ajánlott ingatlanok

Családi ház

Eladó Ház, Nagykáta

Keresés azonosító alapján: HI-2547354
  • Nagykáta
  • Alapterület: 101 m²
  • Telekterület: 732 m²
  • Ár: 44 900 000 Ft (119 415 €)
  • Feltöltés dátuma: 2026.03.06.
  •  
Családi ház

Eladó Ház, Hatvan

Keresés azonosító alapján: HI-2409901
  • Hatvan
  • Alapterület: 125 m²
  • Telekterület: 1 049 m²
  • Ár: 79 900 000 Ft (212 500 €)
  • Feltöltés dátuma: 2025.05.02.
  •  
Családi ház

Eladó Ház, Mogyoród

Keresés azonosító alapján: HI-2497375
  • Mogyoród
  • Alapterület: 1 068 m²
  • Telekterület: 3 583 m²
  • Ár: 378 000 000 Ft (1 005 319 €)
  • Feltöltés dátuma: 2025.11.03.
  •  
Családi ház

Eladó Ház, Lőrinci

Keresés azonosító alapján: HI-2463321
  • Lőrinci
  • Alapterület: 62 m²
  • Telekterület: 1 499 m²
  • Ár: 24 500 000 Ft (65 160 €)
  • Feltöltés dátuma: 2025.08.18.
  •  
Facebook
Blogger
Twitter
Tweets by hasznaltingatla
Flickr