Eladó ház, Gárdony

Ingatlan azonosító: HI-2522516

Fejér megye - Gárdony, Ikerház


168 000 000 Ft (440 945 €)

  • Hirdetés feladója: Ingatlaniroda
  • Pontos cím: Gárdony Móricz Zsigmond utca
  • Típus: Eladó
  • Belső irodai azonosító: HZ012625-5122465
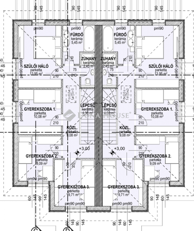
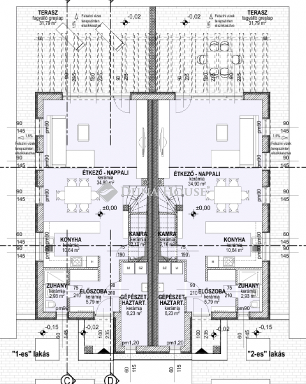
  • Alapterület: 161 m²
  • Telekterület: 353 m² ( 98 négyszögöl )
  • Építés éve: 2025
  • Egész szobák száma (12 m² felett): 5 db
  • Félszobák száma (6-12 m² között): 0 db
  • Fürdőszobák száma: 3 db
  • Ingatlan állapota: új építésű
  • Fűtés: egyéb
  • Pince: nincs
  • Akadálymentesített: nincs
  • Napelem van?: nincs
  • Légkondicionáló: nincs

Leírás

Eladó Gárdony frekventált, mégis nyugodt részén egy épülőfélben lévő, minden igényt kielégítő ikerházfél, amely nem csupán egy ingatlan, hanem egy életre szóló befektetés a minőségbe.- Tágas terek nagycsaládosoknak is. - Ritka kincs a piacon: a földszinti tágas amerikai konyhás nappali mellett további 4 teljes értékű hálószoba és 3 fürdőszoba biztosítja, hogy a reggeli készülődés torlódásmentes legyen, és mindenkinek jusson privát szféra.A teljesség igénye nélkül a lakások műszaki tartalmáról:- Viablokk falazat, 10 cm Dryvit szigetelés- Hofstadter 3 rétegű nyílászárók, motoros redőnyökkel- Egyedi kő burkolat a homlokzaton, párkányokon, - Monolit vasbetonfödém- Hőszivattyús padló hűtés-fűtés- A szobákban és a nappaliban hűtő-fűtő és páramentesítő klíma- Térkövezett járda, terasz és kocsibeállóTovábbi műszaki tartalmakkal is szívesen állunk rendelkezésre!- Zöldenergia és A++ besorolás Felejtse el a magas rezsit! A ház hőszivattyús fűtésrendszerrel és kiváló szigeteléssel épül, így energetikai besorolása A++. Amit ma megspórol a vételáron egy gyengébb háznál, azt itt a havi számlákon nyerheti vissza hosszú távon.- Miért különleges ez az ajánlat? Az ingatlan kivitelezője évtizedes tapasztalattal rendelkezik a prémium kőburkolatok világában. Mit jelent ez Önnek? Azt, hogy itt nem standard burkolatok közül válogathat: leendő tulajdonosként kiemelt lehetőséget kap prémium márvány, gránit és felső kategóriás burkolatok kiválasztására, hogy otthona valóban az Ön ízlését és a luxust tükrözze.Lokáció Gárdony a Velencei-tó fővárosa. A ház elhelyezkedése kiváló: közel a parthoz és a központi infrastruktúrához, mégis csendes környezetben.Befektetés a jövőbe Bár az ingatlan paramétereiből adódóan állami támogatások (CSOK, stb.) nem vehetők igénybe, ez a ház azoknak szól, akik nem kompromisszumokat keresnek, hanem értéket. Ideális készpénzes vásárlóknak vagy piaci hitellel rendelkezőknek, akik tudják: a minőségi anyaghasználat és a megbízható kivitelező a legjobb garancia.Várható átadás: 2026 Irányár: 168.000.000 Ft 30%-os előleggel leköthetőHívjon bizalommal, és tekintse meg a helyszínt, valamint a választható prémium burkolatok mintáit!

E-mail küldése a hirdetőnek

Hibás hirdetés bejelentése

Sikeres elküldtük a hiba bejelentést.

Hirdető adatai

Horváth Kitti
E-mail cím: horvath.kitti@dh.hu
Telefonszám: +36304445704
Duna House
Hirdetés feladója: Ingatlaniroda
Ingatlaniroda: Duna House
E-mail cím: szf.vorosmartyter@dh.hu
Telefonszám: +3622505967

Képek



Térkép


Ajánlott ingatlanok

Ikerház

Eladó ház, Sárbogárd

Keresés azonosító alapján: HI-2515949
  • Sárbogárd Vörösmarty utca
  • Alapterület: 140 m²
  • Telekterület: 1 260 m²
  • Ár: 65 900 000 Ft (172 966 €)
  • Feltöltés dátuma: 2026.01.03.
  •  
Ikerház

Eladó ház, Csór

Keresés azonosító alapján: HI-2439749
  • Csór Ady Endre utca
  • Alapterület: 111 m²
  • Telekterület: 935 m²
  • Ár: 79 900 000 Ft (209 711 €)
  • Feltöltés dátuma: 2025.07.02.
  •  
Vályogház

Eladó ház, Székesfehérvár

Keresés azonosító alapján: HI-2524261
  • Székesfehérvár Hernád utca
  • Alapterület: 73 m²
  • Telekterület: 719 m²
  • Ár: 64 900 000 Ft (170 341 €)
  • Feltöltés dátuma: 2026.01.20.
  •  
Hétvégi házas

Eladó ház, Kulcs

Keresés azonosító alapján: HI-2500154
  • Kulcs Deák Ferenc utca
  • Alapterület: 50 m²
  • Telekterület: 1 028 m²
  • Ár: 65 000 000 Ft (170 604 €)
  • Feltöltés dátuma: 2025.11.10.
  •  
Facebook
Blogger
Twitter
Tweets by hasznaltingatla
Flickr