Eladó Ház, Gárdony

Ingatlan azonosító: HI-2491029

Fejér megye - Gárdony, Vályogház


31 990 000 Ft (82 448 €)

  • Hirdetés feladója: Ingatlaniroda
  • Pontos cím: Gárdony
  • Típus: Eladó
  • Belső irodai azonosító: M315146-5065873
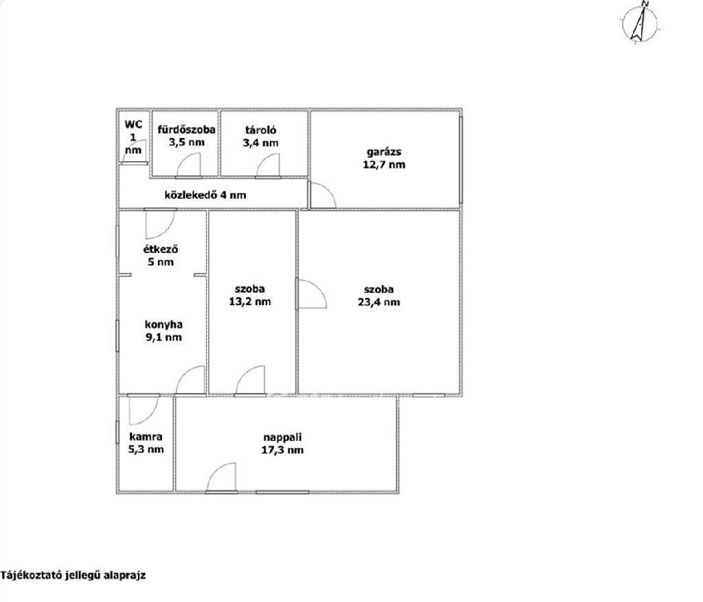
  • Alapterület: 98 m²
  • Telekterület: 1 452 m² ( 404 négyszögöl )
  • Építés éve: 1950
  • Egész szobák száma (12 m² felett): 3 db
  • Félszobák száma (6-12 m² között): 0 db
  • Ingatlan állapota: felújítandó
  • Komfort: komfort nélküli
  • Fűtés: egyéb kazán
  • Pince: nincs
  • Akadálymentesített: nincs
  • Napelem van?: nincs
  • Légkondicionáló: nincs

Leírás

Fejér megye, Gárdony, Dinnyés településen 98 nm-es családi ház eladó. A felújítandó vagy bontandó lakóingatlan egy 1452-es telken helyezkedik el közel a vasútállomáshoz. A tehermentes házban nappali, 2 szoba, konyha, étkező, kamra, fürdőszoba, külön WC és tároló található, valamint tartozik hozzá 12,7 nm-es garázs, 8 nm-es pince és egy 23 nm-es melléképület. Az épület falazata vályog és részben tégla. A közművek közül a víz, villany és a csatorna bevezetve a házba, gáz nincsen. A fűtésről vegyes tüzelésű kazán gondoskodik. A vasútállomás, buszmegálló, bolt séta távolságra találhatóak. Az ingatlanban rengeteg lehetőség rejlik, több szoba kialakítható, ráfordítással egy hangulatos családi házat alakíthat ki a Velencei tó közelében. Teljes körű ügyintézésben segítjük ügyfeleinket díjtalanul: Falusi CSOK, CSOK igénylése, kedvezményes hitel mobil bankári szolgáltatással, adásvétel teljes lebonyolításával. Bővebb információkért, kérem keressen bizalommal, akár hétvégén is. 31990000 Ft Érd.: Lepsényi Kornél +3670/8840188 Referencia szám: M315146

E-mail küldése a hirdetőnek

Hibás hirdetés bejelentése

Sikeres elküldtük a hiba bejelentést.

Hirdető adatai

Lepsényi Kornél
E-mail cím: lepsenyi.kornel@otpip.hu
Telefonszám: +36-70-884-0188
OTPip
Hirdetés feladója: Ingatlaniroda
Ingatlaniroda: OTPip
E-mail cím: velence@otpip.hu
Telefonszám: +36-70-457-6920

Képek



Térkép


Ajánlott ingatlanok

Vályogház

Eladó Ház, Vértesacsa

Keresés azonosító alapján: HI-2491026
  • Vértesacsa
  • Alapterület: 122 m²
  • Telekterület: 910 m²
  • Ár: 84 900 000 Ft (218 814 €)
  • Feltöltés dátuma: 2025.10.19.
  • klímás
Vályogház

Eladó Ház, Velence

Keresés azonosító alapján: HI-2473188
  • Velence
  • Alapterület: 57 m²
  • Telekterület: 456 m²
  • Ár: 49 900 000 Ft (128 608 €)
  • Feltöltés dátuma: 2025.09.12.
  •  
Vályogház

Eladó Ház, Daruszentmiklós

Keresés azonosító alapján: HI-2473140
  • Daruszentmiklós
  • Alapterület: 62 m²
  • Telekterület: 1 342 m²
  • Ár: 27 300 000 Ft (70 361 €)
  • Feltöltés dátuma: 2025.09.12.
  •  
Vályogház

Eladó Ház, Velence

Keresés azonosító alapján: HI-2490498
  • Velence
  • Alapterület: 27 m²
  • Telekterület: 198 m²
  • Ár: 34 900 000 Ft (89 948 €)
  • Feltöltés dátuma: 2025.10.17.
  •  
Facebook
Blogger
Twitter
Tweets by hasznaltingatla
Flickr