Eladó ház, Gödöllő

Ingatlan azonosító: HI-2514887

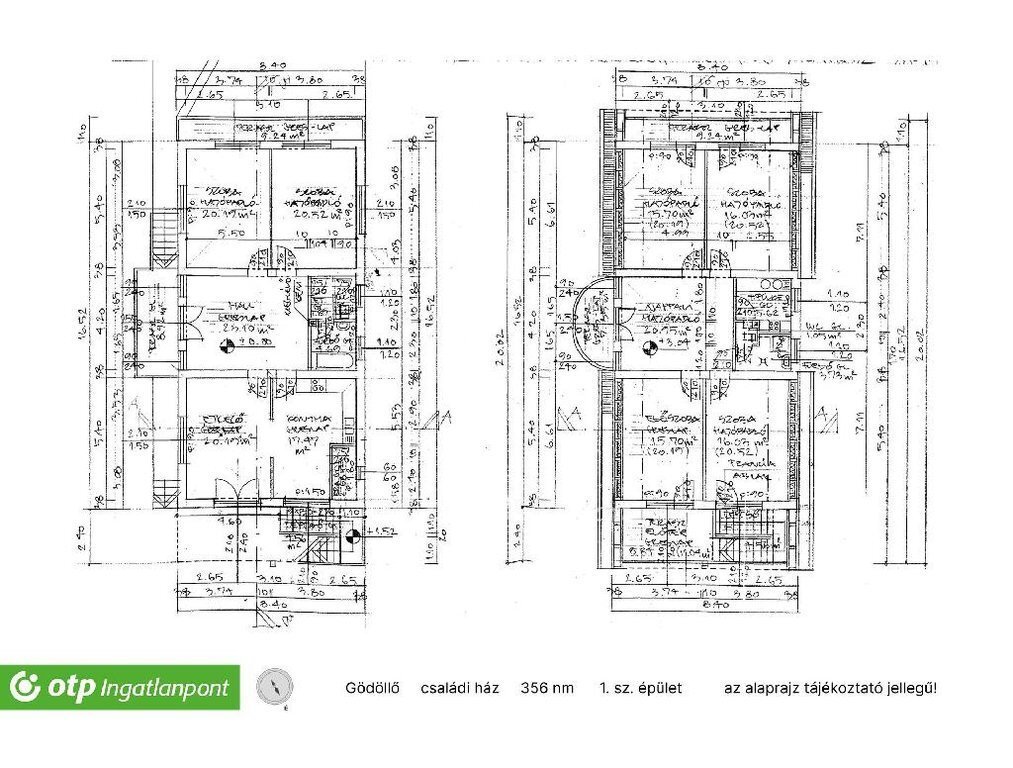
Pest megye - Gödöllő, Családi ház


139 900 000 Ft (370 106 €)

  • Hirdetés feladója: Ingatlaniroda
  • Pontos cím: Gödöllő
  • Típus: Eladó
  • Belső irodai azonosító: HZ032812-5113158
  • Alapterület: 168 m²
  • Telekterület: 770 m² ( 214 négyszögöl )
  • Építés éve: 1995
  • Egész szobák száma (12 m² felett): 5 db
  • Félszobák száma (6-12 m² között): 0 db
  • Fürdőszobák száma: 1 db
  • Ingatlan állapota: jó állapotú
  • Fűtés: gázkazán
  • Pince: nincs
  • Akadálymentesített: nincs
  • Napelem van?: nincs
  • Légkondicionáló: nincs

Leírás

HZ0328Családi ház eladó Gödöllő -Blahai részként ismert, kertvárosias környezetében nyugalom, tér és kivételes adottságok! Gödöllő egyik legkedveltebb, csendes részén, a Blahai környékként ismert, kertvárosias övezetben kínálunk megvételre egy kiváló elrendezésű családi házat, panorámával a Gödöllői-dombságra. Épület: 770 m²-es telken elhelyezkedő 1995-ben épült, masszív tégla szerkezetű, betoncserép fedésű ingatlan 110 m²-es lakóterülettel, a ház alatti szuterén részen elhelyezkedő tágas, két gépkocsi számára kialakított távirányítós kapuval ellátott 58 m² garázzsal, valamint külön kazánházzal és tárolókkal rendelkezik. A lakóterület okosan megtervezett, tágas és világos, ideális nagyobb család számára is. A nappali és a konyha elegánsan egybefonódik, míg a hálószoba és három félszoba a közlekedő részről, külön bejáratokkal biztosítja a nyugodt pihenést. Kiegészítő helyiségei spájz és háztartási helyiség a mindennapi élet kényelmét szolgálják. A 4 m²-es üvegezett és a 18 m²-es fedett terasz meghosszabbítja az életteret a szabadba, a parkettás, arányos terek pedig könnyedén bútorozhatók, így minden szempontból komfortos és stílusos otthont kínálnak. A házból és a teraszokról páratlan panoráma nyílik a Gödöllői-dombságra. A ház mögötti erdős terület és a Molly-domb garantálja a csendet, a tiszta levegőt és a nyugalmat Műszaki: Radiátoros fűtés, gázkazánnal, alternatív lehetőségként vegyes tüzelésű kazánról is biztosított. Garázs és tárolás: A 57 m²-es, hidegburkolatos garázs két autó számára biztosít kényelmes helyet. A külön kazánház és a szuterén részben kialakított helyiségek praktikus tárolási lehetőséget nyújtanak. Telek és kert: A 770 m²-es telek gondozott, díszkertes kialakítású, öntözőrendszerrel. Elhelyezkedés: A ház szilárd burkolatú utcában helyezkedik el, előtte kiszélesített parkoló biztosítja a kényelmes megállást. Buszmegálló mindössze 3 perc sétára található, a környezet természetközeli, mégis jól megközelíthető, rendezett és nyugodt lakókörnyezetet biztosít. Ez az ingatlan ideális választás azok számára, akik tágas, jól élhető otthont keresnek természetközeli környezetben, mégis jó infrastruktúrával. Referencia szám: HZ032812

E-mail küldése a hirdetőnek

Hibás hirdetés bejelentése

Sikeres elküldtük a hiba bejelentést.

Hirdető adatai

Fekete Zsófia Anna
E-mail cím: fekete.zsofia@dh.hu
Telefonszám: +36301483879
Duna House
Hirdetés feladója: Ingatlaniroda
Ingatlaniroda: Duna House
E-mail cím: maglod@dh.hu
Telefonszám: +36303911743

Képek



Térkép


Ajánlott ingatlanok

Családi ház

Eladó ház, Budapest 18. ker.

Keresés azonosító alapján: HI-2493164
  • Budapest XVIII.
  • Alapterület: 213 m²
  • Telekterület: 510 m²
  • Ár: 94 000 000 Ft (248 677 €)
  • Feltöltés dátuma: 2025.10.23.
  •  
Családi ház

Eladó ház, Monor

Keresés azonosító alapján: HI-2466447
  • Monor
  • Alapterület: 63 m²
  • Telekterület: 894 m²
  • Ár: 59 900 000 Ft (158 466 €)
  • Feltöltés dátuma: 2025.08.27.
  •  
Családi ház

Eladó ház, Budapest 18. ker.

Keresés azonosító alapján: HI-2466634
  • Budapest XVIII.
  • Alapterület: 200 m²
  • Telekterület: 507 m²
  • Ár: 139 000 000 Ft (367 725 €)
  • Feltöltés dátuma: 2025.08.27.
  •  
Családi ház

Eladó ház, Budapest 20. ker.

Keresés azonosító alapján: HI-2490055
  • Budapest XX.
  • Alapterület: 140 m²
  • Telekterület: 274 m²
  • Ár: 110 000 000 Ft (291 005 €)
  • Feltöltés dátuma: 2025.10.16.
  •  
Facebook
Blogger
Twitter
Tweets by hasznaltingatla
Flickr