Eladó Ház, Gulács

Ingatlan azonosító: HI-2571697

Szabolcs-Szatmár-Bereg megye - Gulács, Vályogház


36 900 000 Ft (102 786 €)

  • Hirdetés feladója: Ingatlaniroda
  • Pontos cím: Gulács
  • Típus: Eladó
  • Belső irodai azonosító: M328317-5219627
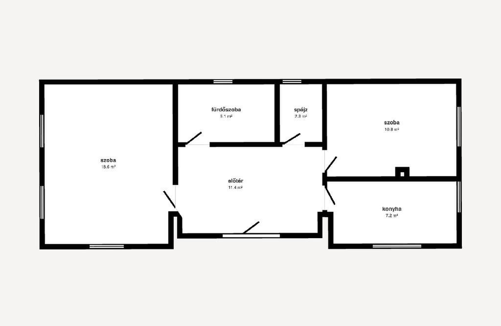
  • Alapterület: 93 m²
  • Telekterület: 2 098 m² ( 583 négyszögöl )
  • Építés éve: 1936
  • Egész szobák száma (12 m² felett): 3 db
  • Félszobák száma (6-12 m² között): 0 db
  • Ingatlan állapota: jó állapotú
  • Komfort: összkomfortos
  • Fűtés: gáz (cirko)
  • Pince: nincs
  • Akadálymentesített: nincs
  • Napelem van?: nincs
  • Légkondicionáló: nincs

Leírás

Eladásra kínálunk egy egyedülálló adottságokkal rendelkező családi házat Fehérgyarmattól 15 percre autóval, amely nemcsak otthonnak kiváló, hanem turisztikai vagy üzleti célokra is remek lehetőség. Az ingatlan több épületből áll, rengeteg extrával. Főépület: - 3 szoba, konyha, fürdőszoba - Fedett tornác - Egy különálló félig nyitott és egy zárt garázs - 2 részből álló 68 m2-es tároló helyiség (vízzel ellátva) Kis épület: - Szoba, konyha, WC + zuhanyzó - Alatta egy 10 m2-es pince Felújítások (2018-2020-ban) és extrák: - elektromos kapu - 15 cm-es szigetelés mindkét tetőn - villany (H tarifával is) és vízvezetékek cseréje - fürdőszobák kialakítása - hideg és melegburkolatok - kondenzációs kazán beépítése - 3 soros radiátorok - elektromos fűtő panelek - cserépkályha - 2 klíma - energiatakrékos villanybojler Kert és extrák: - Gyönyörű, faragott, fából készült kerti bútorokkal berendezett 25 m2-es filagória (villannyal, beépített sparhelttel, átlátszó ponyva elemekkel) - 35 m2 betonozott terület - medence vagy egyéb célokra - 42 m2 betonozott terület - akár szauna, dézsafürdő vagy egyéb kialakítására - 90+ termő szilvafa (évi 2,5-3 tonna terméssel) + birsalma, meggy, cseresznye, körte, őszibarack fa - kiépített csepegtető és öntöző rendszer - fúrott és ásott kút - 2 kinti vízcsap - kinti WC Ez az ingatlan önellátó életmódra is tökéletes, de akár turisztikai fejlesztésre, falusi vendéglátásra, bérbeadásra vagy más vállalkozási célokra is kiváló. További információért hívjon bizalommal akár hétvégén is. Megtekintésre telefonos egyeztetés alapján van lehetőség. Kedvezményes kamatozású lakásvásárlási, felújítási hitelek, OTTHON START valamint CSOK és Babaváró ügyintézés az OTP hátterével irodánkban.

E-mail küldése a hirdetőnek

Hibás hirdetés bejelentése

Sikeres elküldtük a hiba bejelentést.

Hirdető adatai

Luterán Lászlóné
E-mail cím: laszlone.luteran@otpip.hu
Telefonszám: +36706156858
OTPip
Hirdetés feladója: Ingatlaniroda
Ingatlaniroda: OTPip
E-mail cím: nyiregyhaza.bocskai@otpip.hu
Telefonszám: +36706060062

Képek



Térkép


Ajánlott ingatlanok

Vályogház

Eladó Ház, Baktalórántháza

Keresés azonosító alapján: HI-2548689
  • Baktalórántháza
  • Alapterület: 69 m²
  • Telekterület: 1 215 m²
  • Ár: 24 900 000 Ft (69 359 €)
  • Feltöltés dátuma: 2026.03.11.
  •  
Vályogház

Eladó Ház, Gyulaháza

Keresés azonosító alapján: HI-2542390
  • Gyulaháza
  • Alapterület: 90 m²
  • Telekterület: 874 m²
  • Ár: 16 000 000 Ft (44 568 €)
  • Feltöltés dátuma: 2026.02.28.
  •  
Vályogház

Eladó Ház, Tyukod

Keresés azonosító alapján: HI-2569163
  • Tyukod
  • Alapterület: 74 m²
  • Telekterület: 1 335 m²
  • Ár: 16 000 000 Ft (44 568 €)
  • Feltöltés dátuma: 2026.05.09.
  •  
Vályogház

Eladó Ház, Vásárosnamény

Keresés azonosító alapján: HI-2553906
  • Vásárosnamény
  • Alapterület: 74 m²
  • Telekterület: 1 169 m²
  • Ár: 35 000 000 Ft (97 493 €)
  • Feltöltés dátuma: 2026.03.24.
  •  
Facebook
Blogger
Twitter
Tweets by hasznaltingatla
Flickr