Eladó ház, Gyál

Ingatlan azonosító: HI-2485575

Pest megye - Gyál, Családi ház


249 900 000 Ft (655 906 €)

  • Hirdetés feladója: Ingatlaniroda
  • Pontos cím: Gyál
  • Típus: Eladó
  • Belső irodai azonosító: HZ010678-5052095
  • Alapterület: 285 m²
  • Telekterület: 700 m² ( 195 négyszögöl )
  • Építés éve: 2025
  • Egész szobák száma (12 m² felett): 6 db
  • Félszobák száma (6-12 m² között): 0 db
  • Fürdőszobák száma: 4 db
  • Ingatlan állapota: új építésű
  • Fűtés: egyéb
  • Pince: nincs
  • Akadálymentesített: nincs
  • Napelem van?: nincs
  • Légkondicionáló: nincs

Leírás

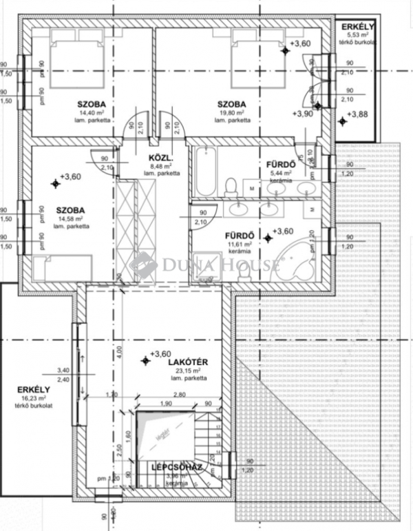
Igazi luxus Gyálon! Gyál egyik kedvelt részén kínálunk megvételre egy modern, tágas otthont, amely ideális választás nagycsaládosoknak és mindazoknak, akik a fényes, nagy tereket részesítik előnyben. Telek mérete: 663 m² Hasznos alapterület: nettó 222,3 m² (bruttó 285,78 m²) Szintek száma: 2 Ez az önálló családi ház egy tökéletes választás Nappali+4 hálószobával rendelkezik, melyből kettő szülői hálóként lett tervezve saját fürdőszobával és gardróbbal, egy a földszinten egy pedig az emeleten. További 2 fürdőszoba is a rendelkezésre áll egy a földszinten a vendégek számára egy pedig az emeleten a család többi részének. Mind kivitelben mind a tervezéskor a legnagyobb kényelemre ügyelt a tulajdonos, hogy egy kivételes otthont tudjon építeni! Műszaki tartalom: 30-as Leier falazat 10 cm grafitos szigeteléssel lábazat 15 cm XPS szigeteléssel Belső falak 10 cm Leier téglából 20 cm kőzetgyapot födémszigetelés Hőszivattyú mely padlófűtéssel adja le a hőt 3 rétegű, energiatakarékos nyílászárók Klíma a nappaliban, előkészítés igény esetén minden szoba Elektromos kapu napelem-előkészítés Beépített kamerarendszer és riasztó A vételár tartalmazza: Melegburkolat 5.000 Ft/m² értékben Hidegburkolat 5.000 Ft/m² értékben Beltéri ajtó kilinccsel: 80.000 Ft/db Kád tartozékaival: 80.000 Ft/db Csaptelepek: 20.000 Ft/db Mosdók: 20.000 Ft/db Plusz vízkiállás: 50.000 Ft/db Villanykiállás: 30.000 Ft/db Kerti csap szerelve: 100.000 Ft/db (A szaniterek és belső ajtók választhatók az aktuális készültségi foktól függően. Extra igények, módosítások előzetes egyeztetéssel kérhetők.) Finanszírozás és átadás: 3%-os hitelre is alkalmas Várható átadás: 2025. december 31. Teljes körű segítség: független hitelszakértő és megbízható ügyvédi háttér Kivitelező: A házat egy megbízható, tapasztalt kivitelező építi, aki számos referenciamunkával rendelkezik a környéken. A korábbi projektek személyesen is megtekinthetők, így az érdeklődők saját szemükkel győződhetnek meg a minőségről. Hívjon a hét bármely napján, ha már látja magát ebben a csodás otthonban! Referencia szám: HZ010678

E-mail küldése a hirdetőnek

Hibás hirdetés bejelentése

Sikeres elküldtük a hiba bejelentést.

Hirdető adatai

Fekete Zsófia Anna
E-mail cím: fekete.zsofia@dh.hu
Telefonszám: +36301483879
Duna House
Hirdetés feladója: Ingatlaniroda
Ingatlaniroda: Duna House
E-mail cím: maglod@dh.hu
Telefonszám: +36303911743

Képek



Térkép


Ajánlott ingatlanok

Családi ház

Eladó ház, Budapest 18. ker.

Keresés azonosító alapján: HI-2499173
  • Budapest XVIII.
  • Alapterület: 91 m²
  • Telekterület: 541 m²
  • Ár: 134 900 000 Ft (354 068 €)
  • Feltöltés dátuma: 2025.11.06.
  •  
Családi ház

Eladó ház, Monor

Keresés azonosító alapján: HI-2466660
  • Monor
  • Alapterület: 138 m²
  • Telekterület: 520 m²
  • Ár: 110 000 000 Ft (288 714 €)
  • Feltöltés dátuma: 2025.08.27.
  •  
Családi ház

Eladó ház, Vecsés

Keresés azonosító alapján: HI-2466383
  • Vecsés
  • Alapterület: 72 m²
  • Telekterület: 360 m²
  • Ár: 49 500 000 Ft (129 921 €)
  • Feltöltés dátuma: 2025.08.27.
  •  
Családi ház

Eladó ház, Budapest 18. ker.

Keresés azonosító alapján: HI-2493164
  • Budapest XVIII.
  • Alapterület: 213 m²
  • Telekterület: 510 m²
  • Ár: 94 000 000 Ft (246 719 €)
  • Feltöltés dátuma: 2025.10.23.
  •  
Facebook
Blogger
Twitter
Tweets by hasznaltingatla
Flickr