Eladó ház Gyál

Ingatlan azonosító: HI-2533198

Pest megye - Gyál, Családi ház


144 900 000 Ft (408 169 €)

  • Hirdetés feladója: Ingatlaniroda
  • Pontos cím: Gyál
  • Típus: Eladó
  • Belső irodai azonosító: U0048801-5140460
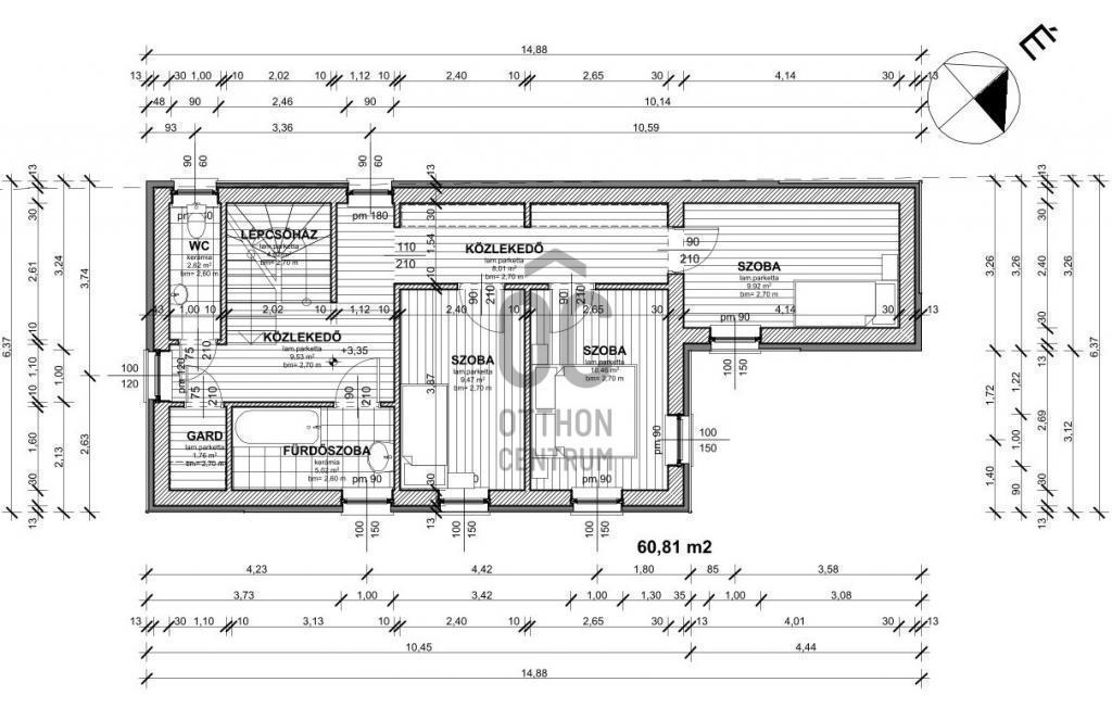
  • Alapterület: 161 m²
  • Telekterület: 449 m² ( 125 négyszögöl )
  • Építés éve: 2025
  • Egész szobák száma (12 m² felett): 5 db
  • Félszobák száma (6-12 m² között): 0 db
  • Fürdőszobák száma: 2 db
  • Ingatlan állapota: új építésű
  • Fűtés: egyéb
  • Pince: nincs
  • Akadálymentesített: nincs
  • Energiatanúsítvány: B
  • Napelem van?: nincs
  • Légkondicionáló: nincs

Leírás

Eladó újépítésű családi ház Gyálon! Alapterület:nettó 161 m2, bruttó 216m2 Szobák száma: 4 szoba + nappali-konyha Oldalhatárra épített, emeletes családi ház rendezett környéken. Műszaki tartalom (részlet) - falazata 30-as Porotherm tégla 15 cm-es szigeteléssel, lábazat 12 cm XPS szigetelés - válaszfalak 10 cm-es tégla - hőszivattyús padlófűtés - 3 rétegű külső nyílászárók, antracit szürke kivitelben -toló-bukó teraszablak -Elektromos redőny, - hideg-, meleg burkolatok, szaniterek belső nyílászárók választhatók - 1 klíma a nappaliban, további klíma kiállás minden helyiségben. -elektromos garázsajtó és kettő elektromos kapu -Riasztó- és kamerarendszer kiállás, -külső homlokzati világítás, - autóbeálló viakolorral burkolva. -Napelem előkészítés - 3x25 amper Az alaprajz tájékoztató jellegű! Egyedi kívánságok figyelembevételével: A ház építkezésének készenléti állapotától függően lehetőség van egyedi igények megvalósítására, AKÁR a már kész részek átalakítására,felár fejében, burkolatok, szaniterek és beltéri ajtók választására, így otthona még inkább az Ön egyéni ízlésére szabható. Teljes műszaki leírás és dokumentáció rendelkezésre áll, kérésre szívesen megküldöm. Jelenlegi készültségi szint: A falazásnál tartanak Az ár kulcsrakész állapotra vonatkozik. Átadás várható ideje: 2026.03.30. osztatlan közös ügyvédi megosztás. Ne hagyja ki ezt a kivételes lehetőséget! Hívjon a hét bármelyik napján, hogy megismerje közelebbről ezt a kiváló, minden igényt kielégítő családi házat! Az energetikai tanúsítvány készítése folyamatban van, amint rendelkezésre áll, úgy azzal a hirdetés frissítésre kerül. További információval örömmel állok rendelkezésére. Az energetikai tanúsítvány készítése folyamatban van, amint rendelkezésre áll, úgy azzal a hirdetés frissítésre kerül. Az energetikai tanúsítvány készítése folyamatban van, amint rendelkezésre áll, úgy azzal a hirdetés frissítésre kerül. Referencia szám: U0048801-HI

E-mail küldése a hirdetőnek

Hibás hirdetés bejelentése

Sikeres elküldtük a hiba bejelentést.

Hirdető adatai

Bittera Viktória
E-mail cím: bittera.viktoria@oc.hu
Telefonszám: +36 70 388 5031
Otthon Centrum
Hirdetés feladója: Ingatlaniroda
Ingatlaniroda: Otthon Centrum
E-mail cím: 21.kerulet@oc.hu
Telefonszám: +36 1 618 4170

Képek



Térkép


Ajánlott ingatlanok

Családi ház

Eladó ház Budapest 17. ker., Rákoskert

Keresés azonosító alapján: HI-2362792
  • Budapest XVII.
  • Alapterület: 150 m²
  • Telekterület: 678 m²
  • Ár: 119 900 000 Ft (337 746 €)
  • Feltöltés dátuma: 2025.01.23.
  •  
Családi ház

Eladó ház Gyál

Keresés azonosító alapján: HI-2533193
  • Gyál
  • Alapterület: 167 m²
  • Telekterület: 737 m²
  • Ár: 124 900 000 Ft (351 831 €)
  • Feltöltés dátuma: 2026.02.05.
  •  
Családi ház

Eladó ház Budapest 19. ker., Kispest

Keresés azonosító alapján: HI-2445790
  • Budapest XIX.
  • Alapterület: 120 m²
  • Telekterület: 375 m²
  • Ár: 89 990 000 Ft (253 493 €)
  • Feltöltés dátuma: 2025.07.16.
  •  
Családi ház

Eladó ház Budapest 18. ker., Bókaytelep

Keresés azonosító alapján: HI-2523546
  • Budapest XVIII.
  • Alapterület: 290 m²
  • Telekterület: 745 m²
  • Ár: 270 000 000 Ft (760 563 €)
  • Feltöltés dátuma: 2026.01.16.
  •  
Facebook
Blogger
Twitter
Tweets by hasznaltingatla
Flickr