Eladó Ház, Győr

Ingatlan azonosító: HI-2569865

Győr-Moson-Sopron megye - Győr, Családi ház


46 900 000 Ft (130 278 €)

  • Hirdetés feladója: Ingatlaniroda
  • Pontos cím: Győr Győzelem utca
  • Típus: Eladó
  • Belső irodai azonosító: M322617-5225399
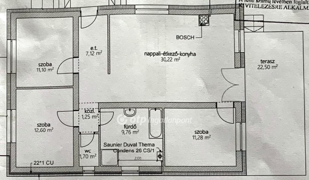
  • Alapterület: 110 m²
  • Telekterület: 5 442 m² ( 1 513 négyszögöl )
  • Építés éve: 1927
  • Egész szobák száma (12 m² felett): 4 db
  • Félszobák száma (6-12 m² között): 0 db
  • Fürdőszobák száma: 1 db
  • Ingatlan állapota: felújítandó
  • Komfort: félkomfortos
  • Fűtés: egyéb
  • Pince: nincs
  • Akadálymentesített: nincs
  • Napelem van?: nincs
  • Légkondicionáló: nincs

Leírás

Eladó Győr-Ménfőcsanakon egy 1927-ben épült, felújítandó családi ház. Az ingatlan 110 m2-s, tégla építésű, 5442 m2 telek tartozik hozzá, 30 %-a beépíthető, és 22 m széles az utcafront. Az ingatlan rendkívül tágas területének köszönhetően elegendő hely áll rendelkezésre a kertészkedéshez, hobbi gazdálkodáshoz vagy csak egyszerűen a természet közelségének élvezetéhez. Kiváló lehetőség lehet akár befektetésnek, vagy saját célú felhasználásra is. A tető és az ereszcsatorna 2017-ben teljesen megújult. A telken a vezetékes víz, a csatorna és a villany bevezetésre került, a gáz a telek előtt található. Két villanyóra van. Forgalomtól mentes csendes utcában található, közel minden fontos intézményhez. Amennyiben az ingatlan felkeltette érdeklődését, kérem keressen bizalommal! Referenciaszám: M322617 Az energetikai tanúsítvány készítése folyamatban van, amint rendelkezésre áll, úgy azzal a hirdetés frissítésre kerül.

E-mail küldése a hirdetőnek

Hibás hirdetés bejelentése

Sikeres elküldtük a hiba bejelentést.

Hirdető adatai

Takács-Horváth Nóra
E-mail cím: nora.takacs-horvath@otpip.hu
Telefonszám: +36305477589
OTPip
Hirdetés feladója: Ingatlaniroda
Ingatlaniroda: OTPip
E-mail cím: gyor.szentimre@otpip.hu
Telefonszám: +36702500391

Képek



Térkép


Ajánlott ingatlanok

Családi ház

Eladó Ház, Jánossomorja

Keresés azonosító alapján: HI-2569867
  • Rózsa utca
  • Alapterület: 102 m²
  • Telekterület: 607 m²
  • Ár: 82 500 000 Ft (229 167 €)
  • Feltöltés dátuma: 2026.05.13.
  • klímás
Családi ház

Eladó Ház, Győr

Keresés azonosító alapján: HI-2569876
  • Győr Kultúrház utca
  • Alapterület: 160 m²
  • Telekterület: 693 m²
  • Ár: 149 990 000 Ft (416 639 €)
  • Feltöltés dátuma: 2026.05.13.
  • klímás
Családi ház

Eladó Ház, Kenyeri

Keresés azonosító alapján: HI-2568090
  • Kenyeri Táncsics utca
  • Alapterület: 50 m²
  • Telekterület: 1 025 m²
  • Ár: 12 800 000 Ft (35 556 €)
  • Feltöltés dátuma: 2026.05.06.
  •  
Családi ház

Eladó Ház, Győr

Keresés azonosító alapján: HI-2569875
  • Győr Szent László út
  • Alapterület: 124 m²
  • Telekterület: 1 243 m²
  • Ár: 85 000 000 Ft (236 111 €)
  • Feltöltés dátuma: 2026.05.13.
  •  
Facebook
Blogger
Twitter
Tweets by hasznaltingatla
Flickr