Eladó Ház, Hatvan

Ingatlan azonosító: HI-2489095

Heves megye - Hatvan, Családi ház


90 000 000 Ft (236 220 €)

  • Hirdetés feladója: Ingatlaniroda
  • Pontos cím: Hatvan
  • Típus: Eladó
  • Belső irodai azonosító: M314913-5060749
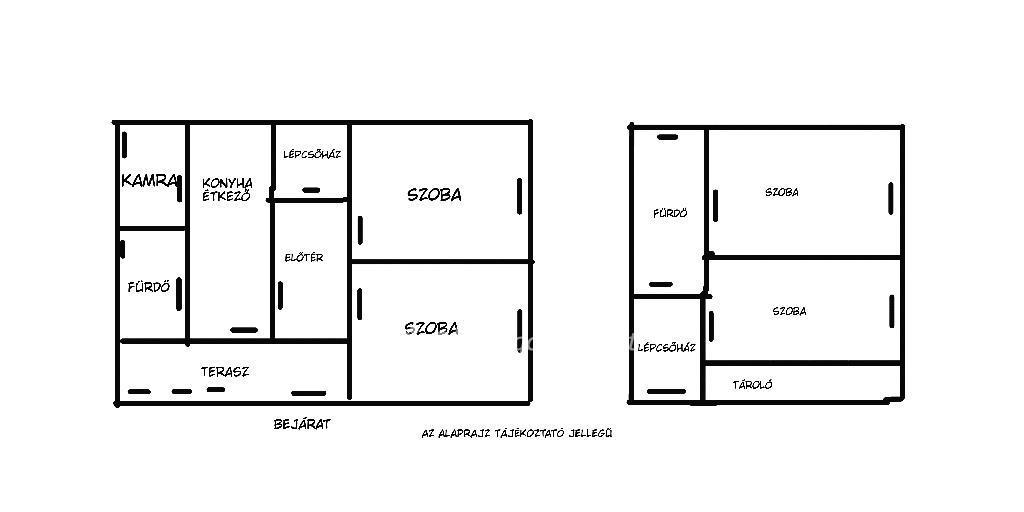
  • Alapterület: 140 m²
  • Telekterület: 502 m² ( 140 négyszögöl )
  • Építés éve: 1980
  • Egész szobák száma (12 m² felett): 4 db
  • Félszobák száma (6-12 m² között): 0 db
  • Ingatlan állapota: jó állapotú
  • Komfort: összkomfortos
  • Fűtés: egyéb kazán
  • Pince: nincs
  • Akadálymentesített: nincs
  • Napelem van?: nincs
  • Légkondicionáló: nincs

Leírás

Heves Vármegye, Hatvan kellemes, jó környékén eladó egy tágas, 140 m2-es, jó elosztású, összkomfortos családi ház. Az ingatlan gáz és vegyes tüzelésű kazánnal felszerelt, szép állapotban található. Tetőtér beépítés elkezdődött, befejezése az új tulajdonosra vár, így saját igényei szerint alakíthatja ki. Az otthont gondozott, rendezett kert öleli körbe, ideális helyszínt biztosítva pihenéshez vagy családi programokhoz. Ha egy jól megközelíthető, nyugodt környéken keres új otthont Hatvanban, ne hagyja ki ezt a remek lehetőséget! További információért és megtekintésért hívjon bátran! Teljes körű ügyintézéssel állunk az eladók és a vevők rendelkezésére! A kínálatunkból választott ingatlan finanszírozásához minősített fogyasztóbarát, piaci és kedvezményes hitel- és lízingkonstrukciókat kínálunk (lakásvásárlási hitel, szabad felhasználású hitel, babaváró hitel, CSOK Plusz intézés, Otthonfelújítási Támogatás, egyéb felújítási hitelek). Az adásvételi szerződés megkötéséhez igény szerint megbízható ügyvédi közreműködést biztosítunk, és segítséget nyújtunk az adásvételhez kapcsolódó egyéb ügyek intézéséhez. Amennyiben felkeltettem érdeklődését, hívjon bizalommal!

E-mail küldése a hirdetőnek

Hibás hirdetés bejelentése

Sikeres elküldtük a hiba bejelentést.

Hirdető adatai

Gulyás Gáborné
E-mail cím: gaborne.gulyas@otpip.hu
Telefonszám: +36-20-426-0142
OTPip
Hirdetés feladója: Ingatlaniroda
Ingatlaniroda: OTPip
E-mail cím: eger@otpip.hu
Telefonszám: +36703772977

Képek



Térkép


Ajánlott ingatlanok

Családi ház

Eladó Ház, Gyöngyös

Keresés azonosító alapján: HI-2405822
  • Gyöngyös
  • Alapterület: 80 m²
  • Telekterület: 809 m²
  • Ár: 43 800 000 Ft (114 961 €)
  • Feltöltés dátuma: 2025.04.24.
  •  
Családi ház

Eladó Ház, Gyöngyöshalász

Keresés azonosító alapján: HI-2435421
  • Gyöngyöshalász
  • Alapterület: 99 m²
  • Telekterület: 800 m²
  • Ár: 61 000 000 Ft (160 105 €)
  • Feltöltés dátuma: 2025.06.26.
  •  
Családi ház

Eladó Ház, Gyöngyöstarján

Keresés azonosító alapján: HI-2317248
  • Gyöngyöstarján
  • Alapterület: 97 m²
  • Telekterület: 803 m²
  • Ár: 23 900 000 Ft (62 730 €)
  • Feltöltés dátuma: 2024.10.22.
  •  
Családi ház

Eladó Ház, Galgahévíz

Keresés azonosító alapján: HI-2501453
  • Galgahévíz
  • Alapterület: 108 m²
  • Telekterület: 416 m²
  • Ár: 39 900 000 Ft (104 724 €)
  • Feltöltés dátuma: 2025.11.13.
  •  
Facebook
Blogger
Twitter
Tweets by hasznaltingatla
Flickr