Eladó Ház, Heves

Ingatlan azonosító: HI-2499392

Heves megye - Heves, Vályogház


55 900 000 Ft (148 276 €)

  • Hirdetés feladója: Ingatlaniroda
  • Pontos cím: Heves
  • Típus: Eladó
  • Belső irodai azonosító: M315794-5080013
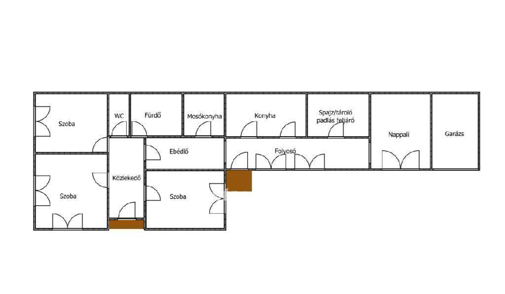
  • Alapterület: 160 m²
  • Telekterület: 1 315 m² ( 366 négyszögöl )
  • Építés éve: 1970
  • Egész szobák száma (12 m² felett): 4 db
  • Félszobák száma (6-12 m² között): 0 db
  • Ingatlan állapota: jó állapotú
  • Komfort: összkomfortos
  • Fűtés: gáz (cirko)
  • Pince: nincs
  • Akadálymentesített: nincs
  • Napelem van?: nincs
  • Légkondicionáló: nincs

Leírás

Kizárólag az OTP Ingatlanpont kínálatában! Heves város központjában eladásra kínálunk egy 160 m2-es, kiváló elosztású, jó állapotú családi házat, amely egy 1381 m2-es, gondozott telken helyezkedik el és hitelmentes, jogilag rendezett tulajdoni viszonyokkal rendelkezik. Az ingatlan elhelyezkedésének köszönhetően kiváló infrastruktúrával bír: a közelben található hivatalok, bankok, posta, óvoda, élelmiszerüzletek és közműszolgáltatók, valamint parkok és játszóterek biztosítják a kellemes, családbarát környezetet. A masszív vályogfalakra épült, stabil alapokon nyugvó ház 1975-ben épült, és az évek során több felújításon és korszerűsítésen esett át. A padlás és hátsó fal szigetelése, a hibamentes tetőszerkezet, valamint a műanyag nyílászárók hosszú távon biztosítják a komfortos és energiahatékony lakhatást. A fűtést három éves kondenzációs gázkazán és vegyes tüzelésű kazán szolgálja, melyhez külön tüzelőtároló tartozik, továbbá inverteres klímaberendezések gondoskodnak a megfelelő hőmérsékletről az év minden időszakában. A tágas belső térben három szoba, nappali, gardrób, mosókonyha, éléskamra, beépített tárolószekrények és pince is helyet kapott, így a helyiségek elosztása mind funkcionálisan, mind esztétikailag átgondolt. A beépített, gépesített konyha modern, praktikus és a mindennapokban is kényelmes használatot biztosít. A külső tér rendkívül igényesen kialakított: térkővel burkolt belső udvar, díszkaviccsal terített előkert, valamint nagy, parkosított hátsó kert biztosítja a kellemes, otthonos környezetet. A garázs, a fűthető melléképület (műhely) és a fedett, nyitott kerti helyiség további kényelmet és lehetőséget nyújt a házhoz kapcsolódó tevékenységekhez. A telken háromfázisú villanyhálózat, fúrt kút, több kültéri vízvételi lehetőség (belső és hátsó udvaron vízcsap), valamint zárt külső tároló és belső udvari vízelvezetés is rendelkezésre áll. A riasztórendszer biztonságot, a rendezett udvar és a masszív szerkezeti megoldások pedig hosszú távú értékállóságot garantálnak. Ez az ingatlan ideális választás mindazok számára, akik Heves központjában keresnek tágas, jól karbantartott, azonnal költözhető családi házat, amelyben a városi kényelem és a kertvárosi nyugalom tökéletes harmóniában van jelen. Irodánk teljes körű szolgáltatást nyújt ügyfeleinek: ?? OTP Bank hátterével díjmentes, személyre szabott hitel- és támogatási tanácsadást biztosítunk (CSOK, Falusi CSOK, Babaváró, 3% Otthon Start lakáshitel). ?? Energetikai tanúsítvány, értékbecslés és jogi háttér biztosítása. ?? Teljes körű ügyintézés az adásvétel teljes folyamatában. Amennyiben az ingatlan felkeltette érdeklődését, további információkért és megtekintéssel kapcsolatban forduljon hozzánk bizalommal. Érdeklődni: Ádám Krisztina 06305135487

E-mail küldése a hirdetőnek

Hibás hirdetés bejelentése

Sikeres elküldtük a hiba bejelentést.

Hirdető adatai

Ádám Krisztina
E-mail cím: krisztina.adam@otpip.hu
Telefonszám: +36-30-513-5487
OTPip
Hirdetés feladója: Ingatlaniroda
Ingatlaniroda: OTPip
E-mail cím: jaszbereny@otpip.hu
Telefonszám: +36-70-393-4944

Képek



Térkép


Ajánlott ingatlanok

Vályogház

Eladó Ház, Jászszentandrás

Keresés azonosító alapján: HI-2513341
  • Jászszentandrás
  • Alapterület: 75 m²
  • Telekterület: 1 072 m²
  • Ár: 24 250 000 Ft (64 324 €)
  • Feltöltés dátuma: 2025.12.17.
  •  
Vályogház

Eladó Ház, Jánoshida

Keresés azonosító alapján: HI-2457968
  • Jánoshida
  • Alapterület: 46 m²
  • Telekterület: 783 m²
  • Ár: 13 500 000 Ft (35 809 €)
  • Feltöltés dátuma: 2025.08.05.
  •  
Vályogház

Eladó Ház, Heves

Keresés azonosító alapján: HI-2516729
  • Heves
  • Alapterület: 61 m²
  • Telekterület: 1 132 m²
  • Ár: 16 500 000 Ft (43 767 €)
  • Feltöltés dátuma: 2026.01.04.
  •  
Vályogház

Eladó Ház, Pusztamonostor

Keresés azonosító alapján: HI-2447372
  • Pusztamonostor
  • Alapterület: 56 m²
  • Telekterület: 1 073 m²
  • Ár: 16 800 000 Ft (44 562 €)
  • Feltöltés dátuma: 2025.07.21.
  •  
Facebook
Blogger
Twitter
Tweets by hasznaltingatla
Flickr