Eladó Ház, Ináncs

Ingatlan azonosító: HI-2491559

Borsod-Abaúj-Zemplén megye - Ináncs, Családi ház


19 500 000 Ft (51 316 €)

  • Hirdetés feladója: Ingatlaniroda
  • Pontos cím: Ináncs
  • Típus: Eladó
  • Belső irodai azonosító: M310432-5066635
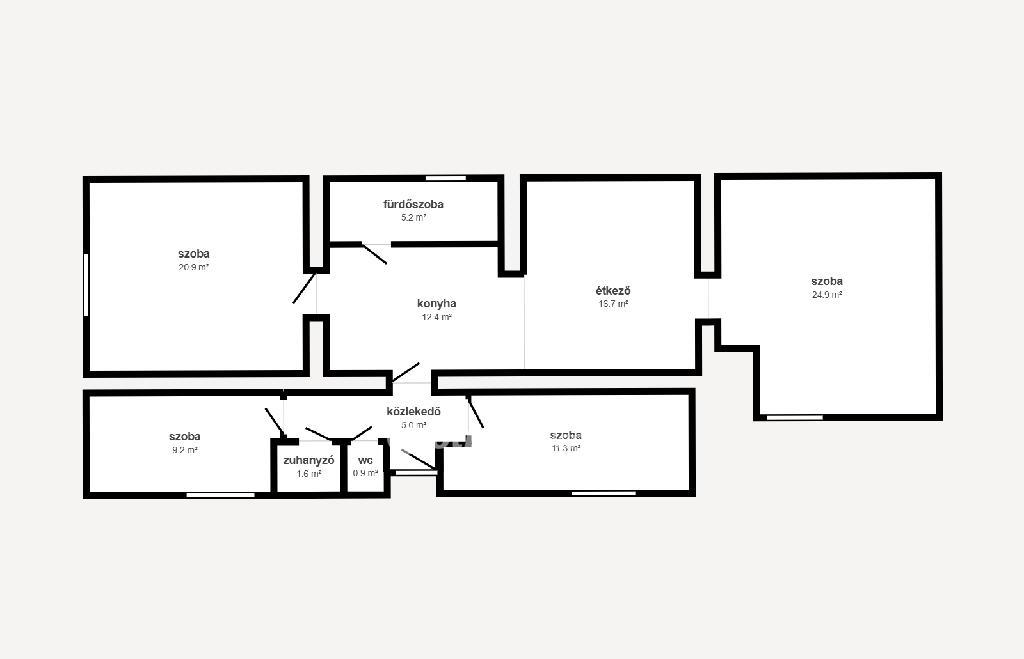
  • Alapterület: 107 m²
  • Telekterület: 1 463 m² ( 407 négyszögöl )
  • Építés éve: 1965
  • Egész szobák száma (12 m² felett): 3 db
  • Félszobák száma (6-12 m² között): 2 db
  • Ingatlan állapota: közepes állapotú
  • Komfort: duplakomfortos
  • Fűtés: gáz (cirko)
  • Pince: nincs
  • Akadálymentesített: nincs
  • Napelem van?: nincs
  • Légkondicionáló: nincs

Leírás

Eladó Ináncs községben 107m2 családi ház, 1463 m2 telken. Az ingatlan tehermentes, belülről fel lett újitva 10 évvel ezelőtt. Térképen vannak hiányosságok amely fennmaradási engedéllyel rendbe hozható. Bölcsöde, óvoda, általános iskola, 3 élelmiszerbolt, posta, orvosi rendelő, fogorvosi rendelő, vasútállomás, buszmegálló, öregek napközije található a településen. A 3-as számú fő út 2 km-re. M30 autópálya felhajtó 8-km-re. Munkába bejárás Miskolc és Kassa felé vonattal is elérhető. OTP Banki hátterünknek köszönhetően finanszírozási igényekben (pl. Otthon Start Hitelprogram , Babaváró, Falusi CSOK, CSOK Plusz, Lakáshitel, Személyi kölcsön stb.), illetve biztosítások tekintetében is díjmentesen, soron kívüli ügyintézéssel segítem ügyfeleim! Érdeklődés esetén: M310432 referenciaszámra hivatkozzon. Jöjjön nézzük meg együtt! Referencia szám: M310432

E-mail küldése a hirdetőnek

Hibás hirdetés bejelentése

Sikeres elküldtük a hiba bejelentést.

Hirdető adatai

Piskóti Tibor Lajos
E-mail cím: tibor.lajos.piskoti@otpip.hu
Telefonszám: +36-70-322-2946
OTPip
Hirdetés feladója: Ingatlaniroda
Ingatlaniroda: OTPip
E-mail cím: miskolc.szemere@otpip.hu
Telefonszám: +36-70-606-0062

Képek



Térkép


Ajánlott ingatlanok

Családi ház

Eladó Ház, Mezőkövesd

Keresés azonosító alapján: HI-2511717
  • Mezőkövesd Egri út
  • Alapterület: 83 m²
  • Telekterület: 302 m²
  • Ár: 39 900 000 Ft (105 000 €)
  • Feltöltés dátuma: 2025.12.11.
  •  
Családi ház

Eladó Ház, Onga

Keresés azonosító alapján: HI-2377535
  • Onga Petrovics utca
  • Alapterület: 160 m²
  • Telekterület: 1 785 m²
  • Ár: 92 900 000 Ft (244 474 €)
  • Feltöltés dátuma: 2025.02.21.
  •  
Családi ház

Eladó Ház, Sajókeresztúr

Keresés azonosító alapján: HI-2491548
  • Sajókeresztúr Rákóczi utca
  • Alapterület: 65 m²
  • Telekterület: 1 170 m²
  • Ár: 14 900 000 Ft (39 211 €)
  • Feltöltés dátuma: 2025.10.21.
  •  
Családi ház

Eladó Ház, Mezőkövesd

Keresés azonosító alapján: HI-2520629
  • Mezőkövesd Zsófia utca
  • Alapterület: 82 m²
  • Telekterület: 651 m²
  • Ár: 32 900 000 Ft (86 579 €)
  • Feltöltés dátuma: 2026.01.13.
  •  
Facebook
Blogger
Twitter
Tweets by hasznaltingatla
Flickr