Eladó ház, Isaszeg

Ingatlan azonosító: HI-2507516

Pest megye - Isaszeg, Családi ház


100 900 000 Ft (264 829 €)

  • Hirdetés feladója: Ingatlaniroda
  • Pontos cím: Isaszeg
  • Típus: Eladó
  • Belső irodai azonosító: HZ042513-5097017
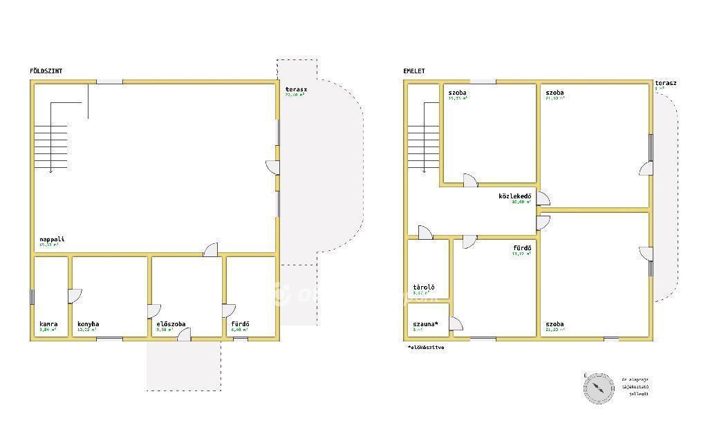
  • Alapterület: 161 m²
  • Telekterület: 1 035 m² ( 288 négyszögöl )
  • Építés éve: 1957
  • Egész szobák száma (12 m² felett): 7 db
  • Félszobák száma (6-12 m² között): 0 db
  • Fürdőszobák száma: 2 db
  • Ingatlan állapota: jó állapotú
  • Fűtés: gázkazán
  • Pince: nincs
  • Akadálymentesített: nincs
  • Napelem van?: nincs
  • Légkondicionáló: nincs

Leírás

OTTHON START PROGRAM / CSOK PLUSZ KÉSZEN! Isaszeg szívében egy igazi nagycsaládos álomotthon vár pont rád. Ha olyan házat keresel, ahol végre mindenkinek jut saját tér, ahol a gyerekeknek külön szobájuk lehet, te pedig nyugodtan dolgozhatsz egy csendes dolgozószobában, akkor jó helyen jársz. Ez a 161 nm-es, 6+1 szobás, rusztikus hangulatú családi ház tökéletes választás lehet akár nagycsaládosoknak, akár többgenerációs együttéléshez is. A telek 1035 nm, teljes közművel, barátságos, védett kerttel, kétállásos garázzsal, és mindennel, ami egy valódi, szerethető otthonhoz kell. Mitől különleges ez a ház? Egyedi rusztikus hangulat, tágas terek Jól átgondolt elrendezés minden családtagnak saját zuga lehet Rengeteg szoba és külön helyiség: nagyméretű nappali hangulatos konyha 6+1 szoba 2 fürdőszoba 2 külön WC háztartási helyiség dolgozószoba Folyamatos felújítások az elmúlt években: teljes elektromos hálózat cseréje (3 fázis!) új, gyönyörű fa lépcső új burkolatok tető felújítása tetőtér beépítése (85%-os készültség) Fűtés több opcióval: gázkazán vegyestüzelésű kazán hűtő-fűtő klíma Ezzel a meleg biztonságban van mindig van alternatíva. A terasz és a kert: igazi vidéki nyugalomsziget A kíváncsi szemektől elzárt nagy fedett terasz kemencével és sparhelttel maga a boldog családi élet központja. A 1035 nm-es telken: melléképület kétállásos garázzsal tárolók játszótér veteményes tyúkól Ez az a hely, ahol reggel madárcsicsergésre ébredsz, délután a teraszon kávézol, este pedig a kemence melege adja a hangulatot. Elhelyezkedés: minden karnyújtásra Iskola, óvoda, bölcsőde, könyvtár, sport csarnok bevásárlási lehetőség, tömegközlekedés 10-15 perc sétán belül. Városközeli idill, mégis csend és nyugalom. Amennyiben az ingatlan felkeltette az érdeklődését, keressen bizalommal a hét bármely napján! Jöjjön el, nézze meg, szeressen bele, legyen Ön a a következő lakója! Érd: Kulcsár Imola, tel: +36/20/240 4146, e-mail: kulcsar.imola@dh.hu Az ajánlatom megfelelne az elvárásainak, de nem rendelkezik a kiválasztott ingatlan teljes vételárával!? Hitelre történő vásárlás esetén Bankfüggetlen Credipass Pénzügyi Szakértőnk kötelezettség nélkül megtalálja az Ön számára legkedvezőbb megoldást! A tanácsadás ingyenes! Referencia szám: HZ042513

E-mail küldése a hirdetőnek

Hibás hirdetés bejelentése

Sikeres elküldtük a hiba bejelentést.

Hirdető adatai

Tivadarné Kulcsár Imola
E-mail cím: kulcsar.imola@dh.hu
Telefonszám: +36202404146
Duna House
Hirdetés feladója: Ingatlaniroda
Ingatlaniroda: Duna House
E-mail cím: gyomro@dh.hu
Telefonszám: +3629263520

Képek



Térkép


Ajánlott ingatlanok

Családi ház

Eladó ház, Mogyoród

Keresés azonosító alapján: HI-2350527
  • Mogyoród
  • Alapterület: 240 m²
  • Telekterület: 1 640 m²
  • Ár: 220 000 000 Ft (577 428 €)
  • Feltöltés dátuma: 2025.01.02.
  •  
Családi ház

Eladó ház, Gödöllő

Keresés azonosító alapján: HI-2453509
  • Gödöllő
  • Alapterület: 178 m²
  • Telekterület: 1 624 m²
  • Ár: 129 990 000 Ft (341 181 €)
  • Feltöltés dátuma: 2025.08.02.
  •  
Családi ház

Eladó ház, Kóka

Keresés azonosító alapján: HI-2488723
  • Kóka
  • Alapterület: 147 m²
  • Telekterület: 1 486 m²
  • Ár: 99 400 000 Ft (260 892 €)
  • Feltöltés dátuma: 2025.10.11.
  •  
Családi ház

Eladó ház, Üllő

Keresés azonosító alapján: HI-2506326
  • Üllő
  • Alapterület: 99 m²
  • Telekterület: 2 528 m²
  • Ár: 79 900 000 Ft (209 711 €)
  • Feltöltés dátuma: 2025.11.26.
  •  
Facebook
Blogger
Twitter
Tweets by hasznaltingatla
Flickr