Eladó Ház, Iváncsa

Ingatlan azonosító: HI-2519400

Fejér megye - Iváncsa, Családi ház


93 500 000 Ft (242 857 €)

  • Hirdetés feladója: Ingatlaniroda
  • Pontos cím: Iváncsa
  • Típus: Eladó
  • Belső irodai azonosító: M319797-5117855
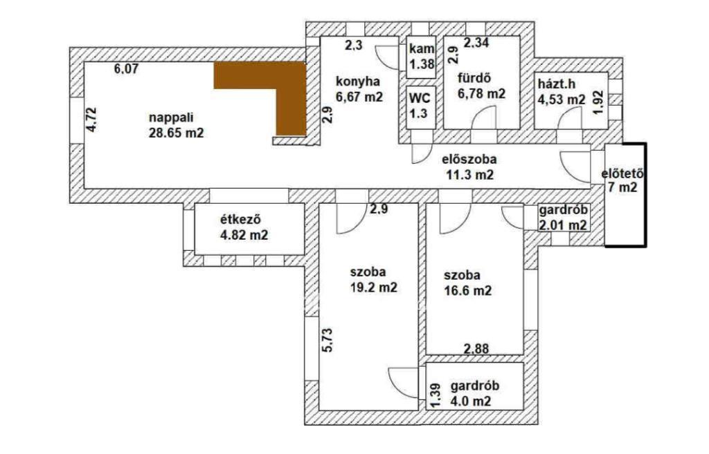
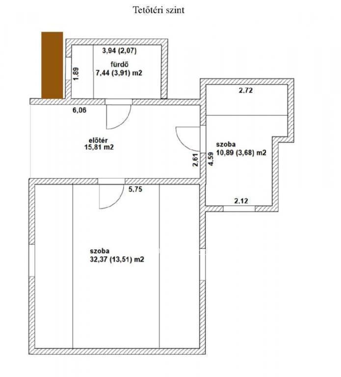
  • Alapterület: 174 m²
  • Telekterület: 2 106 m² ( 586 négyszögöl )
  • Építés éve: 2002
  • Egész szobák száma (12 m² felett): 4 db
  • Félszobák száma (6-12 m² között): 0 db
  • Ingatlan állapota: jó állapotú
  • Komfort: összkomfortos
  • Fűtés: gáz (cirko)
  • Pince: nincs
  • Akadálymentesített: nincs
  • Napelem van?: nincs
  • Légkondicionáló: nincs

Leírás

Fejér megyében, Iváncsán, eladó egy kiváló adottságú, energiatakarékos családi ház! 173 m?-es, 4 szobás, napelemes családi ház eladó 2106 m?-es, hatalmas telken, jól megközelíthető, frekventált elhelyezkedéssel. Az ingatlan 2007-ben épült, a tetőtér 2012-ben került beépítésre, praktikus és tágas elrendezéssel. A ház alacsony fenntartási költségű: napelemrendszer, pellet kazán, 2 db hűtő-fűtő klíma és villanybojler gondoskodik az energiatakarékos működésről. A földszinten nappali?étkező, konyha spejzzel, 2 külön nyíló hálószoba saját gardróbbal, fürdőszoba, külön WC és háztartási helyiség található. A tetőtérben további 2 szoba, előtér, tároló és egy második fürdőszoba került kialakításra. A ház alatt szigetelt garázs, gépészeti helyiség és nagy méretű tároló áll rendelkezésre. Kiváló infrastruktúra: buszmegálló a közelben, vasútállomás 1,5 km-re, óvoda, iskola, orvosi rendelő, posta és boltok pár percen belül elérhetők. Ideális választás nagyobb családnak vagy nyugodt, energiatudatos otthont keresőknek. 93500000 Ft Érd.: Lepsényi Kornél +3670/8840188 Referencia szám: M319797

E-mail küldése a hirdetőnek

Hibás hirdetés bejelentése

Sikeres elküldtük a hiba bejelentést.

Hirdető adatai

Lepsényi Kornél
E-mail cím: lepsenyi.kornel@otpip.hu
Telefonszám: +36-70-884-0188
OTPip
Hirdetés feladója: Ingatlaniroda
Ingatlaniroda: OTPip
E-mail cím: velence@otpip.hu
Telefonszám: +36-70-457-6920

Képek



Térkép


Ajánlott ingatlanok

Családi ház

Eladó Ház, Pusztaszabolcs.

Keresés azonosító alapján: HI-2517863
  • Pusztaszabolcs
  • Alapterület: 92 m²
  • Telekterület: 530 m²
  • Ár: 74 900 000 Ft (194 545 €)
  • Feltöltés dátuma: 2026.01.06.
  •  
Családi ház

Eladó Ház, Kőszárhegy

Keresés azonosító alapján: HI-2519886
  • Kőszárhegy
  • Alapterület: 166 m²
  • Telekterület: 880 m²
  • Ár: 134 990 000 Ft (350 623 €)
  • Feltöltés dátuma: 2026.01.10.
  •  
Családi ház

Eladó Ház, Pusztaszabolcs

Keresés azonosító alapján: HI-2517798
  • Pusztaszabolcs
  • Alapterület: 74 m²
  • Telekterület: 1 426 m²
  • Ár: 39 900 000 Ft (103 636 €)
  • Feltöltés dátuma: 2026.01.06.
  •  
Családi ház

Eladó Ház, Pusztaszabolcs.

Keresés azonosító alapján: HI-2517795
  • Pusztaszabolcs
  • Alapterület: 95 m²
  • Telekterület: 450 m²
  • Ár: 89 900 000 Ft (233 506 €)
  • Feltöltés dátuma: 2026.01.06.
  • klímás
Facebook
Blogger
Twitter
Tweets by hasznaltingatla
Flickr