Eladó Ház, Kaposmérő

Ingatlan azonosító: HI-2528098

Somogy megye - Kaposmérő, Családi ház


35 500 000 Ft (98 886 €)

  • Hirdetés feladója: Ingatlaniroda
  • Pontos cím: Kaposmérő
  • Típus: Eladó
  • Belső irodai azonosító: M321527-5136148
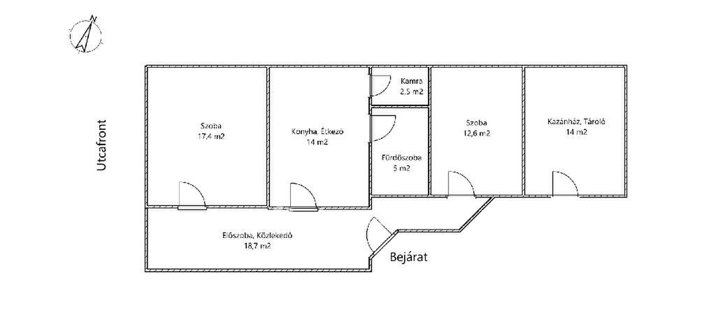
  • Alapterület: 70 m²
  • Telekterület: 516 m² ( 143 négyszögöl )
  • Építés éve: 1978
  • Egész szobák száma (12 m² felett): 2 db
  • Félszobák száma (6-12 m² között): 0 db
  • Ingatlan állapota: közepes állapotú
  • Komfort: komfortos
  • Fűtés: egyéb kazán
  • Pince: nincs
  • Akadálymentesített: nincs
  • Napelem van?: nincs
  • Légkondicionáló: nincs

Leírás

Kaposmérőn a főúthoz közel, mégis csendes utcában várja új lakóit ez a kedves házikó! A 70 m2-es ingatlan nagy része felújításra került. 2 nagy szoba, sarokkádas fürdőszoba wc-vel, konyha, kamra, előszoba szolgálja az itt élők kényelmét. A két szoba laminált parkettával, míg az épület többi része járólappal burkolt. A víz- és villanyvezeték felújításra került, melynek záró akkordja egy teljesen új villanyóra felszerelése volt! A kinti zord időt egy vegyes tüzelésű kazán melege teszi komfortossá, mely radiátorokon keresztül érkezik a helyiségekbe. A vegyes falazat ellenére a ház egyáltalán nem vizesedik. Nyílászárói redőnyösek. A telek 516 m2. Nyáron szép pázsit díszíti az udvart, melyen egy kocsibeálló kapott helyet. Ajánljuk mindazoknak, akik szeretnének a somogyi fővároshoz közel, mégis nyugodt, csendes helyen élni. A településen megtalálható bölcsőde, óvoda, általános iskola, orvosi ellátás, többféle vegyesbolt, pékség, húsbolt. Kaposvártól mindössze 5 kilométerre várja új tulajdonosát ez a jó állapotú ingatlan! Az ingatlan alkalmas a 3%-os Otthon Start Programra! Ennek teljes körű hitelügyintézését is lebonyolítjuk! Amennyiben felkeltette érdeklődését, kérem hívjon bizalommal! Ref. szám: M321527 Kuti Dávid Az energetikai tanúsítvány készítése folyamatban van, amint rendelkezésre áll, úgy azzal a hirdetés frissítésre kerül.

E-mail küldése a hirdetőnek

Hibás hirdetés bejelentése

Sikeres elküldtük a hiba bejelentést.

Hirdető adatai

Kuti Dávid
E-mail cím: david.kuti@otpip.hu
Telefonszám: +36207751127
OTPip
Hirdetés feladója: Ingatlaniroda
Ingatlaniroda: OTPip
E-mail cím: siofok.sio@otpip.hu
Telefonszám: +36703163864

Képek



Térkép


Ajánlott ingatlanok

Családi ház

Eladó Ház, Ádánd

Keresés azonosító alapján: HI-2533745
  • Ádánd
  • Alapterület: 135 m²
  • Telekterület: 1 053 m²
  • Ár: 49 999 000 Ft (139 273 €)
  • Feltöltés dátuma: 2026.02.06.
  •  
Családi ház

Eladó Ház, Balatonlelle

Keresés azonosító alapján: HI-2524638
  • Balatonlelle
  • Alapterület: 213 m²
  • Telekterület: 964 m²
  • Ár: 150 000 000 Ft (417 827 €)
  • Feltöltés dátuma: 2026.01.21.
  •  
Családi ház

Eladó Ház, Balatonendréd

Keresés azonosító alapján: HI-2524639
  • Balatonendréd
  • Alapterület: 104 m²
  • Telekterület: 2 576 m²
  • Ár: 69 000 000 Ft (192 201 €)
  • Feltöltés dátuma: 2026.01.21.
  •  
Családi ház

Eladó Ház, Karád

Keresés azonosító alapján: HI-2527472
  • Karád
  • Alapterület: 72 m²
  • Telekterület: 1 218 m²
  • Ár: 25 000 000 Ft (69 638 €)
  • Feltöltés dátuma: 2026.01.29.
  •  
Facebook
Blogger
Twitter
Tweets by hasznaltingatla
Flickr