Eladó Ház, Kardos

Ingatlan azonosító: HI-2554951

Békés megye - Kardos, Családi ház


8 900 000 Ft (24 791 €)

  • Hirdetés feladója: Ingatlaniroda
  • Pontos cím: Kardos
  • Típus: Eladó
  • Belső irodai azonosító: M323047-5185606
  • Alapterület: 133 m²
  • Telekterület: 5 683 m² ( 1 580 négyszögöl )
  • Építés éve: 1960
  • Egész szobák száma (12 m² felett): 3 db
  • Félszobák száma (6-12 m² között): 0 db
  • Ingatlan állapota: közepes állapotú
  • Komfort: összkomfortos
  • Fűtés: egyéb
  • Pince: nincs
  • Akadálymentesített: nincs
  • Napelem van?: nincs
  • Légkondicionáló: nincs

Leírás

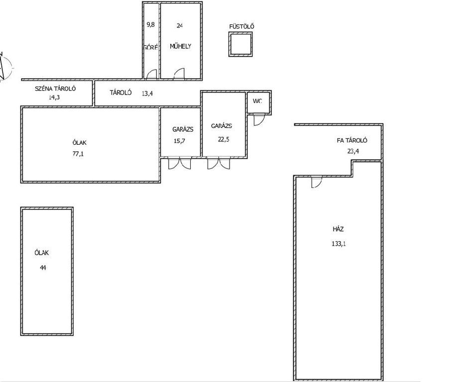
Eladásra kínálunk Békés vármegyében Kardos község külterületén egy családi házat szántóval. Maga a nyugalom szigete, körben szántóföld, amerre a szem ellát, őzek, nyulak szaladgálnak. A földhivatali nyilvántartás szerint kivett lakóház, udvar, gazdasági épület 2003 m2-en, hozzá a szántó 3680 m2-en helyezkedik el. A szántó aranykorona értéke 16,63. A ház 60 cm-es vályog falazatú, amihez a folyosót kiszélesítve hozzáépítettek. Az új rész tégla és beton építésű. Egyedül ezen a folyosón van metlaki, a ház többi része betonozott. Összkomfortos, van fürdőszobája, ahol fatüzelésű meleg víz tároló van, ugyanitt helyezték el a vegyes tüzelésű kazánt, ami központi fűtésként látja el az egész családi ház fűtését radiátoros hőleadással. A tető kb. 2019-ben lett felújítva. Víz fúrt kútról van, ami 54 m mély, ez a víz került bevezetésre a házba is. Csatorna hálózat ezen a környéken nincs, így a szennyvíz szabályszerűen szennyvíz gödörbe (derítő) van elvezetve a házból. A ház felújítása elkezdődött, de az új tulajdonos feladata lesz azt befejezni. Az igazán szép nagy 133 m2-es családi ház jelenleg 3 szobás, de akár további 2 is kialakítható. Mellette egy fatároló van, ami 23,4 m2. Az ingatlan adottságai mellett nagyon fontos megemlíteni, hogy állattartásra kifejezetten kialakított az udvar. Rengeteg kisebb ól (44 m2) szárnyasoknak, nagyobb ólak (77 m2) disznó, marha, akár lovak tartására is. Szénatároló (14 m2), góré (10 m2), műhely (24 m2), 2 zárt garázs is, az egyik 15,6 m2, a másik pedig 22,5 m2. Disznó vágáshoz eszközök, még füstölő helyiség is van. Tökéletes hely elvonulni a nyüzsgéstől, aki szeretne egy önellátó életet elkezdeni, vagy csak szeretne állatokat tartani. Hitel és CSOK nem igényelhető az ingatlanra, ezért csak készpénzes vásárlóknak ajánljuk. Az OTP Ingatlanpont a banki háttérrel eladóink, és vevőink igényeit teljes körűen ki tudja szolgálni, az eladástól a vevői finanszírozásig. Hitel igénylés esetén akár egyedi kamatkedvezménnyel, jogosultság esetén az állami támogatásokhoz kapcsolódó felvilágosítással, teljeskörű pénzügyi tanácsadással és ügyintézéssel állunk ügyfeleink rendelkezésére. A pénzügyi tanácsadás és ügyintézői szolgáltatásunk díjmentes. ***VÁLASSZUK KI EGYÜTT AZ ÖNNEK LEGMEGFELELŐBB AJÁNLATOT! BANKI SORBAN ÁLLÁS NÉLKÜL! *** Az energetikai tanúsítvány készítése folyamatban van, amint rendelkezésre áll, úgy azzal a hirdetés frissítésre kerül. Referencia szám: M323047-HI

E-mail küldése a hirdetőnek

Hibás hirdetés bejelentése

Sikeres elküldtük a hiba bejelentést.

Hirdető adatai

Jószai Olívia
E-mail cím: olivia.joszai@otpip.hu
Telefonszám: +36-70-677-4669
OTPip
Hirdetés feladója: Ingatlaniroda
Ingatlaniroda: OTPip
E-mail cím: szentes@otpip.hu
Telefonszám: +36302233606

Képek



Térkép


Ajánlott ingatlanok

Családi ház

Eladó Ház, Sándorfalva

Keresés azonosító alapján: HI-2501795
  • Sándorfalva
  • Alapterület: 135 m²
  • Telekterület: 1 134 m²
  • Ár: 89 900 000 Ft (250 418 €)
  • Feltöltés dátuma: 2025.11.14.
  •  
Családi ház

Eladó Ház, Csongrád

Keresés azonosító alapján: HI-2549480
  • Csongrád
  • Alapterület: 101 m²
  • Telekterület: 349 m²
  • Ár: 43 500 000 Ft (121 170 €)
  • Feltöltés dátuma: 2026.03.12.
  •  
Családi ház

Eladó Ház, Királyhegyes

Keresés azonosító alapján: HI-2567282
  • Királyhegyes
  • Alapterület: 120 m²
  • Telekterület: 4 151 m²
  • Ár: 16 250 000 Ft (45 265 €)
  • Feltöltés dátuma: 2026.05.04.
  •  
Családi ház

Eladó Ház, Ráckeve

Keresés azonosító alapján: HI-2568695
  • Ráckeve
  • Alapterület: 103 m²
  • Telekterület: 807 m²
  • Ár: 88 900 000 Ft (247 632 €)
  • Feltöltés dátuma: 2026.05.07.
  •  
Facebook
Blogger
Twitter
Tweets by hasznaltingatla
Flickr