Eladó ház, Kecskemét

Ingatlan azonosító: HI-2319213

Bács-Kiskun megye - Kecskemét, Ikerház


124 900 000 Ft (323 575 €)

  • Hirdetés feladója: Ingatlaniroda
  • Pontos cím: Kecskemét
  • Típus: Eladó
  • Belső irodai azonosító: HZ053386-4773946
  • Alapterület: 94 m²
  • Telekterület: 1 971 m² ( 548 négyszögöl )
  • Építés éve: 2025
  • Egész szobák száma (12 m² felett): 4 db
  • Félszobák száma (6-12 m² között): 0 db
  • Fürdőszobák száma: 1 db
  • Ingatlan állapota: új építésű
  • Fűtés: gáz (cirko)
  • Pince: nincs
  • Akadálymentesített: nincs
  • Napelem van?: nincs
  • Légkondicionáló: nincs

Leírás

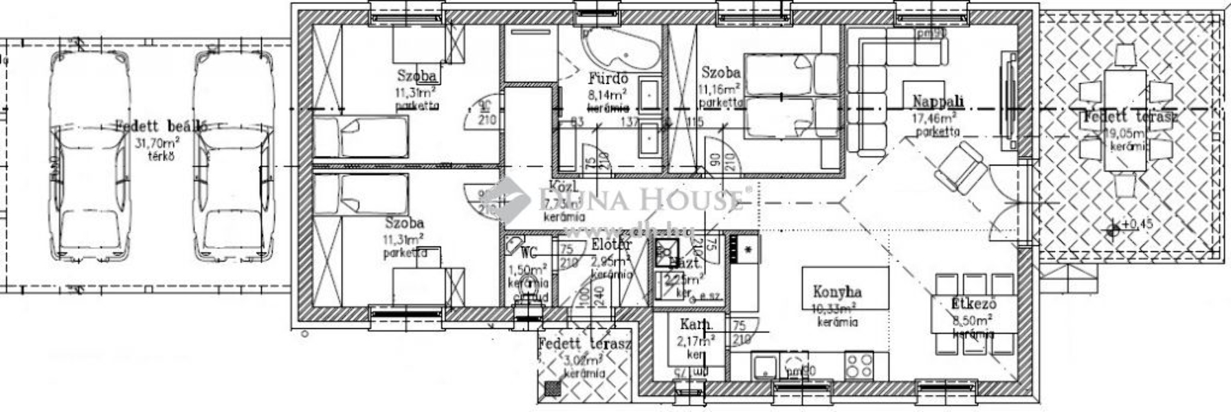
Eladó Kecskemét-Kadafalván nettó 94,81 nm lakóterű, amerikai konyhás nappali + 3 szobás, 31,7 m2-es fedett, DUPLA autóbeállóval és 19,05 nm-es terasszal rendelkező, PRÉMIUM műszaki tartalommal, extra alacsony rezsivel megépülő ikerház projektet 1971 nm-es telken.A megépülő ingatlanoknak közös a tetőszerkezete, közös fal nincs. A tervezéskor figyelembe vették azt, hogy mindkét lakóegység kellő elszeparáltsággal, intimitással rendelkezzen! A teraszok a lehető legtávolabb kerültek egymástól. Lakóegységenként 840 és 1971 nm privát telekrész fog hozzá tartozni használati megosztással.Telek:- összesen 2915 m2- 30 % beépíthetőség- közművek (villany, víz, csatorna, gáz)- kedvelt családi házas lakóövezetMűszaki tartalom:- beton sávalap- 30 N+F síkra csiszolt tégla+ 15 cm EPS 80 hőszigetelés- szeglemezes tető, födém gerendák között 30 cm vastag, fújt cellulóz, tűzgátló gipszkarton- a műanyag nyílászárók 3 rétegű üvegezésük, Argon gáz töltettel- 150-es osztott ablakok, szúnyoghálóval, alumínium elektromos távirányítású redőnyökkel szereltek- 24 KW-os kondenzációs BOSCH kazán vagy vele azonos tudású kazán- a fűtés manuálisan hordozható termosztáttal szabályozható- 2 db fűthető cseptálcás, hőszivattyús Midea 3,5 KW-os WIFI-s klíma- Inim SmartLiving riasztórendszer- hidegburkolatok bruttó 6.000 Ft/nm- melegburkolatok bruttó 3.500 Ft/nm- beltéri ajtók bruttó 80.000 Ft/db választható kilinccsel együtt- szaniterek és a csaptelepek bruttó 550.000 Ft értékig- 31,7 m2-es fedett autóbeállóTelek:- összesen 2915 m2- 30 % beépíthetőség- közművek (villany, víz, csatorna, gáz)- kedvelt családi házas lakóövezetMűszaki tartalom:- beton sávalap- 30 N+F síkra csiszolt tégla+ 15 cm EPS 80 hőszigetelés- szeglemezes tető, födém gerendák között 30 cm vastag, fújt cellulóz, tűzgátló gipszkarton- a műanyag nyílászárók 3 rétegű üvegezésük, Argon gáz töltettel- 150-es osztott ablakok, szúnyoghálóval, alumínium elektromos távirányítású redőnyökkel szereltek- 24 KW-os kondenzációs BOSCH kazán vagy vele azonos tudású kazán- a fűtés manuálisan hordozható termosztáttal szabályozható- 2 db fűthető cseptálcás, hőszivattyús Midea 3,5 KW-os WIFI-s klíma- Inim SmartLiving riasztórendszer- hidegburkolatok bruttó 6.000 Ft/nm- melegburkolatok bruttó 3.500 Ft/nm- beltéri ajtók bruttó 80.000 Ft/db választható kilinccsel együtt- szaniterek és a csaptelepek bruttó 550.000 Ft értékig- 31,7 m2-es fedett autóbeállóAz ár kulcsrakész átadással értendő, konyhabútor és lámpatestek nélkül, a TELEK ÁRAT TARTALMAZZA! Referencia szám: HZ053386

E-mail küldése a hirdetőnek

Hibás hirdetés bejelentése

Sikeres elküldtük a hiba bejelentést.

Hirdető adatai

Baski Attila
E-mail cím: baski.attila@dh.hu
Telefonszám: +36308396520
Duna House
Hirdetés feladója: Ingatlaniroda
Ingatlaniroda: Duna House
E-mail cím: kecskemet.budai@dh.hu
Telefonszám: +3676529416

Képek



Térkép


Ajánlott ingatlanok

Ikerház

Kiadó ház, Kecskemét

Keresés azonosító alapján: HI-2491085
  • Kecskemét
  • Alapterület: 150 m²
  • Telekterület: 381 m²
  • Ár: 769 740 Ft (1 994 €)
  • Feltöltés dátuma: 2025.10.20.
  • klímás
Műhely

Eladó ipari, Kecskemét

Keresés azonosító alapján: HI-2440199
  • Kecskemét
  • Alapterület: 2 945 m²
  • Telekterület: 9 841 m²
  • Ár: 900 000 000 Ft (2 331 606 €)
  • Feltöltés dátuma: 2025.07.03.
  • klímás
Családi ház

Eladó ház, Üllő

Keresés azonosító alapján: HI-2288052
  • Üllő
  • Alapterület: 500 m²
  • Telekterület: 3 190 m²
  • Ár: 303 000 000 Ft (784 974 €)
  • Feltöltés dátuma: 2024.09.03.
  •  
Csarnok

Kiadó ipari, Kecskemét

Keresés azonosító alapján: HI-2356665
  • Kecskemét
  • Alapterület: 270 m²
  • Ár: 2 000 000 Ft (5 181 €)
  • Feltöltés dátuma: 2025.01.09.
  •  
Facebook
Blogger
Twitter
Tweets by hasznaltingatla
Flickr