Eladó Ház, Kemenesszentpéter

Ingatlan azonosító: HI-2559188

Veszprém megye - Kemenesszentpéter, Családi ház


8 900 000 Ft (23 670 €)

  • Hirdetés feladója: Ingatlaniroda
  • Pontos cím: Kemenesszentpéter
  • Típus: Eladó
  • Belső irodai azonosító: M325205-5191395
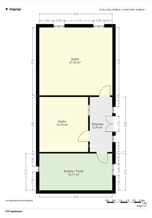
  • Alapterület: 63 m²
  • Telekterület: 1 366 m² ( 380 négyszögöl )
  • Építés éve: 1920
  • Egész szobák száma (12 m² felett): 2 db
  • Félszobák száma (6-12 m² között): 0 db
  • Ingatlan állapota: felújítandó
  • Komfort: félkomfortos
  • Fűtés: egyéb
  • Pince: nincs
  • Akadálymentesített: nincs
  • Napelem van?: nincs
  • Légkondicionáló: nincs

Leírás

ELADÓ Kemenesszentpéteren, a falu KÖZPONTJÁBAN egy 63 m2-es, 2 SZOBÁS családi ház, amely az 1920-as évek körül épült VEGYES FALAZATTAL. Az ingatlan STATIKAILAG RENDBEN van, TETŐSZERKEZETE JÓ, jelenlegi állapota FELÚJÍTANDÓ, így IDEÁLIS ALAP saját igények szerinti korszerűsítéshez. Főbb jellemzők: - Hasznos alapterület: 63 m2, 2 szoba - Építés: kb. 1920-as évek, vegyes falazat - Szerkezet: stabil, jó tetőszerkezet - Fűtés: KÁLYHÁVAL megoldott - Közművek: VÍZ, VILLANY, CSATORNA BEKÖTVE - GÁZ: nincs bevezetve, de a GÁZSZOLGÁLTATÁS AZ UTCÁBAN elérhető, IGÉNY SZERINT BEKÖTHETŐ A TELEK MÉRETE 1366 m2, amely NAGY TELEKNEK számít a kategóriában. A telken KERTI CSAP, kb. 20 ÉVES AKÁCFÁK, valamint EGY ÁSOTT KÚT található, amelyek a kert öntözését és a ház körüli munkákat PRAKTIKUSAN támogathatják. Elhelyezkedés: KÖZPONTI ELHELYEZKEDÉS a településen belül, ami mindennapi ügyintézéshez és helyi szolgáltatások eléréséhez HATÉKONY választás. A meglévő közművek, a jó szerkezeti állapot és a beköthető gáz együttese RUGALMAS FEJLESZTÉSI LEHETŐSÉGET kínál. Összegzés: FELÚJÍTANDÓ, DE STABIL alapokon álló, KÖZMŰVESÍTETT, KÖZPONTI fekvésű, 2 szobás családi ház NAGY TELEKKEL Kemenesszentpéter szívében. Olyan érdeklődőknek ajánlható, akik TERVEZHETŐ, LÉPÉSRŐL LÉPÉSRE MEGÚJÍTHATÓ ingatlant keresnek. Amennyiben felkeltette ez a remek ingatlan a figyelmét, vagy kérdése lenne keressen bizalommal! Érdeklődni: Molnár Márk Telefon: 06 30 265 5725 Referencia szám: M325205-HI

E-mail küldése a hirdetőnek

Hibás hirdetés bejelentése

Sikeres elküldtük a hiba bejelentést.

Hirdető adatai

Molnár Márk István
E-mail cím: mark.istvan.molnar@otpip.hu
Telefonszám: +36302655725
OTPip
Hirdetés feladója: Ingatlaniroda
Ingatlaniroda: OTPip
E-mail cím: papa@otpip.hu
Telefonszám: +36707081049

Képek



Térkép


Ajánlott ingatlanok

Családi ház

Eladó Ház, Bakonyság

Keresés azonosító alapján: HI-2502516
  • Bakonyság
  • Alapterület: 97 m²
  • Telekterület: 2 838 m²
  • Ár: 20 900 000 Ft (55 585 €)
  • Feltöltés dátuma: 2025.11.17.
  •  
Családi ház

Eladó Ház, Bakonyszentlászló

Keresés azonosító alapján: HI-2502542
  • Bakonyszentlászló
  • Alapterület: 258 m²
  • Telekterület: 821 m²
  • Ár: 117 000 000 Ft (311 170 €)
  • Feltöltés dátuma: 2025.11.17.
  •  
Családi ház

Eladó Ház, Pápa

Keresés azonosító alapján: HI-2502520
  • Pápa
  • Alapterület: 209 m²
  • Telekterület: 874 m²
  • Ár: 89 900 000 Ft (239 096 €)
  • Feltöltés dátuma: 2025.11.17.
  •  
Családi ház

Eladó Ház, Pápa

Keresés azonosító alapján: HI-2502518
  • Pápa
  • Alapterület: 69 m²
  • Telekterület: 646 m²
  • Ár: 32 990 000 Ft (87 739 €)
  • Feltöltés dátuma: 2025.11.17.
  •  
Facebook
Blogger
Twitter
Tweets by hasznaltingatla
Flickr