Eladó Ház, Kisvárda

Ingatlan azonosító: HI-2524552

Szabolcs-Szatmár-Bereg megye - Kisvárda, Családi ház


65 000 000 Ft (183 099 €)

  • Hirdetés feladója: Ingatlaniroda
  • Pontos cím: Kisvárda
  • Típus: Eladó
  • Belső irodai azonosító: M320217-5128034
  • Alapterület: 200 m²
  • Telekterület: 497 m² ( 138 négyszögöl )
  • Építés éve: 1982
  • Egész szobák száma (12 m² felett): 2 db
  • Félszobák száma (6-12 m² között): 1 db
  • Ingatlan állapota: felújított
  • Komfort: összkomfortos
  • Fűtés: gáz (cirko)
  • Pince: nincs
  • Akadálymentesített: nincs
  • Napelem van?: nincs
  • Légkondicionáló: nincs

Leírás

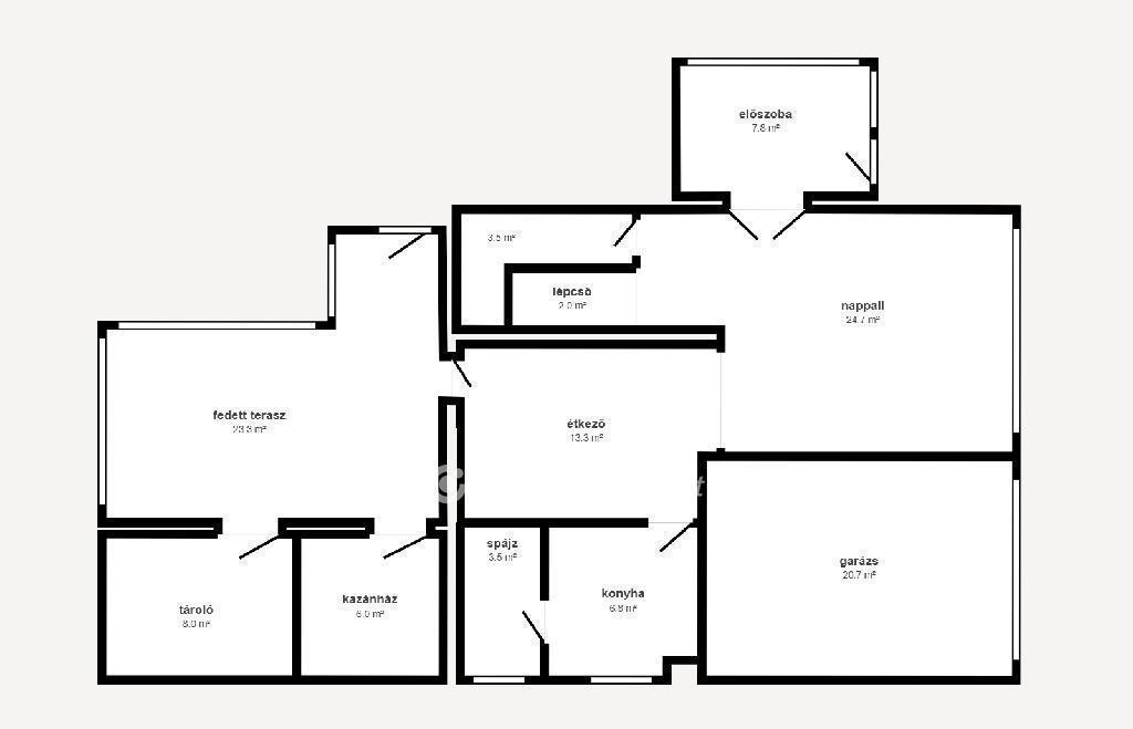
Kisvárda déli lakóövezetében eladó egy 3 szobás, 190 m2-es családi ház. Az épület 1982-ben épült, szerkezete tégla, lapos tetős kivitelezéssel. A ház homlokzatát 10 cm-es hőszigetelés védi, valamint lábazati szigetelést kapott. A központi fűtést kondenzációs kombi gázkazán végzi, radiátor hőleadókkal. A meleg víz előállításáért egy 120 literes villanybojler felel. A műanyag külső ajtók és ablakok kiváló minőségűek, többrétegű, hőszigetelt üveg betéttel, redőnnyel és szúnyoghálóval szereltek. A ház mögött található egy fedett terasz, valamint onnan nyíló gépház és egy tároló helyiség is. Az 500 m2-es telken helyet kapott még egy filagória és egy szalonnasütő is. További előnyök: 3 db hűtő-fűtő klíma, teremgarázs, riasztó és kamera rendszer. Az ingatlan meglehetősen csendes, és jól megközelíthető területen helyezkedik el. Pár száz méteren belül található bolt, posta, óvoda és kórház is. Ideális lehet kis- és nagy családok számára. Referencia szám: 320217 Pénzügyi tanácsadással, hitel ügyintézéssel (FalusiCSOK, CSOKPlusz, Babaváró, kedvezményes lakáshitel) segítjük ügyfeleinket, melyről részletes tájékoztatást adunk OTP Ingatlanpont, és OTP Pénzügyi Pont irodáinkban.

E-mail küldése a hirdetőnek

Hibás hirdetés bejelentése

Sikeres elküldtük a hiba bejelentést.

Hirdető adatai

Huszár Gabriella
E-mail cím: gabriella.huszar@otpip.hu
Telefonszám: +36317713205
OTPip
Hirdetés feladója: Ingatlaniroda
Ingatlaniroda: OTPip
E-mail cím: nyiregyhaza.bocskai@otpip.hu
Telefonszám: +36706060062

Képek



Térkép


Ajánlott ingatlanok

Családi ház

Eladó Ház, Nagykálló

Keresés azonosító alapján: HI-2542045
  • Nagykálló
  • Alapterület: 116 m²
  • Telekterület: 2 516 m²
  • Ár: 45 000 000 Ft (126 761 €)
  • Feltöltés dátuma: 2026.02.27.
  •  
Családi ház

Eladó Ház, Újfehértó

Keresés azonosító alapján: HI-2559885
  • Újfehértó
  • Alapterület: 73 m²
  • Telekterület: 2 692 m²
  • Ár: 37 000 000 Ft (104 225 €)
  • Feltöltés dátuma: 2026.04.10.
  •  
Családi ház

Eladó Ház, Tiszavasvári

Keresés azonosító alapján: HI-2560243
  • Tiszavasvári
  • Alapterület: 159 m²
  • Telekterület: 474 m²
  • Ár: 19 490 000 Ft (54 901 €)
  • Feltöltés dátuma: 2026.04.12.
  •  
Családi ház

Eladó Ház, Nyírbogdány

Keresés azonosító alapján: HI-2539027
  • Nyírbogdány
  • Alapterület: 80 m²
  • Telekterület: 3 886 m²
  • Ár: 44 900 000 Ft (126 479 €)
  • Feltöltés dátuma: 2026.02.18.
  •  
Facebook
Blogger
Twitter
Tweets by hasznaltingatla
Flickr