Eladó Ház, Kisvárda

Ingatlan azonosító: HI-2534668

Szabolcs-Szatmár-Bereg megye - Kisvárda, Családi ház


48 900 000 Ft (136 212 €)

  • Hirdetés feladója: Ingatlaniroda
  • Pontos cím: Kisvárda
  • Típus: Eladó
  • Belső irodai azonosító: M321175-5143903
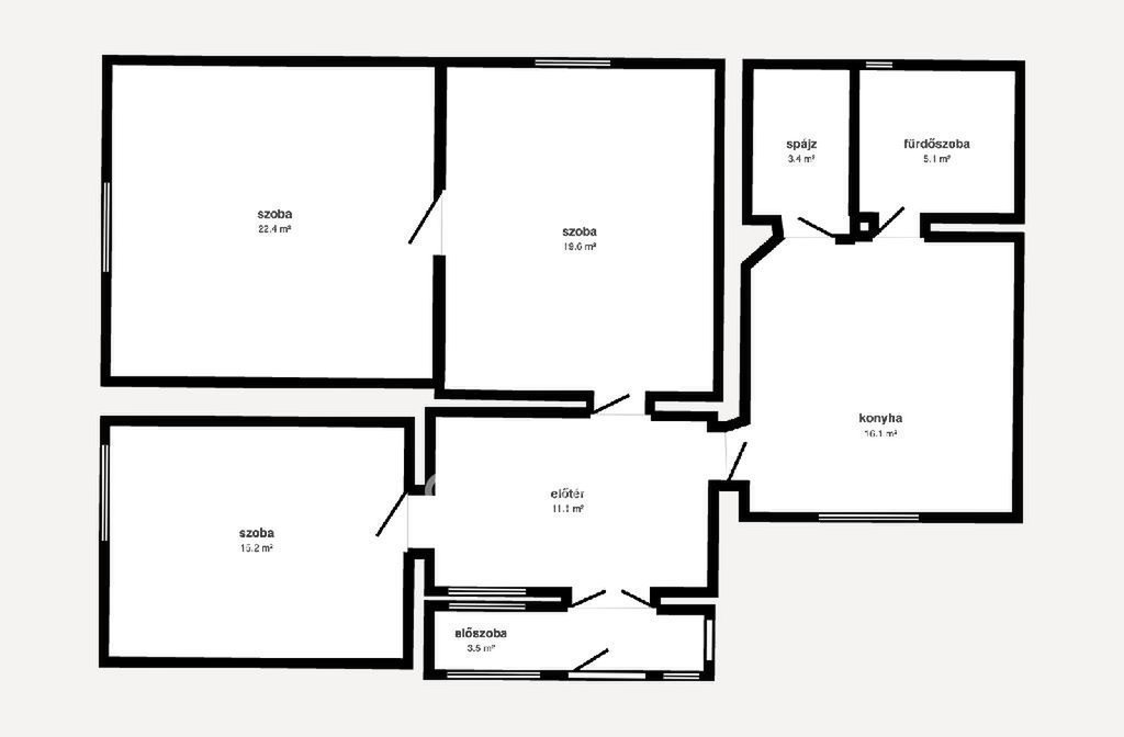
  • Alapterület: 96 m²
  • Telekterület: 1 009 m² ( 281 négyszögöl )
  • Építés éve: 1970
  • Egész szobák száma (12 m² felett): 3 db
  • Félszobák száma (6-12 m² között): 0 db
  • Ingatlan állapota: jó állapotú
  • Komfort: összkomfortos
  • Fűtés: egyéb kazán
  • Pince: nincs
  • Akadálymentesített: nincs
  • Napelem van?: nincs
  • Légkondicionáló: nincs

Leírás

Eladó családi ház Kisvárda kedvelt részén! Kisvárda csendes, lakó-pihenő övezetében kínálunk megvételre egy jól karbantartott családi házat. Az ingatlan vegyes falazatú (vályog és szilikát), stabil beton alappal. A tető 2 éve felújításra került, lemezfedéssel. A fűtést 3 éves kondenzációs gázkazán biztosítja. A ház 96,4 nm alapterületű, elosztása praktikus és élhető. 3 szoba, tágas előtér, konyha-étkező, fürdőszoba WC-vel és kézmosóval áll rendelkezésre. Kamra, szélfogó és külön kazánház is található az ingatlanban. A telek mérete 1009 nm, amely bőséges teret kínál a mindennapokhoz. Az udvaron egy 30 nm-es melléképület és egy garázs is helyet kapott. Nyugodt környezet, jó elhelyezkedés, rendezett környék. OTP Banki hátterünknek köszönhetően finanszírozási igényekben (pl. Otthon Start Hitelprogram, Babaváró, Falusi CSOK, CSOK Plusz, Lakáshitel, Személyi kölcsön stb.), illetve biztosítások tekintetében is díjmentesen, soron kívüli ügyintézéssel segítem ügyfeleim! Érdeklődés esetén kérem hivatkozzon a következő referenciaszámra: M321175 https://my.matterport.com/show/?m=tkxzfhkhzp0iw8fr678zck4yd&views=0&mls=1

E-mail küldése a hirdetőnek

Hibás hirdetés bejelentése

Sikeres elküldtük a hiba bejelentést.

Hirdető adatai

Kissné Orosz Ildikó Krisztina
E-mail cím: krisztina.kissne.orosz.ildiko@otpip.hu
Telefonszám: +36204680753
OTPip
Hirdetés feladója: Ingatlaniroda
Ingatlaniroda: OTPip
E-mail cím: nyiregyhaza.bocskai@otpip.hu
Telefonszám: +36706060062

Képek



Térkép


Ajánlott ingatlanok

Családi ház

Eladó Ház, Szamosszeg

Keresés azonosító alapján: HI-2569050
  • Szamosszeg
  • Alapterület: 240 m²
  • Telekterület: 2 826 m²
  • Ár: 55 000 000 Ft (153 203 €)
  • Feltöltés dátuma: 2026.05.08.
  •  
Családi ház

Eladó Ház, Nyírjákó

Keresés azonosító alapján: HI-2557787
  • Nyírjákó
  • Alapterület: 90 m²
  • Telekterület: 7 785 m²
  • Ár: 39 700 000 Ft (110 585 €)
  • Feltöltés dátuma: 2026.04.02.
  • klímás
Családi ház

Eladó Ház, Nyírbátor

Keresés azonosító alapján: HI-2556253
  • Nyírbátor
  • Alapterület: 72 m²
  • Telekterület: 1 021 m²
  • Ár: 45 500 000 Ft (126 741 €)
  • Feltöltés dátuma: 2026.03.30.
  •  
Családi ház

Eladó Ház, Szabolcs

Keresés azonosító alapján: HI-2561672
  • Szabolcs
  • Alapterület: 100 m²
  • Telekterület: 700 m²
  • Ár: 55 000 000 Ft (153 203 €)
  • Feltöltés dátuma: 2026.04.15.
  •  
Facebook
Blogger
Twitter
Tweets by hasznaltingatla
Flickr