Eladó Ház, Komló

Ingatlan azonosító: HI-2540663

Baranya megye - Komló, Hétvégi házas


29 500 000 Ft (77 023 €)

  • Hirdetés feladója: Ingatlaniroda
  • Pontos cím: Komló
  • Típus: Eladó
  • Belső irodai azonosító: M322637-5156254
  • Alapterület: 43 m²
  • Telekterület: 301 m² ( 84 négyszögöl )
  • Építés éve: 1960
  • Egész szobák száma (12 m² felett): 1 db
  • Félszobák száma (6-12 m² között): 1 db
  • Fűtés: elektromos
  • Akadálymentesített: nincs
  • Napelem van?: nincs
  • Légkondicionáló: nincs

Leírás

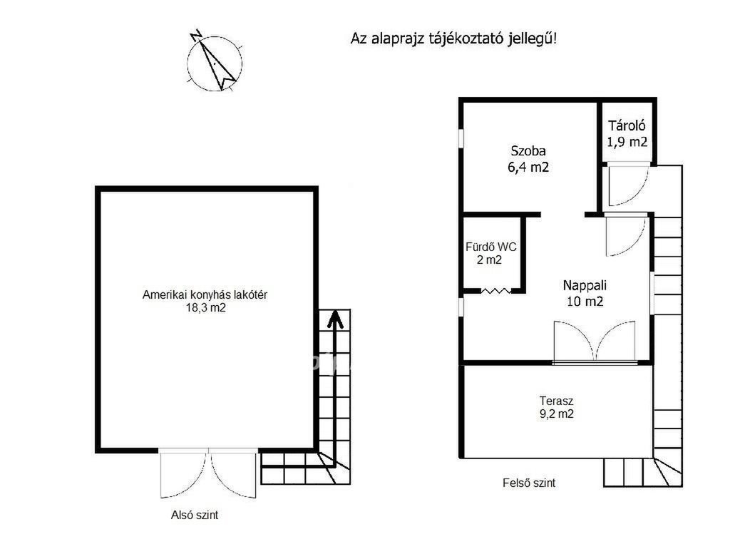
A Mecsek lombos erdőkkel ölelt völgyében, Sikondán, 43 m2-es, panorámás nyaraló eladó. Az ingatlan csendes üdülőházas övezetben, átmenő forgalomtól mentes, közvetlen tóparti utcában helyezkedik el. A felújítandó épület alsó szintje konyha, étkező és háló funkcióra hasznosított, a felső szinten nappali, háló, zuhanyzó WC, tároló és fedett terasz lett kialakítva. A 301 m2-es, panorámás telek két utcáról megközelíthető. A telken víz, csatorna és villany közművek vannak. Gázvezeték az utcában van. Termálfürdővel is rendelkező wellness hotel gyalog 900 méterre, 12 perc séta távolságban elérhető. Az ingatlan kiváló választás nyaralásra, felújítást követően akár kiadásra is. A csodálatos természeti környezetben garantált a kikapcsolódás és pihenés. A telek 20%-ig beépíthető, legnagyobb építmény magasság 6 méter. Az eladó tervekkel rendelkezik egy két egységes új ház építésére. Sikonda, Komló város közkedvelt településrésze, Pécs központjától 18 km-re, főútvonalon, könnyen és gyorsan megközelíthető. Bővebb információért, megtekintésért keressen telefonon! 29500000 Ft Referencia szám: M322637

E-mail küldése a hirdetőnek

Hibás hirdetés bejelentése

Sikeres elküldtük a hiba bejelentést.

Hirdető adatai

Borvári Mária
E-mail cím: borvari.maria@otpip.hu
Telefonszám: +36703934905
OTPip
Hirdetés feladója: Ingatlaniroda
Ingatlaniroda: OTPip
E-mail cím: pecs@otpip.hu
Telefonszám: +36-70-708-2428

Képek



Térkép


Ajánlott ingatlanok

Hétvégi házas

Eladó Ház, Fadd

Keresés azonosító alapján: HI-2170595
  • Fadd
  • Alapterület: 68 m²
  • Telekterület: 143 m²
  • Ár: 40 000 000 Ft (104 439 €)
  • Feltöltés dátuma: 2024.02.05.
  •  
Hétvégi házas

Eladó Ház, Gyód

Keresés azonosító alapján: HI-2419379
  • Gyód
  • Alapterület: 30 m²
  • Telekterület: 1 085 m²
  • Ár: 22 000 000 Ft (57 441 €)
  • Feltöltés dátuma: 2025.05.17.
  •  
Hétvégi házas

Eladó Ház, Harkány

Keresés azonosító alapján: HI-2489827
  • Harkány
  • Alapterület: 88 m²
  • Telekterület: 365 m²
  • Ár: 34 900 000 Ft (91 123 €)
  • Feltöltés dátuma: 2025.10.15.
  •  
Ikerház

Eladó Ház, Orfű

Keresés azonosító alapján: HI-2154477
  • Orfű
  • Alapterület: 140 m²
  • Telekterület: 1 054 m²
  • Ár: 134 990 000 Ft (352 454 €)
  • Feltöltés dátuma: 2024.01.18.
  •  
Facebook
Blogger
Twitter
Tweets by hasznaltingatla
Flickr