Eladó Ház, Kömörő

Ingatlan azonosító: HI-2525637

Szabolcs-Szatmár-Bereg megye - Kömörő, Családi ház


13 000 000 Ft (33 766 €)

  • Hirdetés feladója: Ingatlaniroda
  • Pontos cím: Kömörő
  • Típus: Eladó
  • Belső irodai azonosító: M319239-5130796
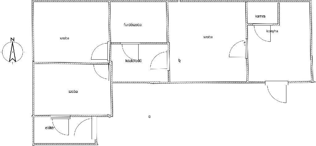
  • Alapterület: 93 m²
  • Telekterület: 3 093 m² ( 860 négyszögöl )
  • Építés éve: 1979
  • Egész szobák száma (12 m² felett): 2 db
  • Félszobák száma (6-12 m² között): 1 db
  • Ingatlan állapota: felújítandó
  • Komfort: félkomfortos
  • Fűtés: egyéb
  • Pince: nincs
  • Akadálymentesített: nincs
  • Napelem van?: nincs
  • Légkondicionáló: nincs

Leírás

Kömörő – 2+1 szobás, felújítandó családi ház eladó (Szabolcs-Szatmár-Bereg megye) 2+1 szoba – felújítandó állapot Kömörő főutcáján, csendes környezetben Kialakított fürdőszoba Tágas telek, kertkapcsolat Új lemezkerítés – biztonság és privát szféra Szolid ár – elérhető belépő saját házhoz vagy befektetéshez Ideális választás: ‍‍‍ Családoknak – saját ízlés szerint kialakítható otthon Befektetőknek – felújítás után kiadásra vagy továbbértékesítésre Első lakás vásárlóknak – nyugodt, jól megközelíthető környezetben Nyugdíjasoknak, vidéki életre vágyóknak – csendes, központi elhelyezkedés Finanszírozás: Otthon Start Hitelprogram Babaváró CSOK Plusz Lakáshitel, személyi kölcsön Díjmentes, soron kívüli ügyintézés banki háttérrel Referencia szám: M319239 Érdeklődni: Novák Norbert Tel: 0670/408-6543 Email: norbert.novak@otpip.hu De. 09:00 - Du. 16:00 Referencia szám: M319239

E-mail küldése a hirdetőnek

Hibás hirdetés bejelentése

Sikeres elküldtük a hiba bejelentést.

Hirdető adatai

Novák Norbert
E-mail cím: norbert.novak@otpip.hu
Telefonszám: +36704086543
OTPip
Hirdetés feladója: Ingatlaniroda
Ingatlaniroda: OTPip
E-mail cím: nyiregyhaza.bocskai@otpip.hu
Telefonszám: +36706060062

Képek



Térkép


Ajánlott ingatlanok

Családi ház

Eladó Ház, Vásárosnamény

Keresés azonosító alapján: HI-2468170
  • Vásárosnamény
  • Alapterület: 110 m²
  • Telekterület: 1 000 m²
  • Ár: 55 000 000 Ft (142 857 €)
  • Feltöltés dátuma: 2025.09.02.
  •  
Családi ház

Eladó Ház, Fehérgyarmat

Keresés azonosító alapján: HI-2518670
  • Fehérgyarmat
  • Alapterület: 105 m²
  • Telekterület: 105 m²
  • Ár: 26 000 000 Ft (67 532 €)
  • Feltöltés dátuma: 2026.01.07.
  •  
Családi ház

Eladó Ház, Csenger

Keresés azonosító alapján: HI-2525644
  • Csenger
  • Alapterület: 255 m²
  • Telekterület: 1 450 m²
  • Ár: 66 000 000 Ft (171 429 €)
  • Feltöltés dátuma: 2026.01.24.
  •  
Családi ház

Eladó Ház, Kisszekeres

Keresés azonosító alapján: HI-2525638
  • Kisszekeres
  • Alapterület: 72 m²
  • Telekterület: 1 016 m²
  • Ár: 8 700 000 Ft (22 597 €)
  • Feltöltés dátuma: 2026.01.24.
  •  
Facebook
Blogger
Twitter
Tweets by hasznaltingatla
Flickr