Eladó Ház, Külsővat

Ingatlan azonosító: HI-2549892

Veszprém megye - Külsővat, Családi ház


29 500 000 Ft (82 173 €)

  • Hirdetés feladója: Ingatlaniroda
  • Pontos cím: Külsővat
  • Típus: Eladó
  • Belső irodai azonosító: M322757-5173299
  • Alapterület: 195 m²
  • Telekterület: 2 079 m² ( 578 négyszögöl )
  • Építés éve: 1987
  • Egész szobák száma (12 m² felett): 4 db
  • Félszobák száma (6-12 m² között): 1 db
  • Ingatlan állapota: jó állapotú
  • Komfort: összkomfortos
  • Fűtés: egyéb kazán
  • Pince: nincs
  • Akadálymentesített: nincs
  • Napelem van?: nincs
  • Légkondicionáló: nincs

Leírás

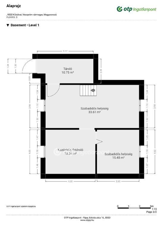
Eladásra kínálok Veszprém vármegyében, Külsővat rendezett-gondozott településén, egy 1987-ben épült 195,9 m2 alapterületű, felújított, tégla falazatú, részben beépített tetőteres családi házat 2079 m2-es telken. Külsővat a Kisalföldön, a Marcal-medence nyugati szélén helyezkedik el a kiemelkedő Bakony és a lesüllyedő Győri-medence között. A legközelebbi város Celldömölk, amelynek központjától alig 8 kilométer választja el; Pápától mintegy 20 kilométerre fekszik. A faluban található egy óvoda, így ideális hely a családok számára, a településen megtalálhatók az alapvető szolgáltatások, mint például bolt, posta. A ház elosztását tekintve áll, az alsó szint: előszobából, konyhából, 3 szobából, fürdőszobából, közlekedőből, kamrából, valamint egy elő teraszból. A tetőtér elosztását tekintve áll: előtérből, 1 teljes értékű-külön bejáratú erkélyes lakószobából, valamint további 2 szobából és 1 fürdőszobából és WC-ből. Tartozik az ingatlanhoz 78,2 m2 nagyságú pince is, 3 helységgel, és gépészeti helység is itt található. A nagy területű udvari rész zárt, körbekerített. A konyhakertben a kiváló minőségű termőföld jelenleg is lehetővé teszi a zöldség és gyümölcstermelést. Az udvarban garázs és további tárolók találhatók még. Az ingatlan kiváló statikai és szerkezeti állapotnak örvend. A nyílászárók ujjak, redőnnyel látottak, műanyagokra lettek cserélve, amik által a ház energetikai besorolás még kedvezőbb lett. A ház fűtése kazánnal megoldott. A meleg vizet villanybojler szolgáltatja. Az ingatlan elhelyezkedésé is kivételes, nyugodt környezetben található. Tökéletes választás nagycsaládosoknak vagy azoknak, akik nyugodt környezetben. Ajánlom mindazon érdeklődők figyelmébe, akik falun, több városhoz közel, nyugodt családias környezetben keresnek otthont, pihenésre vágynak csendes környezetben. Az OTP Ingatlanpont teljes körű ügyintézéssel áll az eladók és a vevők rendelkezésére. A kínálatunkból választott ingatlan finanszírozásához kedvezményes hitelkonstrukciót kínálunk. Az adásvételi szerződés megkötéséhez igény szerint megbízható ügyvédi közreműködést biztosítunk, és segítséget nyújtunk az adásvételhez kapcsolódó ügyek intézéséhez is. Amennyiben felkeltette érdeklődését az általam kínált ingatlan, keressen bizalommal. A hirdetési szöveg és képek az Otp Ingatlanpont tulajdona. Amennyiben felkeltette érdeklődését az általam kínált ingatlan, keressen bizalommal. Ne habozzon tovább, hiszen ez a ház valóban páratlan lehetőséget kínál! SZEREZZE MEG, HÍVJA MOST A MEGADOTT TELEFONSZÁMOT! 29500000 Ft Amennyiben az ingatlan felkeltette érdeklődését, esetleg bármivel kapcsolatban kérdése lenne, keressen Bizalommal! Verrasztó Edina: +36703156380 Referencia szám: M322757-HI

E-mail küldése a hirdetőnek

Hibás hirdetés bejelentése

Sikeres elküldtük a hiba bejelentést.

Hirdető adatai

Verrasztó Edina Irén
E-mail cím: edina.iren.verraszto@otpip.hu
Telefonszám: +36703156380
OTPip
Hirdetés feladója: Ingatlaniroda
Ingatlaniroda: OTPip
E-mail cím: papa@otpip.hu
Telefonszám: +36707081049

Képek



Térkép


Ajánlott ingatlanok

Családi ház

Eladó Ház, Jánosháza

Keresés azonosító alapján: HI-2566671
  • Jánosháza
  • Alapterület: 145 m²
  • Telekterület: 982 m²
  • Ár: 43 900 000 Ft (122 284 €)
  • Feltöltés dátuma: 2026.05.01.
  •  
Családi ház

Eladó Ház, Bakonyszentlászló

Keresés azonosító alapján: HI-2546959
  • Bakonyszentlászló
  • Alapterület: 125 m²
  • Telekterület: 921 m²
  • Ár: 75 000 000 Ft (208 914 €)
  • Feltöltés dátuma: 2026.03.05.
  •  
Családi ház

Eladó Ház, Nagytevel

Keresés azonosító alapján: HI-2566673
  • Nagytevel
  • Alapterület: 75 m²
  • Telekterület: 477 m²
  • Ár: 39 000 000 Ft (108 635 €)
  • Feltöltés dátuma: 2026.05.01.
  •  
Családi ház

Eladó Ház, Ravazd

Keresés azonosító alapján: HI-2506088
  • Ravazd
  • Alapterület: 111 m²
  • Telekterület: 867 m²
  • Ár: 99 990 000 Ft (278 524 €)
  • Feltöltés dátuma: 2025.11.26.
  • klímás
Facebook
Blogger
Twitter
Tweets by hasznaltingatla
Flickr