Eladó Ház, Martonvásár

Ingatlan azonosító: HI-2488319

Fejér megye - Martonvásár, Családi ház


87 500 000 Ft (224 359 €)

  • Hirdetés feladója: Ingatlaniroda
  • Pontos cím: Martonvásár
  • Típus: Eladó
  • Belső irodai azonosító: M312520-5059028
  • Alapterület: 137 m²
  • Telekterület: 1 846 m² ( 513 négyszögöl )
  • Építés éve: 1982
  • Egész szobák száma (12 m² felett): 5 db
  • Félszobák száma (6-12 m² között): 0 db
  • Ingatlan állapota: közepes állapotú
  • Komfort: összkomfortos
  • Fűtés: gáz (cirko)
  • Pince: nincs
  • Akadálymentesített: nincs
  • Energiatanúsítvány: C
  • Napelem van?: nincs
  • Légkondicionáló: nincs

Leírás

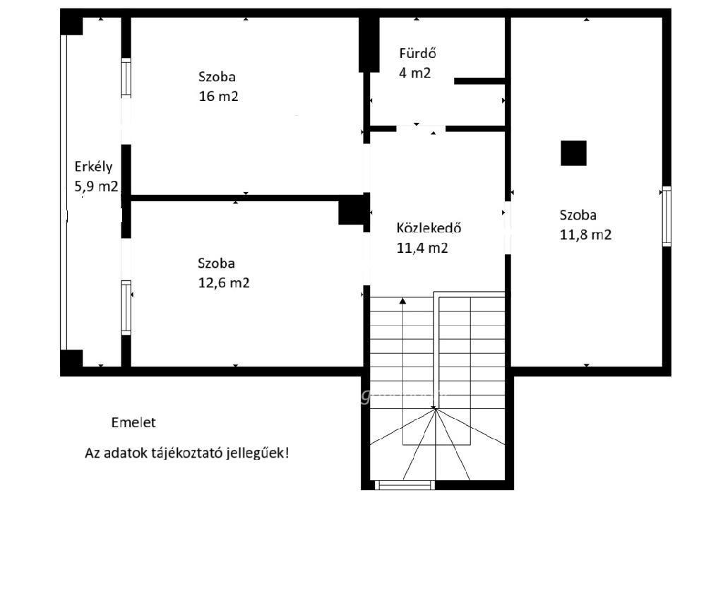
Martonvásár szívében, csendes környezetben eladó egy 137 nm-es, kétszintes, téglaépítésű családi ház egy 1 846 nm-es belterületi telken. Az ingatlan 5 szobával, konyhával, kamrával, 2 fürdővel és wc-vel rendelkezik. A földszinten hálószoba, tágas nappali étkezővel, konyha és fürdőszoba található, az emeleten további 3 szoba, erkélyek és egy fürdőszoba került kialakításra. A ház 60 nm-es alápincézett résszel, fedett garázzsal és több parkolóhellyel rendelkezik, így nagyobb családok vagy több generáció együttélésére is kiváló. Az épület összközműves, gázkazános, radiátoros fűtéssel ellátott. Belső tere részben felújítandó, így igény szerint alakítható. A telek akár leválasztható, befektetésre is alkalmas. Kiváló közlekedés: Budapest 15?20 perc, Székesfehérvár és Dunaújváros kb. 15 perc, Velencei-tó 10 perc alatt elérhető.

E-mail küldése a hirdetőnek

Hibás hirdetés bejelentése

Sikeres elküldtük a hiba bejelentést.

Hirdető adatai

Darnai Henrietta
E-mail cím: Henrietta.Darnai@otpip.hu
Telefonszám: +36-20-487-4399
OTPip
Hirdetés feladója: Ingatlaniroda
Ingatlaniroda: OTPip
E-mail cím: fehervar@otpip.hu
Telefonszám: +36-70-708-2434

Képek



Térkép


Ajánlott ingatlanok

Családi ház

Eladó Ház, Gárdony

Keresés azonosító alapján: HI-2433763
  • Gárdony
  • Alapterület: 300 m²
  • Telekterület: 720 m²
  • Ár: 150 000 000 Ft (384 615 €)
  • Feltöltés dátuma: 2025.06.20.
  •  
Családi ház

Eladó Ház, Besnyő

Keresés azonosító alapján: HI-2490165
  • Besnyő
  • Alapterület: 150 m²
  • Telekterület: 882 m²
  • Ár: 100 000 000 Ft (256 410 €)
  • Feltöltés dátuma: 2025.10.16.
  •  
Családi ház

Eladó Ház, Pusztaszabolcs

Keresés azonosító alapján: HI-2488324
  • Pusztaszabolcs
  • Alapterület: 95 m²
  • Telekterület: 450 m²
  • Ár: 74 900 000 Ft (192 051 €)
  • Feltöltés dátuma: 2025.10.10.
  • klímás
Családi ház

Eladó Ház, Besnyő

Keresés azonosító alapján: HI-2462682
  • Besnyő
  • Alapterület: 115 m²
  • Telekterület: 1 335 m²
  • Ár: 99 900 000 Ft (256 154 €)
  • Feltöltés dátuma: 2025.08.15.
  • klímás
Facebook
Blogger
Twitter
Tweets by hasznaltingatla
Flickr