Eladó Ház, Mezőberény

Ingatlan azonosító: HI-2507758

Békés megye - Mezőberény, Családi ház


29 000 000 Ft (80 780 €)

  • Hirdetés feladója: Ingatlaniroda
  • Pontos cím: Mezőberény
  • Típus: Eladó
  • Belső irodai azonosító: M317862-5097819
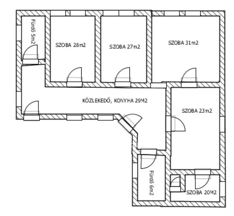
  • Alapterület: 167 m²
  • Telekterület: 729 m² ( 203 négyszögöl )
  • Építés éve: 1950
  • Egész szobák száma (12 m² felett): 5 db
  • Félszobák száma (6-12 m² között): 0 db
  • Ingatlan állapota: felújítandó
  • Komfort: komfort nélküli
  • Fűtés: egyéb
  • Pince: nincs
  • Akadálymentesített: nincs
  • Napelem van?: nincs
  • Légkondicionáló: nincs

Leírás

Mezőberény központjában eladó egy 167 m2-es, polgári stílusú családi ház, amely tökéletes alapot ad egy meleg, otthonos családi fészek kialakításához. A nagy szobák és a tágas terek kényelmes életteret biztosítanak minden családtagnak, a hatalmas telek pedig ideális játékra, kertészkedésre és közös programokra. A ház felújítást igényel, így teljes mértékben saját ízlésre formálható. A ház tágas tereinek és sarki fekvésének köszönhetően kiváló alap lehet irodák, üzletek vagy befektetési célú ingatlan kialakítására. Kedvező hitelajánlatokkal (CSOK+, BABAVÁRÓ hitel, piaci hitel, és szabadfelhasználású hitel) várjuk jelentkezését. Számos konstrukció közül választhatnak. Irodáink Szentes, Petőfi utca 12. (a buszmegálló felől) és Csongrád, Fő utca 54. szám alatt várja a személyes érdeklődőket. ***VÁLASSZUK KI EGYÜTT AZ ÖNNEK LEGMEGFELELŐBB AJÁNLATOT! BANKI SORBAN ÁLLÁS NÉLKÜL! Az energetikai tanúsítvány készítése folyamatban van, amint rendelkezésre áll, úgy azzal a hirdetés frissítésre kerül. Referencia szám: M317862-HI

E-mail küldése a hirdetőnek

Hibás hirdetés bejelentése

Sikeres elküldtük a hiba bejelentést.

Hirdető adatai

Vas Edit
E-mail cím: edit.vas@otpip.hu
Telefonszám: +36-70-402-4029
OTPip
Hirdetés feladója: Ingatlaniroda
Ingatlaniroda: OTPip
E-mail cím: csongrad@otpip.hu
Telefonszám: +36704550993

Képek



Térkép


Ajánlott ingatlanok

Családi ház

Eladó Ház, Abony

Keresés azonosító alapján: HI-2467888
  • Abony
  • Alapterület: 146 m²
  • Telekterület: 850 m²
  • Ár: 59 150 000 Ft (164 763 €)
  • Feltöltés dátuma: 2025.08.31.
  •  
Családi ház

Eladó Ház, Badacsonytomaj

Keresés azonosító alapján: HI-2267840
  • Badacsonytomaj
  • Alapterület: 104 m²
  • Telekterület: 4 619 m²
  • Ár: 95 000 000 Ft (264 624 €)
  • Feltöltés dátuma: 2024.07.29.
  •  
Családi ház

Eladó Ház, Szentes

Keresés azonosító alapján: HI-2550780
  • Szentes
  • Alapterület: 174 m²
  • Telekterület: 595 m²
  • Ár: 47 000 000 Ft (130 919 €)
  • Feltöltés dátuma: 2026.03.15.
  •  
Családi ház

Eladó Ház, Dévaványa

Keresés azonosító alapján: HI-2507641
  • Dévaványa
  • Alapterület: 116 m²
  • Telekterület: 691 m²
  • Ár: 21 700 000 Ft (60 446 €)
  • Feltöltés dátuma: 2025.11.30.
  •  
Facebook
Blogger
Twitter
Tweets by hasznaltingatla
Flickr