Eladó Ház, Mezőkövesd

Ingatlan azonosító: HI-2529259

Borsod-Abaúj-Zemplén megye - Mezőkövesd, Családi ház


27 000 000 Ft (76 056 €)

  • Hirdetés feladója: Ingatlaniroda
  • Pontos cím: Mezőkövesd
  • Típus: Eladó
  • Belső irodai azonosító: M321415-5138529
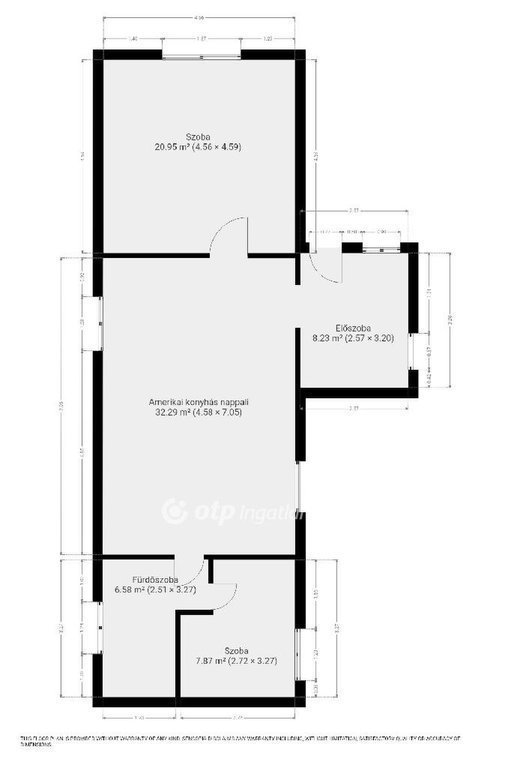
  • Alapterület: 76 m²
  • Telekterület: 322 m² ( 90 négyszögöl )
  • Egész szobák száma (12 m² felett): 1 db
  • Félszobák száma (6-12 m² között): 1 db
  • Ingatlan állapota: jó állapotú
  • Komfort: összkomfortos
  • Fűtés: gáz (konvektor)
  • Pince: nincs
  • Akadálymentesített: nincs
  • Napelem van?: nincs
  • Légkondicionáló: nincs

Leírás

Mezőkövesden kínálok megvételre egy 76 négyzetméteres családi házat, amely a méretéhez képest kifejezetten tágas belső terekkel rendelkezik. Az ingatlan egyik legnagyobb előnye a 32 négyzetméteres, amerikai konyhás nappali, amely világos, jól használható életteret biztosít a mindennapokhoz. A ház egy szobával és egy félszobával rendelkezik, így ideális választás lehet egy kisebb család vagy pár számára. A villamos és vízhálózat felújításra került, az ingatlan belső falai újravakolásra kerültek, jelenleg már csak a végső színezés van hátra. A nyílászárók műanyag kivitelűek. A burkolás félkész állapotban van, így az új tulajdonos még saját ízlése szerint fejezheti be. Összességében egy jó állapotú, azonnal költözhető családi házról van szó, amely kisebb befejező munkák után teljes értékű otthonná válik. OTP Banki hátterünknek köszönhetően finanszírozási igényekben (pl. Otthon Start Program, Babaváró, Falusi CSOK, CSOK Plusz, Lakáshitel, Személyi kölcsön stb.), illetve biztosítások tekintetében is díjmentesen, soron kívüli ügyintézéssel segítem ügyfeleim! Referenciaszám: M321415

E-mail küldése a hirdetőnek

Hibás hirdetés bejelentése

Sikeres elküldtük a hiba bejelentést.

Hirdető adatai

Pallagi István János
E-mail cím: pallagi.istvan.janos@otpip.hu
Telefonszám: +36203888162
OTPip
Hirdetés feladója: Ingatlaniroda
Ingatlaniroda: OTPip
E-mail cím: eger@otpip.hu
Telefonszám: +36-70-377-2977

Képek



Térkép


Ajánlott ingatlanok

Családi ház

Eladó Ház, Eger

Keresés azonosító alapján: HI-2529254
  • Eger
  • Alapterület: 120 m²
  • Telekterület: 244 m²
  • Ár: 89 900 000 Ft (253 239 €)
  • Feltöltés dátuma: 2026.02.03.
  •  
Családi ház

Eladó Ház, Kerecsend

Keresés azonosító alapján: HI-2529253
  • Kerecsend
  • Alapterület: 97 m²
  • Telekterület: 1 898 m²
  • Ár: 37 000 000 Ft (104 225 €)
  • Feltöltés dátuma: 2026.02.03.
  •  
Családi ház

Eladó Ház, Kerecsend

Keresés azonosító alapján: HI-2386936
  • Kerecsend
  • Alapterület: 70 m²
  • Telekterület: 2 059 m²
  • Ár: 17 000 000 Ft (47 887 €)
  • Feltöltés dátuma: 2025.03.12.
  •  
Családi ház

Eladó Ház, Egerszalók

Keresés azonosító alapján: HI-2390147
  • Egerszalók
  • Alapterület: 330 m²
  • Telekterület: 1 065 m²
  • Ár: 120 000 000 Ft (338 028 €)
  • Feltöltés dátuma: 2025.03.18.
  • klímás
Facebook
Blogger
Twitter
Tweets by hasznaltingatla
Flickr