Eladó Ház, Miskolc

Ingatlan azonosító: HI-2534441

Borsod-Abaúj-Zemplén megye - Miskolc, Családi ház


79 000 000 Ft (208 995 €)

  • Hirdetés feladója: Ingatlaniroda
  • Pontos cím: Miskolc
  • Típus: Eladó
  • Belső irodai azonosító: M320857-5143563
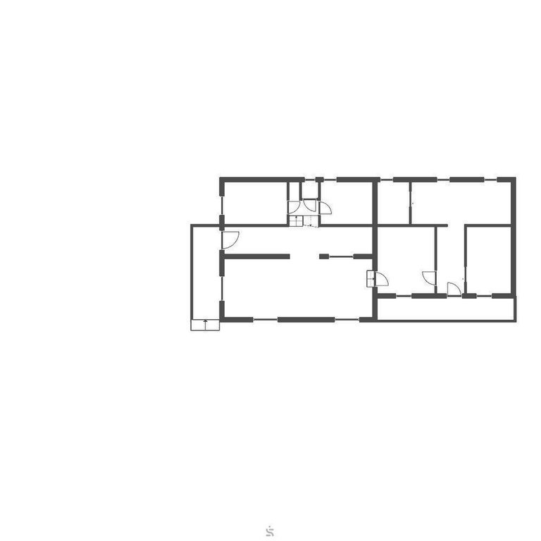
  • Alapterület: 157 m²
  • Telekterület: 1 959 m² ( 545 négyszögöl )
  • Építés éve: 2002
  • Egész szobák száma (12 m² felett): 4 db
  • Félszobák száma (6-12 m² között): 1 db
  • Ingatlan állapota: jó állapotú
  • Komfort: összkomfortos
  • Fűtés: egyéb kazán
  • Pince: nincs
  • Akadálymentesített: nincs
  • Napelem van?: nincs
  • Légkondicionáló: nincs

Leírás

Eladásra kínálok Miskolcon az Egyetem közelében egy 2002-ben épült, 157 m2-es, 2 szintes, B 38-as téglából készült családi házat 1959 m2-es telken. Homlokzati szigetelés 10 cm. Alumínium és műanyag nyílászárók kerültek beépítésre. Az ingatlan statikailag kiváló állapotnak örvend, villamoshálózata réz, vízhálózata műanyag, szennyvíz elvezetése derítős. A ház melegét egy pellet tüzelésű és egy vegyestüzelésű kazán biztosítja radiátorokon keresztül. 3 db 3,5 kw klíma járul hozzá az otthon kényelméhez, mely kellemesen lehűti a ház egészét. A ház tetőszerkezete jó állapotú, a cserépfedés nem igényel cserét. Az ingatlan ipari árammal ellátott, ami alkalmassá teszi nagyobb teljesítményű berendezések használatára is. Zárható garázs tartozik hozzá, a melegvizet villanybojler biztosítja, így a ház jelenlegi állapotban használható, komolyabb azonnali beruházás nélkül. Az ingatlan elhelyezkedése és az udvar adottságai miatt az ingatlan sokrétűen alakítható. Amennyiben felkeltette érdeklődését az ingatlan jöjjön el és győződjön meg személyesen is a leírtakról! Ingatlanirodánk ügyvédi háttérrel, CSOK, babaváró hitel, valamint kamatkedvezményes hitel ügyintézésével támogatja ügyfelei ingatlanvásárlását! Kérem érdeklődéskor hivatkozzon az M320857 számra.

E-mail küldése a hirdetőnek

Hibás hirdetés bejelentése

Sikeres elküldtük a hiba bejelentést.

Hirdető adatai

Pleszkó Anikó
E-mail cím: aniko.pleszko@otpip.hu
Telefonszám: +36703133848
OTPip
Hirdetés feladója: Ingatlaniroda
Ingatlaniroda: OTPip
E-mail cím: miskolc.szemere@otpip.hu
Telefonszám: +36-70-606-0062

Képek



Térkép


Ajánlott ingatlanok

Családi ház

Eladó Ház, Mezőkövesd

Keresés azonosító alapján: HI-2526964
  • Mezőkövesd Zsófia utca
  • Alapterület: 82 m²
  • Telekterület: 651 m²
  • Ár: 32 900 000 Ft (87 037 €)
  • Feltöltés dátuma: 2026.01.28.
  •  
Családi ház

Eladó Ház, Miskolc

Keresés azonosító alapján: HI-2526912
  • Miskolc
  • Alapterület: 96 m²
  • Telekterület: 800 m²
  • Ár: 69 000 000 Ft (182 540 €)
  • Feltöltés dátuma: 2026.01.28.
  •  
Családi ház

Eladó Ház, Aszaló

Keresés azonosító alapján: HI-2526928
  • Aszaló
  • Alapterület: 89 m²
  • Telekterület: 914 m²
  • Ár: 22 900 000 Ft (60 582 €)
  • Feltöltés dátuma: 2026.01.28.
  •  
Családi ház

Eladó Ház, Nyékládháza

Keresés azonosító alapján: HI-2526942
  • Nyékládháza
  • Alapterület: 87 m²
  • Telekterület: 757 m²
  • Ár: 24 900 000 Ft (65 873 €)
  • Feltöltés dátuma: 2026.01.28.
  •  
Facebook
Blogger
Twitter
Tweets by hasznaltingatla
Flickr