Eladó Ház, Miskolc

Ingatlan azonosító: HI-2515102

Borsod-Abaúj-Zemplén megye - Miskolc, Ikerház


36 900 000 Ft (96 850 €)

  • Hirdetés feladója: Ingatlaniroda
  • Pontos cím: Miskolc
  • Típus: Eladó
  • Belső irodai azonosító: M316993-5113738
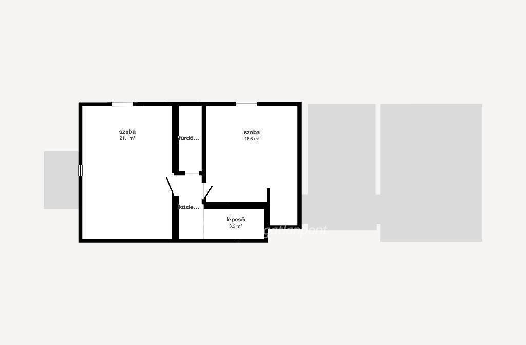
  • Alapterület: 114 m²
  • Telekterület: 450 m² ( 125 négyszögöl )
  • Építés éve: 1935
  • Egész szobák száma (12 m² felett): 3 db
  • Félszobák száma (6-12 m² között): 1 db
  • Ingatlan állapota: közepes állapotú
  • Komfort: összkomfortos
  • Fűtés: egyéb kazán
  • Pince: nincs
  • Akadálymentesített: nincs
  • Napelem van?: nincs
  • Légkondicionáló: nincs

Leírás

Álmai otthona várja! Eladó egy tágas, kétszintes ikerház Miskolcon! Kivételes lehetőség a nyugodt családi élethez! Eladó egy remek elosztású, 114 nm alapterületű ikerház, amely egy 200 nm-es, rendezett telken helyezkedik el. Az ingatlan ideális választás családok számára, akik a kényelmet és a praktikus megoldásokat egyaránt nagyra értékelik. Főbb jellemzők: - alapterület: 114 nm - telekméret: 200 nm - szobák száma: 3+1 tágas és jól pakolható szoba - 2 szint - fürdőszoba: amelyben kényelmesen elfér a kád és a zuhanyfülke, valamint a WC is itt található - építés módja: tégla falazat, cserépfedéssel - nyílászárók: korszerű műanyag ablakok és ajtók, amelyek garantálják a kiváló hőszigetelést - fűtés: a meleget gazdaságos gáz-kondenzációs kazán és egy alternatív vegyes tüzelésű kazán biztosítja, lemez radiátorokon keresztül - meleg víz: villanybojler felel a meleg víz- ellátásért Praktikus megoldások: -az ingatlan egyik nagy előnye a funkcionális elrendezés, a kazánház és a hozzátartozó tároló helyiség egyaránt megközelíthető a házból és az udvar felől is, megkönnyítve a pakolást és a karbantartást. Udvar és környezet: -rendezett, privát udvar tökéletes helyszínt biztosít a pihenéshez és a kikapcsolódáshoz. Itt található: - 1 kiépített szalonnasütő hely a baráti és családi összejövetelekhez - 1 praktikus kerti tároló - 1 stabil kutya kennel a kedvencek számára Elhelyezkedés: -az ikerház Miskolc, csendes, de jól megközelíthető részén található, közel a szükséges infrastruktúrákhoz (boltok, tömegközlekedés, stb.) Ideális otthon: ez a ház készen áll arra, hogy az Ön és családja új otthona legyen. A két fűtési módszernek köszönhetően, a rezsi kordában tartható, a praktikus udvari kiegészítők pedig a mindennapi kényelmet szolgálják. Ne maradjon le erről a lehetőségről. Amennyiben a hirdetés felkeltette érdeklődését, keressen bizalommal a megadott elérhetőségeken, a megtekintés egyeztetés céljából. OTP Banki hátterünknek köszönhetően finanszírozási igényekben (pl. Otthon Start Hitelprogram, Babaváró, Falusi CSOK, CSOK Plusz, Lakáshitel, Személyi kölcsön stb.), illetve biztosítások tekintetében is díjmentesen, soron kívüli ügyintézéssel segítem ügyfeleim! Az adásvételi szerződés megkötéséhez igény szerint megbízható ügyvédi közreműködést biztosítunk és segítséget nyújtunk az adásvételhez kapcsolódó ügyek intézéséhez. Referenciaszám: M316993 Referencia szám: M316993

E-mail küldése a hirdetőnek

Hibás hirdetés bejelentése

Sikeres elküldtük a hiba bejelentést.

Hirdető adatai

Piskóti Tibor Lajos
E-mail cím: tibor.lajos.piskoti@otpip.hu
Telefonszám: +36-70-322-2946
OTPip
Hirdetés feladója: Ingatlaniroda
Ingatlaniroda: OTPip
E-mail cím: miskolc.szemere@otpip.hu
Telefonszám: +36-70-606-0062

Képek



Térkép


Ajánlott ingatlanok

Ikerház

Eladó Ház, Kistokaj

Keresés azonosító alapján: HI-2509672
  • Kistokaj Pacsirtás utca
  • Alapterület: 136 m²
  • Telekterület: 600 m²
  • Ár: 100 000 000 Ft (262 467 €)
  • Feltöltés dátuma: 2025.12.04.
  •  
Ikerház

Eladó Ház, Miskolc

Keresés azonosító alapján: HI-2510600
  • Miskolc Mester utca
  • Alapterület: 76 m²
  • Telekterület: 150 m²
  • Ár: 13 000 000 Ft (34 121 €)
  • Feltöltés dátuma: 2025.12.08.
  •  
Ikerház

Eladó Ház, Kistokaj

Keresés azonosító alapján: HI-2491116
  • Kistokaj Pacsirtás utca
  • Alapterület: 136 m²
  • Telekterület: 535 m²
  • Ár: 100 000 000 Ft (262 467 €)
  • Feltöltés dátuma: 2025.10.20.
  •  
Ikerház

Eladó Ház, Sajóivánka

Keresés azonosító alapján: HI-2403708
  • Sajóivánka Állomás utca
  • Alapterület: 120 m²
  • Telekterület: 1 738 m²
  • Ár: 37 500 000 Ft (98 425 €)
  • Feltöltés dátuma: 2025.04.16.
  •  
Facebook
Blogger
Twitter
Tweets by hasznaltingatla
Flickr