Eladó Ház, Mohács

Ingatlan azonosító: HI-2564426

Baranya megye - Mohács, Családi ház


88 000 000 Ft (241 758 €)

  • Hirdetés feladója: Ingatlaniroda
  • Pontos cím: Mohács
  • Típus: Eladó
  • Belső irodai azonosító: M326845-5208148
  • Alapterület: 116 m²
  • Telekterület: 369 m² ( 103 négyszögöl )
  • Építés éve: 1975
  • Egész szobák száma (12 m² felett): 3 db
  • Félszobák száma (6-12 m² között): 0 db
  • Ingatlan állapota: felújított
  • Komfort: összkomfortos
  • Fűtés: elektromos
  • Pince: nincs
  • Akadálymentesített: nincs
  • Napelem van?: nincs
  • Légkondicionáló: nincs

Leírás

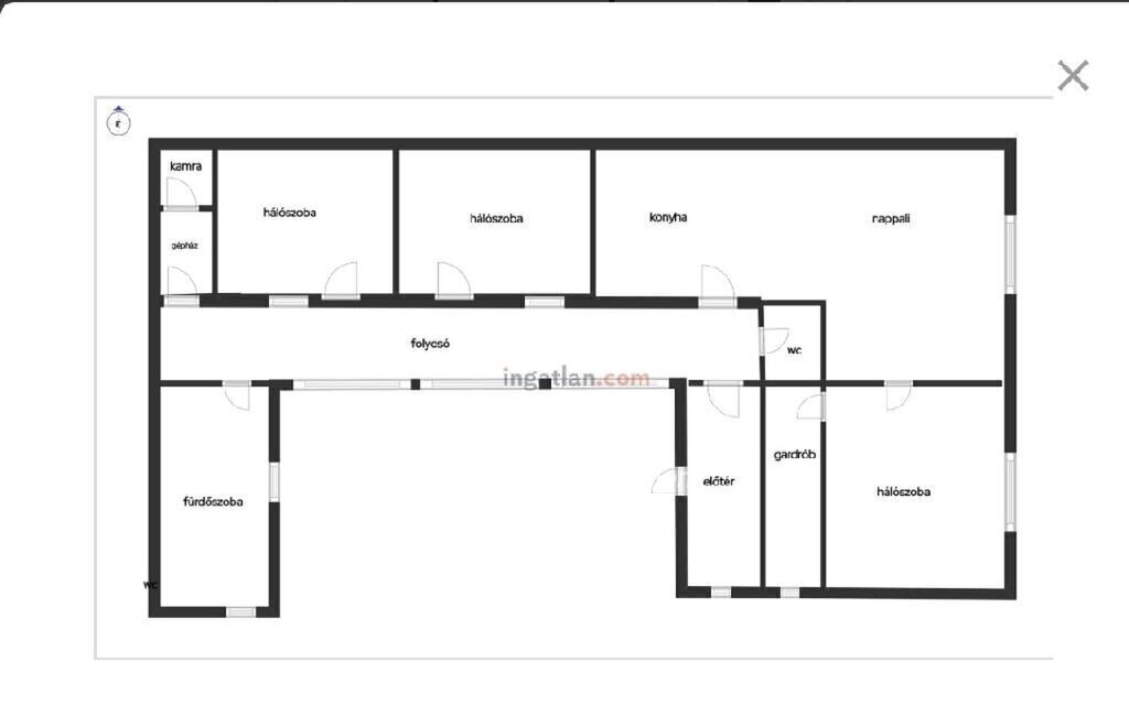
Teljeskörűen felújított, energiatakarékos családi ház eladó Mohács közkedvelt részén Mohács egyik közkedvelt, családbarát részén kínálunk megvételre egy 116 m2-es, 2020-ban teljeskörűen felújított családi házat, 369 m2-es telken. Az ingatlan kiváló választás azok számára, akik egy azonnal költözhető, korszerű, alacsony fenntartású otthont keresnek, felújítás és további ráfordítás nélkül. A ház praktikus, jól élhető elrendezésű: 3 külön nyíló szoba, amerikai konyhás nappali, külön gardrób, mosókonyha, valamint egy tágas fürdőszoba került kialakításra, ahol kád és zuhanyzó egyaránt rendelkezésre áll. A 2020-as teljes felújítás során az ingatlan 10 cm külső szigetelést kapott, emellett több korszerű, energiatakarékos műszaki megoldással is felszerelték. A ház rendelkezik napelemes rendszerrel, 5 db hűtő-fűtő klímával, vízteres kandallóval, valamint vízlágyító rendszerrel, amelyek jelentősen hozzájárulnak a kényelmes és gazdaságos fenntartáshoz. A házhoz első és hátsó fedett terasz is tartozik, így a kültéri pihenés és vendégfogadás is kényelmesen megoldott. A hátsó teraszon kialakított beépített munkapult és mosogató különösen praktikussá teszi a szabadtéri főzést, grillezést és családi összejöveteleket. A 369 m2-es kert jól használható, könnyen karbantartható, kellemes zöld környezetet biztosít, gyümölcsfákkal. Az ingatlan elhelyezkedése kifejezetten kedvező: iskola, óvoda, játszótér néhány perc sétával elérhető, így családosok számára is ideális választás. Egy igényesen felújított, korszerű és jól átgondolt otthon Mohács egyik kedvelt részén, amely azonnal költözhető állapotban várja új tulajdonosát.

E-mail küldése a hirdetőnek

Hibás hirdetés bejelentése

Sikeres elküldtük a hiba bejelentést.

Hirdető adatai

Markesz András
E-mail cím: andras.markesz@otpip.hu
Telefonszám: +36-20-535-8687
OTPip
Hirdetés feladója: Ingatlaniroda
Ingatlaniroda: OTPip
E-mail cím: jaszbereny@otpip.hu
Telefonszám: +36-70-393-4944

Képek



Térkép


Ajánlott ingatlanok

Családi ház

Eladó Ház, Hatvan

Keresés azonosító alapján: HI-2496507
  • Hatvan
  • Alapterület: 187 m²
  • Telekterület: 1 777 m²
  • Ár: 67 900 000 Ft (186 538 €)
  • Feltöltés dátuma: 2025.10.31.
  •  
Családi ház

Eladó Ház, Kerepes

Keresés azonosító alapján: HI-2409164
  • Kerepes
  • Alapterület: 162 m²
  • Telekterület: 305 m²
  • Ár: 86 900 000 Ft (238 736 €)
  • Feltöltés dátuma: 2025.04.30.
  •  
Családi ház

Eladó Ház, Galgahévíz

Keresés azonosító alapján: HI-2564427
  • Galgahévíz
  • Alapterület: 101 m²
  • Telekterület: 474 m²
  • Ár: 38 000 000 Ft (104 396 €)
  • Feltöltés dátuma: 2026.04.23.
  •  
Családi ház

Eladó Ház, Hévízgyörk

Keresés azonosító alapján: HI-2466163
  • Hévízgyörk
  • Alapterület: 82 m²
  • Telekterület: 350 m²
  • Ár: 18 500 000 Ft (50 824 €)
  • Feltöltés dátuma: 2025.08.27.
  •  
Facebook
Blogger
Twitter
Tweets by hasznaltingatla
Flickr