Eladó ház, Monor

Ingatlan azonosító: HI-2552686

Pest megye - Monor, Ikerház


109 999 000 Ft (309 856 €)

  • Hirdetés feladója: Ingatlaniroda
  • Pontos cím: Monor
  • Típus: Eladó
  • Belső irodai azonosító: HZ036979-5180288
  • Alapterület: 106 m²
  • Telekterület: 522 m² ( 145 négyszögöl )
  • Építés éve: 2026
  • Egész szobák száma (12 m² felett): 4 db
  • Félszobák száma (6-12 m² között): 0 db
  • Fürdőszobák száma: 2 db
  • Ingatlan állapota: új építésű
  • Fűtés: egyéb
  • Pince: nincs
  • Akadálymentesített: nincs
  • Napelem van?: nincs
  • Légkondicionáló: nincs

Leírás

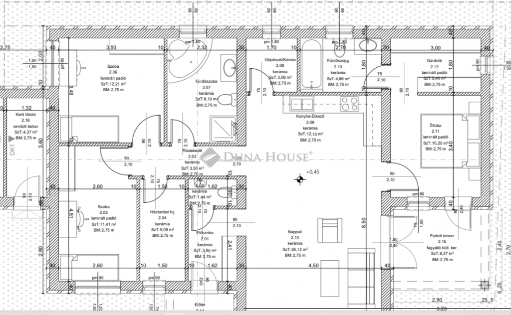
Új építésű, nappali + 3 szobás otthon Monoron kertkapcsolattal, 2 fürdőszobával! Monoron, a Temesvári út környékén kínálunk megvételre egy kétlakásos, modern új építésű projekt egyik lakását, amely ideális választás családok számára. A 106,59 m²-es lakás átgondolt alaprajzzal és tágas terekkel készül, ahol a nappalikonyhaétkező egy légtérben helyezkedik el, közvetlen terasz- és kertkapcsolattal, így tökéletes helyszín a mindennapi családi élethez vagy baráti összejövetelekhez. Az ingatlan nappali + 3 külön nyíló szobával rendelkezik, így akár szülői háló, két gyerekszoba és dolgozószoba kialakítására is ideális. Főbb jellemzők 106,59 m² lakótér nappali + 3 szoba 2 fürdőszoba + külön WC gardrób és háztartási helyiség fedett terasz: 13,05 m² kerti tároló: 4,37 m² 2 autó számára parkolás telken belül Modern műszaki tartalom hőszivattyús fűtési rendszer padlófűtés 2 db klíma minden lakáshoz 6 000 Ft/m² értékű burkolat választható 60 000 Ft értékű beltéri ajtók napelem telepítés lehetősége (kb. 5 kWp / lakás) Igény esetén medencével is kérhető a kert kialakítása. Környezet A projekt egy 1045 m²-es telken, nyugodt családi házas környezetben épül, ahol mindössze 2 lakás kerül kialakításra, így biztosított a csendes, privát lakókörnyezet. Referencia ház megtekinthető, így a kivitelezés minősége személyesen is megismerhető. Finanszírozás A vásárlás a jelenlegi konstrukció szerint 10% önerővel is tervezhető, valamint Otthon Start hitel igénybevételével Érdeklődés Kérésre küldöm: alaprajzot részletes műszaki tartalmat Érd: Giczi Andrea Tel: 06-20-917-8625 E-mail: giczi.andrea@dh.hu Referencia szám: HZ036979

E-mail küldése a hirdetőnek

Hibás hirdetés bejelentése

Sikeres elküldtük a hiba bejelentést.

Hirdető adatai

Giczi Andrea
E-mail cím: giczi.andrea@dh.hu
Telefonszám: +36209178625
Duna House
Hirdetés feladója: Ingatlaniroda
Ingatlaniroda: Duna House
E-mail cím: gyomro@dh.hu
Telefonszám: +3629263520

Képek



Térkép


Ajánlott ingatlanok

Ikerház

Eladó ház, Monorierdő

Keresés azonosító alapján: HI-2552683
  • Monorierdő
  • Alapterület: 83 m²
  • Telekterület: 672 m²
  • Ár: 84 900 000 Ft (239 155 €)
  • Feltöltés dátuma: 2026.03.21.
  •  
Ikerház

Eladó ház, Nyáregyháza

Keresés azonosító alapján: HI-2559661
  • Nyáregyháza
  • Alapterület: 97 m²
  • Telekterület: 540 m²
  • Ár: 82 900 000 Ft (233 521 €)
  • Feltöltés dátuma: 2026.04.10.
  •  
Ikerház

Eladó ház, Kóka

Keresés azonosító alapján: HI-2552684
  • Kóka
  • Alapterület: 91 m²
  • Telekterület: 956 m²
  • Ár: 57 900 000 Ft (163 099 €)
  • Feltöltés dátuma: 2026.03.21.
  •  
Ikerház

Eladó ház, Nyáregyháza

Keresés azonosító alapján: HI-2558903
  • Nyáregyháza
  • Alapterület: 105 m²
  • Telekterület: 540 m²
  • Ár: 84 000 000 Ft (236 620 €)
  • Feltöltés dátuma: 2026.04.08.
  •  
Facebook
Blogger
Twitter
Tweets by hasznaltingatla
Flickr