Eladó ház, Monor

Ingatlan azonosító: HI-2552701

Pest megye - Monor, Ikerház


80 000 000 Ft (204 082 €)

  • Hirdetés feladója: Ingatlaniroda
  • Pontos cím: Monor Arany János utca
  • Típus: Eladó
  • Belső irodai azonosító: HZ084376-5179744
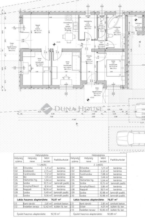
  • Alapterület: 76 m²
  • Telekterület: 282 m² ( 78 négyszögöl )
  • Építés éve: 2026
  • Egész szobák száma (12 m² felett): 4 db
  • Félszobák száma (6-12 m² között): 0 db
  • Fürdőszobák száma: 1 db
  • Ingatlan állapota: új építésű
  • Komfort: összkomfortos
  • Fűtés: egyéb
  • Pince: nincs
  • Akadálymentesített: van
  • Napelem van?: nincs
  • Légkondicionáló: van

Leírás

Monoron eladó, újépítésű, 3 szoba + nappalis, tároló kapcsolatos ikerházfél, hőszivattyús fűtéssel, kb 300 nm-es kerttel! Belső nettó hasznos élhető tér 76 nm! Várható átadás : 2026.10 hó Önálló helyrajzi számmal fog rendelkezni, nem osztatlan közös tulajdon, társasház alapító lesz. 10 % önerővel szerződhető! Helyiségeit tekintve nagyon jó elosztással rendelkezik, alábbiakban sorolom fel négyzetméterek megjelölésével: - 3 önálló bejáratú szoba (10.15 nm, 10.98 nm, 10.98 nm) - teraszkapcsolatos nappali + konyha és étkező (21.97 nm) - előszoba (5.11 nm) - közlekedő (3.32 nm) - fürdőszoba (7.08 nm) - wc (1.44 nm) - háztartási helyiség (5 nm) - kerti tároló, itt ér össze a két épület (2.81 nm) - nyitott terasz (10 nm) Műszaki leírás: - Fischer hőszivattyús fűtés, padlófűtéssel - burkolat meleg 8000 Ft / nm, hideg: 10 000 ft / nm - 10 cm hőszigetelés grafitos - 30 cm üveggyapot tető hőszigetelés - vakolás: belső: alapvakolat + simítóvakolat - lábazaton 8 cm XPS hőszigetelés - nyílászárók: típus műanyag szerkezetek, fehér színben, 3 rtg.hőszig.üveggel - festés: belsőben páraáteresztő falfestékkel, színezve igény szerint - elektromos nagykapu - utcafronton épített, igényes kerítés - H tarifa Az ár kulcsrakészen értendő! A házakat önerőből építi! Az építő cég anyagilag biztos talpakon áll! Monoron megtalálható: Pékség, Cukrászda, Gyógyszertár, Posta, Vendéglő, Könyvtár, Zöldséges, Rossmann, Dm, Élelmiszer boltok, Okmányiroda, Bankok(Takarék,Otp, Budapest Bank), Piac, Bölcsöde, Óvoda, Iskola, Gimnázium,Uszoda, Elektromos autó töltő. Monor a dél-kelet pesti agglomerációban, a dinamikusan fejlődő főváros és vonzáskörzete, a jó minőségű lakókörnyezetet egyre színvonalasabb közszolgáltatásokkal is biztosító, egyúttal a befektetők számára is vonzó település. Monor olyan város, ahol jó élni, ahol jó befektetni. Kiváló közlekedésének köszönhetően az ország bármely pontja könnyen elérhető Monorról. Amennyiben felkeltettem érdeklődésed keress nyugodtan, és gyere, nézd meg velem az ingatlant! Hitel ügyintézés, eladás és vétel teljes körű ügyintézése, ingyenes tanácsadás, értékbecslés, megbízható ügyvédi háttér biztosítása. Hitellel vásárlás esetén bankfüggetlen és DÍJMENTES hiteltanácsadó közreműködését biztosítjuk, aki a teljes folyamaton végigkíséri Önt. Az adásvétel biztonságos és gördülékeny bonyolítása érdekében tapasztalt ingatlan szakjogászaink szolgáltatását is ajánlom. Referencia szám: HZ084376

E-mail küldése a hirdetőnek

Hibás hirdetés bejelentése

Sikeres elküldtük a hiba bejelentést.

Hirdető adatai

Takácsné Domján Adrienn
E-mail cím: takacsne.domjan.adrienn@dh.hu
Telefonszám: +36703077503
Duna House
Hirdetés feladója: Ingatlaniroda
Ingatlaniroda: Duna House
E-mail cím: kispest@dh.hu
Telefonszám: +36703077503

Képek



Térkép


Ajánlott ingatlanok

Ikerház

Eladó ház, Budapest 16. ker.

Keresés azonosító alapján: HI-2485936
  • Budapest XVI. Kendermag utca
  • Alapterület: 150 m²
  • Telekterület: 312 m²
  • Ár: 88 000 000 Ft (224 490 €)
  • Feltöltés dátuma: 2025.10.04.
  •  
Ikerház

Eladó ház, Budapest 15. ker.

Keresés azonosító alapján: HI-2485179
  • Budapest XV. Őrjárat utca
  • Alapterület: 82 m²
  • Telekterület: 531 m²
  • Ár: 109 000 000 Ft (278 061 €)
  • Feltöltés dátuma: 2025.10.03.
  •  
Ikerház

Eladó ház, Budapest 17. ker.

Keresés azonosító alapján: HI-2487152
  • Budapest XVII. Nógrádkövesd utca
  • Alapterület: 152 m²
  • Telekterület: 410 m²
  • Ár: 145 000 000 Ft (369 898 €)
  • Feltöltés dátuma: 2025.10.08.
  •  
Ikerház

Eladó ház, Budapest 18. ker.

Keresés azonosító alapján: HI-2485173
  • Budapest XVIII. Sólyom utca
  • Alapterület: 40 m²
  • Telekterület: 709 m²
  • Ár: 49 900 000 Ft (127 296 €)
  • Feltöltés dátuma: 2025.10.03.
  • klímás
Facebook
Blogger
Twitter
Tweets by hasznaltingatla
Flickr