Eladó Ház, Monor

Ingatlan azonosító: HI-2543966

Pest megye - Monor, Családi ház


59 900 000 Ft (168 732 €)

  • Hirdetés feladója: Ingatlaniroda
  • Pontos cím: Monor
  • Típus: Eladó
  • Belső irodai azonosító: M316323-5079360
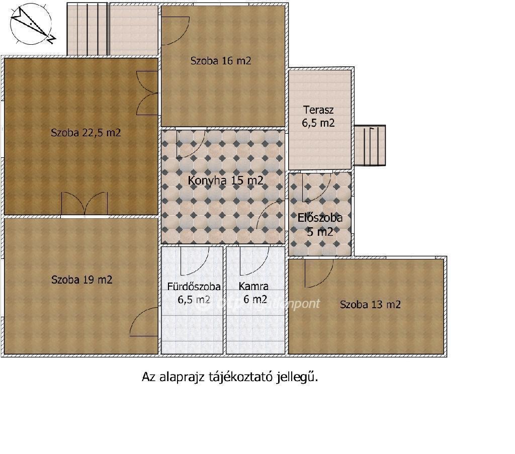
  • Alapterület: 79 m²
  • Telekterület: 1 102 m² ( 306 négyszögöl )
  • Építés éve: 1970
  • Egész szobák száma (12 m² felett): 3 db
  • Félszobák száma (6-12 m² között): 0 db
  • Fürdőszobák száma: 1 db
  • Ingatlan állapota: felújítandó
  • Komfort: összkomfortos
  • Fűtés: gáz (konvektor)
  • Pince: nincs
  • Akadálymentesített: nincs
  • Napelem van?: nincs
  • Légkondicionáló: nincs

Leírás

***Eladó tehermentes, 1/1-es tulajdonú családi ház Monor központi, mégis csendes részén ? 1102 nm- es kerttel!*** Monor központi részén, nyugodt kertvárosi környezetben eladó egy 1970 környékén épült, összközműves, tehermentes, 1/1 tulajdonú családi ház, amely akár rövid határidővel költözhető. A nettó 79nm-es otthon egy gondozott, gyümölcsfákkal teli telken fekszik. A házban három világos, nagyméretű szoba, konyha, kamra és fürdőszoba található, de további bővítésre is van lehetőség. A telken több melléképület is helyet kapott, amelyek alkalmasak tárolásra, műhelynek vagy hobbihelyiségnek, illetve egy 13nm-es garázs is megtalalható. A 40 cm vastag vegyes falazatból épült ingatlan fűtését gázkonvektorok, melegvíz-ellátását villanybojler biztosítja. A ház közepes állapotú, igény szerint felújítandó. de akár költözhető is. Az infrastruktúra kiváló, kb. 8 percre található a vasútállomás, de számos távolsági busz is elérhető távolságban van. Hitelezhető, 3%-os Otthon Start hitelre is! Teljeskörű hitelügyintézéssel, ügyvédi háttérrel állunk rendelkezésére! Kérdésével a nap bármely szakában forduljon hozzám bizalommal. M316323 Az energetikai tanúsítvány készítése folyamatban van, amint rendelkezésre áll, úgy azzal a hirdetés frissítésre kerül. Referencia szám: M316323

E-mail küldése a hirdetőnek

Hibás hirdetés bejelentése

Sikeres elküldtük a hiba bejelentést.

Hirdető adatai

Dsugán Béla
E-mail cím: dsugan.bela@otpip.hu
Telefonszám: +36204610818
OTPip
Hirdetés feladója: Ingatlaniroda
Ingatlaniroda: OTPip
E-mail cím: dunaharaszti@otpip.hu
Telefonszám: +36308500726

Képek



Térkép


Ajánlott ingatlanok

Családi ház

Eladó Ház, Üllő

Keresés azonosító alapján: HI-2543921
  • Üllő
  • Alapterület: 116 m²
  • Telekterület: 522 m²
  • Ár: 94 500 000 Ft (266 197 €)
  • Feltöltés dátuma: 2026.03.02.
  • klímás
Családi ház

Eladó Ház, Üllő

Keresés azonosító alapján: HI-2547009
  • Üllő
  • Alapterület: 103 m²
  • Telekterület: 1 050 m²
  • Ár: 95 000 000 Ft (267 606 €)
  • Feltöltés dátuma: 2026.03.05.
  • klímás
Családi ház

Eladó Ház, Alsónémedi

Keresés azonosító alapján: HI-2543965
  • Alsónémedi
  • Alapterület: 177 m²
  • Telekterület: 950 m²
  • Ár: 169 900 000 Ft (478 592 €)
  • Feltöltés dátuma: 2026.03.02.
  • klímás
Családi ház

Eladó Ház, Érd

Keresés azonosító alapján: HI-2552201
  • Érd
  • Alapterület: 72 m²
  • Telekterület: 560 m²
  • Ár: 49 500 000 Ft (139 437 €)
  • Feltöltés dátuma: 2026.03.19.
  •  
Facebook
Blogger
Twitter
Tweets by hasznaltingatla
Flickr