Eladó Ház, Nagyberény

Ingatlan azonosító: HI-2487221

Somogy megye - Nagyberény, Családi ház


55 000 000 Ft (140 306 €)

  • Hirdetés feladója: Ingatlaniroda
  • Pontos cím: Nagyberény
  • Típus: Eladó
  • Belső irodai azonosító: M314333-5057162
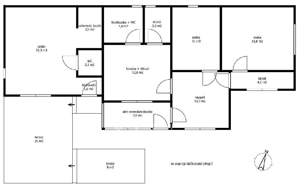
  • Alapterület: 116 m²
  • Telekterület: 1 723 m² ( 479 négyszögöl )
  • Építés éve: 1973
  • Egész szobák száma (12 m² felett): 4 db
  • Félszobák száma (6-12 m² között): 0 db
  • Ingatlan állapota: közepes állapotú
  • Komfort: összkomfortos
  • Fűtés: gáz (cirko)
  • Pince: nincs
  • Akadálymentesített: nincs
  • Napelem van?: nincs
  • Légkondicionáló: nincs

Leírás

Somogy megye, Nagyberény, 116 m2 családi ház, 1,723 m2 telek eladó. Az ingatlan a település lakóövezetében helyezkedik el, csendes, nyugodt környezetben. A 3 szobás, 74 m2-es családi házhoz tartozik egy garázsból átalakított 28 m2-es, önálló lakóingatlanként nyilvántartott szoba fürdőszobával, WC-vel. A lakóteret két, összesen 28 m2-nyi terasz növeli, melyek a kertbe vezetnek. A ház fűtését és melegvíz ellátását cirko gázkazán biztosítja. A tágas belső terek átalakíthatók, a két külön lakóingatlan akár össze is nyitható, így nagy vagy akár többgenerációs családnak is kiválóan alkalmas. Az ingatlanhoz tartozó pince, illetve a tetőtér további lehetőségeket nyújt, a szobává alakított garázs fölött pedig panorámás tetőterasz teheti még értékesebbé az ingatlant. Parkolni a zárt udvaron, valamint közterületen ingyenesen lehet. Az udvart művelhető föld egészíti ki, így akár egy kisebb, önellátó gazdaság vagy falusi vendéglátás is működtethető. Az állandó lakhatáson kívül kiváló lehetőség nyaralásra vagy befektetési céllal kiadásra is. Az ingatlan hitelképes, igény esetén egyedi partnerkedvezményt biztosítunk, illetve a település besorolása alapján falusi CSOK is igényelhető. Otthon Start Hitelprogram. Bővebb információért keressen telefonon! Referencia szám: M314333

E-mail küldése a hirdetőnek

Hibás hirdetés bejelentése

Sikeres elküldtük a hiba bejelentést.

Hirdető adatai

Zsitnyányi Ágnes
E-mail cím: agnes.zsitnyanyi@otpip.hu
Telefonszám: +36-70-316-3864
OTPip
Hirdetés feladója: Ingatlaniroda
Ingatlaniroda: OTPip
E-mail cím: siofok.sio@otpip.hu
Telefonszám: +36703163864

Képek



Térkép


Ajánlott ingatlanok

Családi ház

Eladó Ház, Siófok

Keresés azonosító alapján: HI-2396049
  • Siófok
  • Alapterület: 197 m²
  • Telekterület: 370 m²
  • Ár: 198 000 000 Ft (505 102 €)
  • Feltöltés dátuma: 2025.03.30.
  •  
Családi ház

Eladó Ház, Balatonkenese

Keresés azonosító alapján: HI-2505920
  • Balatonkenese
  • Alapterület: 455 m²
  • Telekterület: 1 482 m²
  • Ár: 319 000 000 Ft (813 776 €)
  • Feltöltés dátuma: 2025.11.25.
  •  
Családi ház

Eladó Ház, Balatonfenyves

Keresés azonosító alapján: HI-2549916
  • Balatonfenyves
  • Alapterület: 285 m²
  • Telekterület: 2 090 m²
  • Ár: 369 000 000 Ft (941 327 €)
  • Feltöltés dátuma: 2026.03.13.
  •  
Családi ház

Eladó Ház, Siófok

Keresés azonosító alapján: HI-2401056
  • Siófok
  • Alapterület: 217 m²
  • Telekterület: 715 m²
  • Ár: 259 900 000 Ft (663 010 €)
  • Feltöltés dátuma: 2025.04.09.
  •  
Facebook
Blogger
Twitter
Tweets by hasznaltingatla
Flickr