Új építésű ikerház eladó Nagycenken! (A épület)

Ingatlan azonosító: HI-2479637

Győr-Moson-Sopron megye - Nagycenk, Ikerház


89 500 000 Ft (228 316 €)

  • Hirdetés feladója: Ingatlaniroda
  • Pontos cím: Nagycenk
  • Típus: Eladó
  • Belső irodai azonosító: HZ013353-5043533
  • Alapterület: 102 m²
  • Telekterület: 378 m² ( 105 négyszögöl )
  • Egész szobák száma (12 m² felett): 4 db
  • Félszobák száma (6-12 m² között): 0 db
  • Fürdőszobák száma: 1 db
  • Ingatlan állapota: új építésű
  • Komfort: összkomfortos
  • Fűtés: gáz (cirko)
  • Pince: nincs
  • Akadálymentesített: nincs
  • Energiatanúsítvány: A+
  • Napelem van?: nincs
  • Légkondicionáló: nincs

Leírás

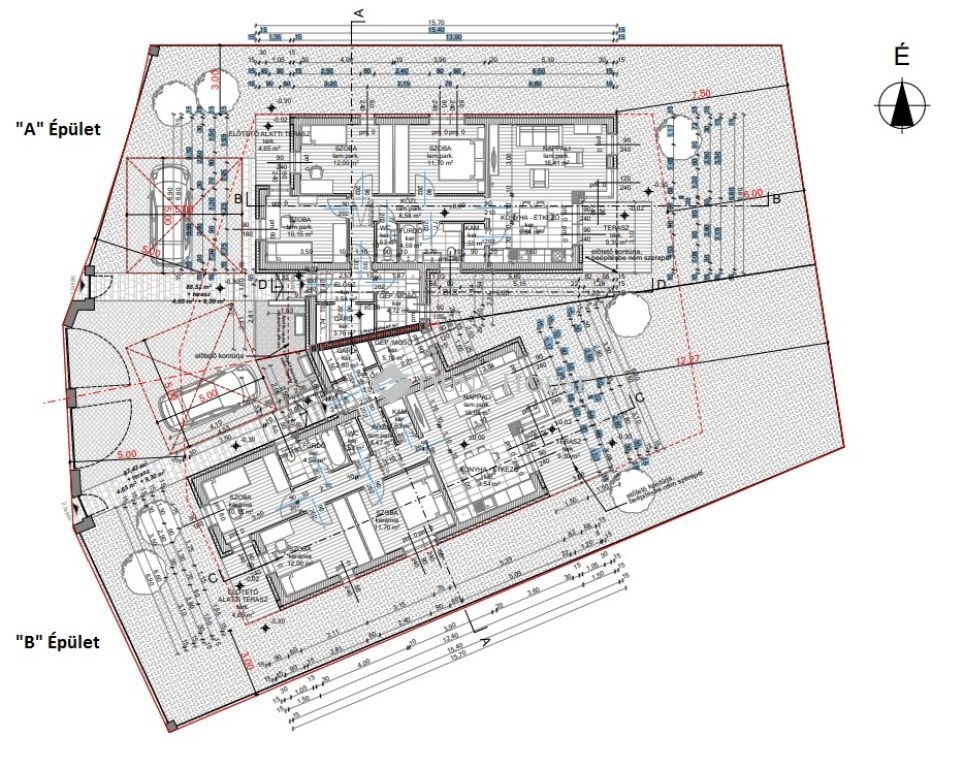
Nagycenken a Széchenyi Village-ban eladó új építésű ikerház A épülete! Mérete: 90 m2 + első terasz 4,65 m2 + hátsó terasz 9,3 m2 Az építkezés már tart, és folyamatosan halad. Jellemzői: - amerikai nappali konyha étkező - három önálló szoba - fürdő WC -vel - külön WC - gépészet/mosókonyha - előszoba - közlekedő - gardrób szoba - kamra - elöl és hátul terasz - térburkolt gk.beálló, kerítés - választható burkolatok, szaniterek, belső ajtók, stb. A ház fűtése: kondenzációs kombi gázkazánnal, padlófűtéssel, vagy hőszivattyú (feláras) Ablakok: 3 rétegű fehér műanyag nyílászárók. Részletes műszaki leírást szívesen küldök, komoly érdeklődés esetén. CSOK plusz akár 3 gyerekre alkalmas a ház! Nagycenk Soprontól kb.12km-re található. Az építés folyamatos. Várható befejezése 2026 január vége. A jobb oldali ház már eladva, a bal oldali még szabad. Kulcsrakész ár: 89,5MFt

E-mail küldése a hirdetőnek

Hibás hirdetés bejelentése

Sikeres elküldtük a hiba bejelentést.

Hirdető adatai

Schöll Nándor
E-mail cím: scholl.nandor@dh.hu
Telefonszám: +36705566444
Duna House
Hirdetés feladója: Ingatlaniroda
Ingatlaniroda: Duna House
E-mail cím: sopron@dh.hu
Telefonszám: +3699788698

Képek



Térkép


Ajánlott ingatlanok

Lakóövezeti

Sopron - Virágvölgyben eladó 955m2-es építési telek.

Keresés azonosító alapján: HI-2419204
  • Sopron
  • Telekterület: 955 m²
  • Ár: 34 990 000 Ft (89 260 €)
  • Feltöltés dátuma: 2025.05.16.
  •  
Tégla lakás

Sopron - Frankenburg úton az Egyetemhez közeli lakás eladó

Keresés azonosító alapján: HI-2390620
  • Sopron
  • Alapterület: 67 m²
  • Ár: 53 600 000 Ft (136 735 €)
  • Feltöltés dátuma: 2025.03.18.
  •  
Külterületi

Eladó telek, Sopron

Keresés azonosító alapján: HI-2419205
  • Sopron
  • Telekterület: 1 852 m²
  • Ár: 13 000 000 Ft (33 163 €)
  • Feltöltés dátuma: 2025.05.16.
  •  
Családi ház

Harkán nagy családi ház eladó

Keresés azonosító alapján: HI-2390613
  • Harka
  • Alapterület: 288 m²
  • Telekterület: 775 m²
  • Ár: 162 900 000 Ft (415 561 €)
  • Feltöltés dátuma: 2025.03.18.
  •  
Facebook
Blogger
Twitter
Tweets by hasznaltingatla
Flickr