Eladó Ház, Nagykálló

Ingatlan azonosító: HI-2545117

Szabolcs-Szatmár-Bereg megye - Nagykálló, Családi ház


27 000 000 Ft (73 770 €)

  • Hirdetés feladója: Ingatlaniroda
  • Pontos cím: Nagykálló
  • Típus: Eladó
  • Belső irodai azonosító: M322773-5162708
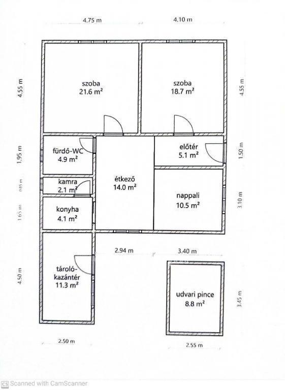
  • Alapterület: 90 m²
  • Telekterület: 306 m² ( 85 négyszögöl )
  • Építés éve: 1985
  • Egész szobák száma (12 m² felett): 2 db
  • Félszobák száma (6-12 m² között): 0 db
  • Ingatlan állapota: felújított
  • Komfort: összkomfortos
  • Fűtés: elektromos
  • Pince: nincs
  • Akadálymentesített: nincs
  • Napelem van?: nincs
  • Légkondicionáló: nincs

Leírás

Nagykálló központi részén eladásra kínálok egy 83 m2, kétszobás családi házat, amely egy 306 m2 telken helyezkedik el. Az ingatlan 2025-ben teljes körű felújításon esett át, ennek köszönhetően műszaki és esztétikai szempontból is korszerű, igényes állapotban várja új tulajdonosát. A ház belső kialakítása átgondolt és harmonikus: világos terek, kényelmes méretű szobák és élhető elrendezés jellemzi. Az otthon hangulata barátságos és letisztult, amely ideális életteret biztosít a nyugodt mindennapokhoz. A felújítás révén az ingatlan hosszú távon is biztonságos és kiszámítható választás. A telek mérete optimális: elegendő teret nyújt a privát pihenéshez, ugyanakkor könnyen fenntartható. Kiválóan alkalmas egy igényes kerti környezet, terasz vagy pihenősarok kialakítására. Elhelyezkedése külön értéket képvisel: a központ közelsége miatt az oktatási intézmények, gyógyszertár, üzletek és a legfontosabb szolgáltatások néhány percen belül elérhetők, így a mindennapi élet kényelmesen és gördülékenyen szervezhető. Ez az ingatlan ideális választás azok számára, akik felújított, jó adottságokkal rendelkező otthont keresnek központi környezetben. OTP Banki hátterünknek köszönhetően finanszírozási igényekben (pl. Otthon Start Hitelprogram, Babaváró, Falusi CSOK, CSOK Plusz, Lakáshitel, Személyi kölcsön stb.), illetve biztosítások tekintetében is díjmentesen, soron kívüli ügyintézéssel segítem ügyfeleim! Referenciaszám: M322118 Virtuális séta: https://my.matterport.com/show/?m=k1yk54resrxhmfrwfzu8g513d&views=0&mls=1

E-mail küldése a hirdetőnek

Hibás hirdetés bejelentése

Sikeres elküldtük a hiba bejelentést.

Hirdető adatai

Balázscsikné Hanzel Renáta
E-mail cím: renata.balazscsikne.hanzel@otpip.hu
Telefonszám: +36301673181
OTPip
Hirdetés feladója: Ingatlaniroda
Ingatlaniroda: OTPip
E-mail cím: nyiregyhaza.bocskai@otpip.hu
Telefonszám: +36706060062

Képek



Térkép


Ajánlott ingatlanok

Családi ház

Eladó Ház, Kállósemjén

Keresés azonosító alapján: HI-2550416
  • Kállósemjén
  • Alapterület: 67 m²
  • Telekterület: 1 134 m²
  • Ár: 28 500 000 Ft (77 869 €)
  • Feltöltés dátuma: 2026.03.14.
  •  
Családi ház

Eladó Ház, Kállósemjén

Keresés azonosító alapján: HI-2515070
  • Kállósemjén
  • Alapterület: 96 m²
  • Telekterület: 1 839 m²
  • Ár: 58 000 000 Ft (158 470 €)
  • Feltöltés dátuma: 2025.12.29.
  • klímás
Családi ház

Eladó Ház, Hajdúhadház

Keresés azonosító alapján: HI-2534897
  • Hajdúhadház
  • Alapterület: 120 m²
  • Telekterület: 856 m²
  • Ár: 69 900 000 Ft (190 984 €)
  • Feltöltés dátuma: 2026.02.11.
  • klímás
Családi ház

Eladó Ház, Csenger

Keresés azonosító alapján: HI-2515073
  • Csenger
  • Alapterület: 121 m²
  • Telekterület: 708 m²
  • Ár: 39 500 000 Ft (107 923 €)
  • Feltöltés dátuma: 2025.12.29.
  •  
Facebook
Blogger
Twitter
Tweets by hasznaltingatla
Flickr