Eladó Ház, Nagykőrös

Ingatlan azonosító: HI-2560045

Pest megye - Nagykőrös, Családi ház


33 000 000 Ft (90 659 €)

  • Hirdetés feladója: Ingatlaniroda
  • Pontos cím: Nagykőrös
  • Típus: Eladó
  • Belső irodai azonosító: M324854-5197041
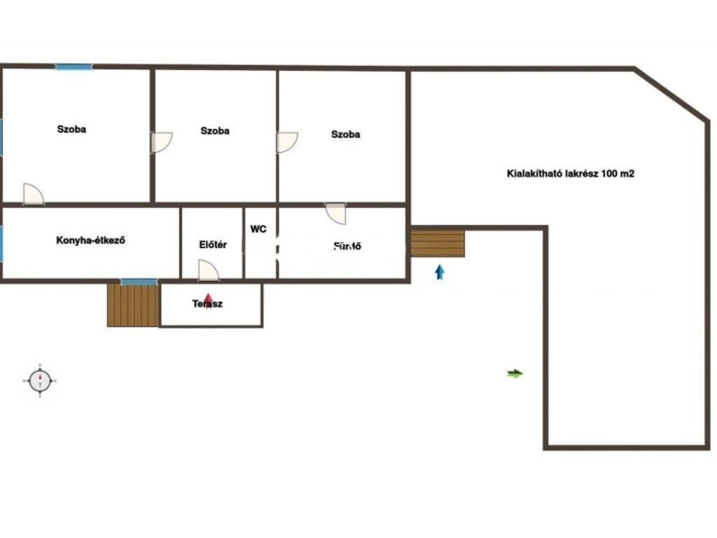
  • Alapterület: 100 m²
  • Telekterület: 459 m² ( 128 négyszögöl )
  • Építés éve: 1970
  • Egész szobák száma (12 m² felett): 3 db
  • Félszobák száma (6-12 m² között): 1 db
  • Ingatlan állapota: jó állapotú
  • Komfort: komfortos
  • Fűtés: gáz (konvektor)
  • Pince: nincs
  • Akadálymentesített: nincs
  • Napelem van?: nincs
  • Légkondicionáló: nincs

Leírás

Polgári stílusú családi ház eladó - Budapesttől kb. 1 órára, Pest vármegyében, Nagykőrösön! Budapesttől mintegy 80 km-re, jó elhelyezkedéssel kínálok megvételre egy összesen kb. 180 nm-es, polgári stílusú családi házat, amely egy 459 nm-es saroktelken helyezkedik el, és két utcáról is megközelíthető. Az ingatlan a Tormási városrészben található, frekventált elhelyezkedése miatt akár vállalkozás számára is kiváló lehetőség. Az épület masszív tégla falazatú és száraz szerkezetű, a tető a közelmúltban teljes cserén esett át, cserépfedéssel. A ház egyik felében jelenleg egy kb. 100 nm-es, 3 szobás lakrész található, amelyhez pince is tartozik, míg az épület másik része felújításra vár, így az új tulajdonos saját elképzelései szerint alakíthatja ki. Az ingatlan adottságai lehetővé teszik akár két külön lakrész kialakítását is. A kedvező négyzetméter ár, valamint a jó megközelíthetőség miatt az ingatlan befektetésnek, többgenerációs otthonnak vagy vállalkozás számára is remek választás lehet. Az ingatlan készpénzes vevőt vár. További információért vagy megtekintés egyeztetéséhez keress bizalommal! Referencia szám: M324854

E-mail küldése a hirdetőnek

Hibás hirdetés bejelentése

Sikeres elküldtük a hiba bejelentést.

Hirdető adatai

Nagy Adrienn
E-mail cím: adrienn.nagy@otpip.hu
Telefonszám: +36305768644
OTPip
Hirdetés feladója: Ingatlaniroda
Ingatlaniroda: OTPip
E-mail cím: kecskemet@otpip.hu
Telefonszám: +36707082408

Képek



Térkép


Ajánlott ingatlanok

Családi ház

Eladó Ház, Nagykőrös

Keresés azonosító alapján: HI-2560387
  • Nagykőrös
  • Alapterület: 255 m²
  • Telekterület: 562 m²
  • Ár: 99 000 000 Ft (271 978 €)
  • Feltöltés dátuma: 2026.04.13.
  •  
Családi ház

Eladó Ház, Nagykőrös

Keresés azonosító alapján: HI-2560399
  • Nagykőrös
  • Alapterület: 54 m²
  • Telekterület: 980 m²
  • Ár: 27 990 000 Ft (76 896 €)
  • Feltöltés dátuma: 2026.04.13.
  • klímás
Családi ház

Eladó Ház, Nagykőrös

Keresés azonosító alapján: HI-2559859
  • Nagykőrös
  • Alapterület: 76 m²
  • Telekterület: 130 m²
  • Ár: 35 000 000 Ft (96 154 €)
  • Feltöltés dátuma: 2026.04.10.
  • klímás
Családi ház

Eladó Ház, Tiszakécske

Keresés azonosító alapján: HI-2562073
  • Tiszakécske
  • Alapterület: 54 m²
  • Telekterület: 1 727 m²
  • Ár: 16 900 000 Ft (46 429 €)
  • Feltöltés dátuma: 2026.04.16.
  •  
Facebook
Blogger
Twitter
Tweets by hasznaltingatla
Flickr