Eladó ház Nagykovácsi

Ingatlan azonosító: HI-2486909

Pest megye - Nagykovácsi, Könnyűszerkezetes ház


259 000 000 Ft (667 526 €)

  • Hirdetés feladója: Ingatlaniroda
  • Pontos cím: Nagykovácsi
  • Típus: Eladó
  • Belső irodai azonosító: H507443-5055811
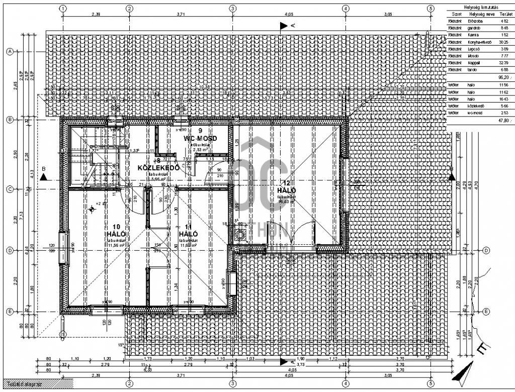
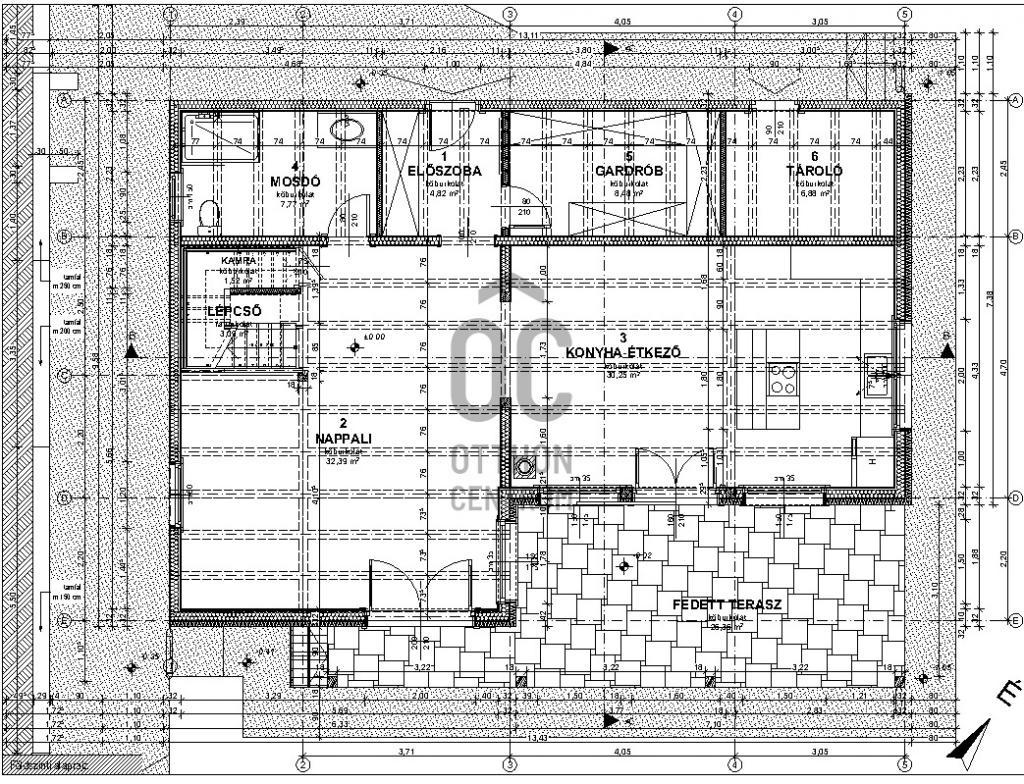
  • Alapterület: 156 m²
  • Telekterület: 723 m² ( 201 négyszögöl )
  • Építés éve: 2019
  • Egész szobák száma (12 m² felett): 4 db
  • Félszobák száma (6-12 m² között): 0 db
  • Fürdőszobák száma: 1 db
  • Ingatlan állapota: újszerű
  • Komfort: duplakomfortos
  • Fűtés: elektromos
  • Pince: nincs
  • Akadálymentesített: nincs
  • Energiatanúsítvány: D
  • Napelem van?: nincs
  • Légkondicionáló: nincs

Leírás

Eladó 156 nm-es, egyedi hangulatú családi ház Nagykovácsiban, erdő szomszédságában Nagykovácsi egyik legszebb, legnyugodtabb részén, a Cseresznyés városrész forgalomtól mentes zsákutcájának végén kínálunk eladásra egy 2019-ben épült, 156 nm-es, teraszos családi házat gyönyörűen gondozott, intim kerttel és közvetlen erdőkapcsolattal. Főbb jellemzők: -156 nm lakótér, tágas nappali–konyha–étkező, 3 szoba, gardrób, 2 fürdőszoba -Panorámás franciaerkély kovácsoltvas korláttal -Nyárikonyha, szaletli bográcsozóval és sparhelttel -Baltresto thermowood fürdődézsa (200 cm átmérő, fával fűthető + elektromos fűtés és szűrőrendszer) -Két tároló, automata öntözőrendszer -Motoros alumínium redőnyök szúnyoghálóval -Riasztórendszer (helyi biztonsági szolgálathoz bekötve) ???? Műszaki adatok: -Építés éve: 2019 -Szerkezet: favázas, könnyűszerkezetes technológia -Szigetelés: 120 mm EPS + 150 mm ásványgyapot – nyáron nem melegszik át, télen gyorsan felfűthető -Nyílászárók: háromrétegű fa ablakok -Burkolatok: tömör tölgy padló, tölgy lépcső, fa födém, mészkő terasz -Fűtés: elektromos, programozható és online vezérelhető + Jotul öntöttvas kályha a nappaliban + padlófűtés a fürdőben -Energiatakarékos kialakítás a kiemelkedő hőszigetelésnek köszönhetően ???? Konyha és étkező: -Beépített tömör tölgy konyhabútor -Bontott tégla fal és egyedi hangulatvilágítás (Olaszországból és Angliából rendelt lámpák) -Beépített gépek: AEG sütő, 70 cm-es főzőlap, AEG mosogatógép, BEKO amerikai hűtő ???? Elhelyezkedés: A telek egyik oldala közvetlenül az erdővel határos, így egész évben friss levegőt, nyugalmat és természetközeli élményt biztosít. Nagykovácsi zsákfalu, Natura 2000-es védett terület szívében, átmenőforgalom nélkül, ugyanakkor a mindennapi élethez szükséges infrastruktúra (bevásárlás, iskola, óvoda, gyógyszertár, orvosi rendelő, tömegközlekedés) kb. 15 perc sétával elérhető. Ez az ingatlan nem csupán egy ház, hanem életérzés: a természet közelsége, a gondosan megválogatott prémium anyagok és a különleges részletek – a hangulatos kályhától a beépített konyhán át a fürdődézsáig – mind hozzájárulnak ahhoz, hogy egy igazán egyedi, értékálló otthont kapjon új tulajdonosa. Jöjjön el, és tapasztalja meg személyesen ezt a különleges hangulatot! Az ingatlanról készült videót megtekintheti az Otthon Centrum weboldalán: www.oc.hu Regisztrációs szám: H507443

E-mail küldése a hirdetőnek

Hibás hirdetés bejelentése

Sikeres elküldtük a hiba bejelentést.

Hirdető adatai

Németh György
E-mail cím: nemeth.gyorgy@oc.hu
Telefonszám: +36 70 388 5191
Otthon Centrum
Hirdetés feladója: Ingatlaniroda
Ingatlaniroda: Otthon Centrum
E-mail cím: obuda@oc.hu
Telefonszám: +36 70 454 0315

Képek



Térkép


Ajánlott ingatlanok

Csarnok

Eladó ipari ingatlan Budapest 12. ker., Kútvölgy

Keresés azonosító alapján: HI-2493896
  • Budapest XII.
  • Alapterület: 349 m²
  • Ár: 269 000 000 Ft (693 299 €)
  • Feltöltés dátuma: 2025.10.27.
  •  
Lakóövezeti

Eladó telek Nagykovácsi

Keresés azonosító alapján: HI-2281190
  • Nagykovácsi
  • Telekterület: 1 364 m²
  • Ár: 105 000 000 Ft (270 619 €)
  • Feltöltés dátuma: 2024.08.14.
  •  
Lakóövezeti

Eladó telek Nagykovácsi

Keresés azonosító alapján: HI-2395941
  • Nagykovácsi
  • Telekterület: 1 184 m²
  • Ár: 67 900 000 Ft (175 000 €)
  • Feltöltés dátuma: 2025.03.29.
  •  
Családi ház

Eladó ház Érd, Érdliget

Keresés azonosító alapján: HI-2435952
  • Érd
  • Alapterület: 67 m²
  • Telekterület: 726 m²
  • Ár: 132 000 000 Ft (340 206 €)
  • Feltöltés dátuma: 2025.06.27.
  •  
Facebook
Blogger
Twitter
Tweets by hasznaltingatla
Flickr